++Provisionsfrei++ Graz/Lend, sanierte 2 Zimmer mit Balkon & extra Küche möbliert
Zinshaus Renditeobjekt
,
8020
Graz
Lage der Immobilie
Willkommen in der pulsierenden Umgebung dieser Eigentumswohnung in Graz! Die ideale Lage bietet eine ausgezeichnete Anbindung an öffentliche Verkehrsmittel, die es Ihnen ermöglichen, die Innenstadt in kürzester Zeit zu erreichen. Genießen Sie die Leichtigkeit des urbanen Lebens mit einer Vielzahl von Bus- und Straßenbahnlinien in unmittelbarer Nähe, die es Ihnen ermöglichen, die Stadt bequem zu erkunden. Erleben Sie die Vorzüge des Stadtlebens und profitieren Sie von einer exzellenten Infrastruktur, die Ihnen alle Annehmlichkeiten des täglichen Bedarfs bietet.Beschreibung der Immobilie
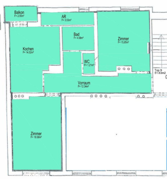
Wohnungsgröße von ca. 70,31 m2 mit Vorraum, extra WC, großes Bad, Küche möbliert (extra Raum) mit Zugang zu Balkon und Abstellraum, 2 extra Zimmer.
Kaufpreis Wohnung inkl. Küche & Keller 159.900 € Verhandlungsbasis
++Provisionsfrei++
Nähere Unterlagen zur Wohnung erhalten Sie gerne auf schriftliche Anfrage.
Anfragen werden ausschließlich per Mail oder WhatsApp angenommen. Für einen Besichtigungstermin oder Fragen stehe Ich, Patrick Großschädl, BSc, Ihnen unter Whatsapp Whatsapp gerne zur Verfügung.
Unsere Auswahl an Anzeigen ist momentan sehr umfangreich und es ist uns nicht möglich, alle Angebote auf den verschiedenen Online-Plattformen zu präsentieren. Deshalb laden wir Sie herzlich ein, unsere Homepage www.papst-immo.at zu besuchen, um einen Überblick über unser gesamtes Angebot zu erhalten.
Eckdaten
| Objektnr: | O2200167510 |
| Art: | Zinshaus Renditeobjekt |
| Land: | Österreich |
| Baujahr: | 1898 |
| Zustand: | Gepflegt |
| Möbliert: | Teil |
| Alter: | Altbau |
| Kaufpreis: | 219.900,00 € |
| Kaufpreis / m²: | auf Anfrage |
| Provision: | provisionsfrei EUR inkl. 20% MwSt. |
| Wohnfläche: | 72,86 m² |
| Gesamtfläche: | 72,86 m² |
| Zimmer: | 2 |
| Bäder: | 1 |
| WC: | 1 |
| Stellplätze: | 1 |
| Heizwärmebedarf: | C 95,00 kWh/m²a |
Ausstattung
Laminatboden, Zentralheizung, Einbauküche, Badewanne, Dusche, Kabel/Satelliten-TV, Garage
Internet und TV
Information zur Internet und TV Versorgung hier
Ihre persönliche Beratung
BSc Patrick Großschädl
Papst Immobilien GmbH
E info@papst-immo.at
H 0650 8286331
