Wohnen am Fuße der Burg Hochosterwitz -Maisonette-Neubauwohnung mit Garten in Launsdorf
Wohnung
- Maisonette,
9314
Launsdorf
Beschreibung der Immobilie
Eckdaten
| Objektnr: | 141/84875 |
| Art: | Wohnung - Maisonette |
| Land: | Österreich |
| Baujahr: | 2025 |
| Kaufpreis: | 293.782,70 € |
| Provision: | 3% |
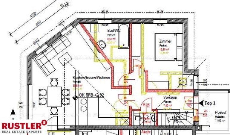
| Wohnfläche: | 95,86 m² |
| Zimmer: | 4 |
| Bäder: | 1 |
| WC: | 1 |
| Terrassen: | 1 |
| Garten: | 298,00 m² |
| Heizwärmebedarf: | C 51,00 kWh/m²a |
| fGEE: | A+ 0,70 |
Ausstattung
Fußbodenheizung
Internet und TV
Information zur Internet und TV Versorgung hier
Ihre persönliche Beratung
Alessa Valentina Huber
Rustler Immobilientreuhand
E ahuber@rustler-ktn.eu
T +43 463502072581
H 0676 834 34 581
