ruhige & sonnige Dachgeschoss Wohnung mit Terrasse | ZELLMANN IMMOBILIEN

Wohnung - Dachgeschoß, 1230 Wien , Kirchenplatz

Beschreibung der Immobilie

Elegante Maisonette-Wohnung mit Balkon und lichtdurchfluteter Wohnküche

Diese stilvolle Maisonette-Wohnung überzeugt durch einen durchdachten Grundriss, der modernes Wohnen mit hoher Funktionalität und angenehmem Wohnkomfort vereint.

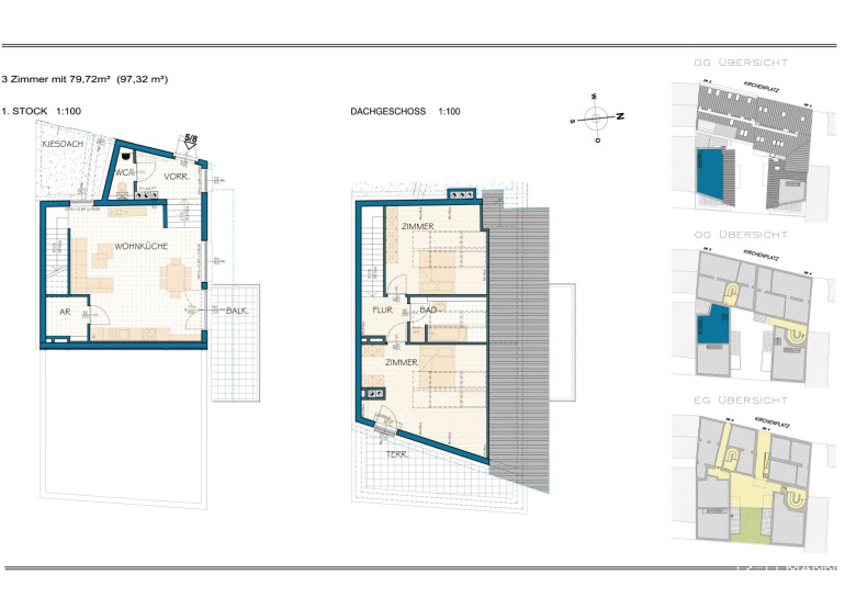
Bereits beim Betreten der Wohnung empfängt Sie ein einladender Vorraum, der einen ersten Eindruck von der großzügigen Gestaltung vermittelt. Von hier aus sind sowohl die separate Gästetoilette als auch der zentrale Wohnbereich bequem erreichbar. Die helle und großzügige Wohnküche bildet das Herzstück der Wohnung: Große Fensterflächen sorgen für eine lichtdurchflutete, freundliche Atmosphäre und bieten ausreichend Platz für einen gemütlichen Essbereich. Der direkt angeschlossene Balkon lädt zum Entspannen im Freien ein und erweitert den Wohnraum ideal. Ein praktischer Abstellraum innerhalb der Wohnküche bietet zusätzlichen Stauraum für Vorräte und Küchenutensilien.

Über eine elegante Holztreppe gelangt man in das Dachgeschoss. Dort befinden sich zwei großzügige, helle Zimmer, die über einen zentralen Flur erschlossen sind und vielseitige Nutzungsmöglichkeiten bieten – ob als Schlaf-, Arbeits- oder Gästezimmer. Eines der Zimmer verfügt über einen direkten Zugang zu einem weiteren Balkon. Zentral im Dachgeschoss gelegen befindet sich das geschmackvolle Badezimmer mit Badewanne und Fenster, das dank Tageslicht eine angenehme Wohlfühlatmosphäre schafft.

Ein Garagenplatz kann optional um € 130,00 monatlich dazugemietet werden und rundet das attraktive Wohnangebot komfortabel ab.

Diese Maisonette-Wohnung vereint modernes Design, durchdachte Details und ein hohes Maß an Wohnqualität – ideal für alle, die ein harmonisches Zuhause mit besonderem Flair suchen.

Sollten wir Ihr Interesse geweckt haben, ersuchen wir Sie höflich um Ihre Anfrage ausschließlich über dieses Webportal. Wir übermitteln Ihnen daraufhin zeitnah sämtliche Unterlagen.

WICHTIG:
Da E-Mails leider manchmal im SPAM- oder WERBE-Ordner landen, ersuchen wir Sie, diese zu kontrollieren. Wir antworten in der Regel binnen weniger Stunden – auch am Wochenende!
Bitte teilen Sie uns auch Ihre Telefonnummer mit, da wir Sie per SMS über die Versendung des Exposés verständigen können.
Dieses Objekt wird Ihnen unverbindlich und freibleibend zur Miete angeboten. Die oben angeführten Angaben basieren auf Informationen und Unterlagen des Eigentümers und erfolgen unsererseits ohne Gewähr.

Noch nichts gefunden? Wir informieren Sie über geeignete Immobilienangebote noch vor allen anderen.
Legen Sie jetzt Ihren individuellen Suchagenten unter folgendem Link an. Wir schicken Ihnen passende Immobilien exklusiv vorab zu. 

-> Suchagent anlegen

Hinweis gemäß Energieausweisvorlagegesetz: Ein Energieausweis wurde vom Eigentümer bzw. Verkäufer, nach unserer Aufklärung über die generell geltende Vorlagepflicht, sowie Aufforderung zu seiner Erstellung noch nicht vorgelegt. Daher gilt zumindest eine dem Alter und der Art des Gebäudes entsprechende Gesamtenergieeffizienz als vereinbart. Wir übernehmen keinerlei Gewähr oder Haftung für die tatsächliche Energieeffizienz der angebotenen Immobilie.

Der Immobilienmakler erklärt, dass er – entgegen dem in der Immobilienwirtschaft üblichen Geschäftsgebrauch des Doppelmaklers – einseitig nur für den Vermieter tätig ist.

Infrastruktur / Entfernungen

Gesundheit
Arzt <1.000m
Apotheke <250m
Klinik <500m
Krankenhaus <1.750m

Kinder & Schulen
Schule <250m
Kindergarten <500m
Universität <4.750m
Höhere Schule <4.500m

Nahversorgung
Supermarkt <250m
Bäckerei <250m
Einkaufszentrum <1.750m

Sonstige
Geldautomat <250m
Bank <250m
Post <1.750m
Polizei <1.500m

Verkehr
Bus <250m
U-Bahn <1.750m
Straßenbahn <2.000m
Bahnhof <500m
Autobahnanschluss <2.250m

Angaben Entfernung Luftlinie / Quelle: OpenStreetMap

Eckdaten

Objektnr: 25313
Art: Wohnung - Dachgeschoß
Land: Österreich
Baujahr: 2015
Zustand: Gepflegt
Alter: Neubau
Gesamtmiete: 1.349,00
Kaltmiete (netto): 1.043,86 €
Kaltmiete: 1.226,36 €
Provision: Gemäß Erstauftraggeberprinzip bezahlt der Abgeber die Provision.
Betriebskosten: 182,50 €
MwSt Gesamt: 122,64 €
Wohnfläche: 73,00 m²
Nutzfläche: 96,00 m²
Zimmer: 3
Bäder: 1
WC: 2
Balkone: 1
Terrassen: 1
Immobilie merken Exposé

Ausstattung

Parkett, Fliesen, Gas, Fußbodenheizung, Wohnküche / offene Küche, Südbalkon, Bad mit Fenster, Badewanne, Kabel/Satelliten-TV, Garage


Internet und TV

Information zur Internet und TV Versorgung hier


Immobilie anfragen


Ihre persönliche Beratung

ZELLMANN IMMOBILIEN GmbH | Vertrauen. Service. Qualität.

Nicole Zellmann

ZELLMANN IMMOBILIEN GmbH | Vertrauen. Service. Qualität.

E nicole@zellmann.at

T +43 699 15 15 22 01

H +43 699 15 15 22 01


ZELLMANN IMMOBILIEN GmbH | Vertrauen. Service. Qualität. - Immobilen Makler

Stuhlhofergasse 8, 1230 Wien-Mauer

Tel.: +43 699 15 15 22 00

https://www.zellmann.at