Sonnendurchflutete 3 Zi-Wohnung in den STADTTERRASSEN PEUERBACH - provisionsfrei! ** JETZT FRÜHKÄUFER-RABATT!**
Wohnung
- Etage,
4722
Peuerbach
Lage der Immobilie
Peuerbach selbst, bekannt für seine idyllische Umgebung und die herzliche Gemeinschaft, bietet ein vielfältiges Freizeitangebot. Die Region lädt zu ausgedehnten Spaziergängen, Radtouren oder entspannten Ausflügen ins Grüne ein. Für kulturelle Abwechslung sorgen historische Sehenswürdigkeiten und Veranstaltungen in der Umgebung. Die Verkehrsanbindung ist optimal: Der Bahnhof Peuerbach bietet regelmäßige Zugverbindungen in Richtung Linz und Wels, während die Nähe zur B137 eine zügige Erreichbarkeit der umliegenden Städte und Autobahnen gewährleistet. Somit eignet sich diese Lage sowohl für Pendler als auch für Ruhesuchende.Beschreibung der Immobilie
Für jede Wohnung ist fix ein Tiefgaragenplatz reserviert (zzgl. € 24.000,00). Das Projekt wird mit hoher Nachhaltigkeit und einer Gesamtenergieeffizienz A+ ausgerichtet. Die Photovoltaikanlage am Dach trägt zur energiesparenden Bewirtschaftung bei. Beheizung & Warmwasseraufbereitung funktionieren über eine Luftwärmepumpe, eine elektrische Beschattung und Glasfaser runden dieses exklusive Angebot ideal ab.
Die Wohneinheiten sind hochwertig ausgestattet, die Badezimmer verfügen über großformatige Fliesen und qualitative Sanitärausstattung.
Alle Geschosse sind mittels Aufzug (von der Tiefgarage) erschlossen
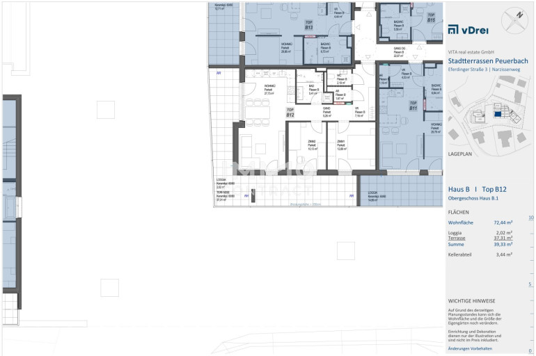
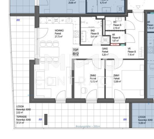
Raumaufteilung: Vorraum, WC, Abstellraum, Bad, 2 Schlafzimmer, Wohn-Essküche (Küche nicht möbliert, Anschlüsse vorhanden), Terrasse/Loggia.
Jeder Wohnung ist ein eigenes Kellerabteil zugeordnet.
Die dargestellten Innenvisualisierungen sind als Musterbilder und Einrichtungsvorschläge zu verstehen, die Wohnungen sind schlüsselfertig/unmöbliert.
Infrastruktur / Entfernungen
Gesundheit
Apotheke <500m
Arzt <6.500m
Kinder & Schulen
Schule <500m
Kindergarten <500m
Nahversorgung
Supermarkt <500m
Bäckerei <500m
Einkaufszentrum <1.000m
Sonstige
Bank <500m
Geldautomat <500m
Post <500m
Polizei <500m
Verkehr
Bus <500m
Bahnhof <1.000m
Flughafen <5.500m
Angaben Entfernung Luftlinie / Quelle: OpenStreetMap
Eckdaten
| Objektnr: | 1939/163711 |
| Art: | Wohnung - Etage |
| Land: | Österreich |
| Baujahr: | 2025 |
| Zustand: | Erstbezug |
| Kaufpreis: | 347.352,00 € |
| Provision: | Provision bezahlt der Abgeber. |
| Wohnfläche: | 72,44 m² |
| Zimmer: | 3 |
| Heizwärmebedarf: | B 35,30 kWh/m²a |
| fGEE: | A+ 0,56 |
Internet und TV
Information zur Internet und TV Versorgung hier
Ihre persönliche Beratung
Mag.(FH) Marianne Gerner-Kraupatz
IMMOcontract Immobilien Vermittlung GmbH
E M.Gerner-Kraupatz@IMMOcontract.at
T +43 50 450 400
H +43 664 25 63 491
