Ruhig gelegene Galeriewohnung | Münzgrabenstraße 83 Top 16
Wohnung
- Maisonette,
8010
Graz
Lage der Immobilie
Münzgrabensraße 83/85Beschreibung der Immobilie
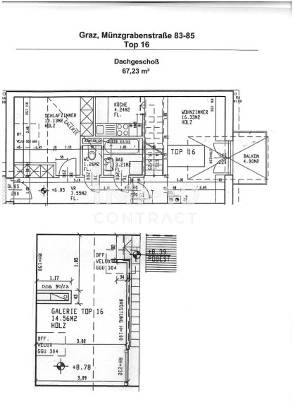
Zur Vermietung steht eine charmante Maisonette-Wohnung mit Galerie in Graz. Die Immobilie befindet sich in einer ruhigen Wohngegend und bietet eine Wohnfläche von ca.67,23 m². Mit 2,5 Zimmern, einem Schlafzimmer und einem Badezimmer bietet die Wohnung ausreichend Platz für Singles, Paare oder kleine Familien.
Der Boden ist mit hochwertigem Parkett ausgelegt, was der Wohnung ein elegantes und gemütliches Ambiente verleiht. Die Küche ist bereits möbliert und bietet genügend Platz zum Kochen und Entspannen.
Ein weiteres Highlight der Wohnung ist der Balkon, auf dem man die warmen Sommerabende genießen kann. Hier lässt es sich wunderbar entspannen und die frische Luft genießen.
Die Wohnung befindet sich in Graz, einer Stadt mit einer reichen Geschichte und einem vielfältigen kulturellen Angebot. In der Nähe finden sich Einkaufsmöglichkeiten, Restaurants und öffentliche Verkehrsmittel, die eine gute Anbindung an das Stadtzentrum gewährleisten.
Diese Maisonette-Wohnung ist die perfekte Wahl für alle, die auf der Suche nach einer stilvollen und komfortablen Wohnmöglichkeit in Graz sind. Zögern Sie nicht und vereinbaren Sie noch heute einen Besichtigungstermin!
Wir weisen darauf hin, dass zwischen dem Vermittler und dem zu vermittelnden Dritten ein familiäres oder wirtschaftliches Naheverhältnis besteht.
Der Immobilienmakler erklärt, dass er – entgegen dem in der Immobilienwirtschaft üblichen Geschäftsgebrauch des Doppelmaklers – einseitig nur für den Vermieter tätig ist.
Infrastruktur / Entfernungen
Gesundheit
Arzt <500m
Apotheke <500m
Klinik <1.500m
Krankenhaus <2.500m
Kinder & Schulen
Schule <500m
Kindergarten <500m
Universität <500m
Höhere Schule <1.000m
Nahversorgung
Supermarkt <500m
Bäckerei <500m
Einkaufszentrum <1.500m
Sonstige
Geldautomat <500m
Bank <1.000m
Post <500m
Polizei <1.000m
Verkehr
Bus <500m
Straßenbahn <500m
Autobahnanschluss <4.000m
Bahnhof <1.000m
Flughafen <8.500m
Angaben Entfernung Luftlinie / Quelle: OpenStreetMap
Eckdaten
| Objektnr: | 1939/124445 |
| Art: | Wohnung - Maisonette |
| Land: | Österreich |
| Zustand: | Gepflegt |
| Gesamtmiete: | 840,88 € |
| Kaltmiete (netto): | 490,90 € |
| Kaltmiete: | 647,71 € |
| Provision: | Gemäß Erstauftraggeberprinzip bezahlt der Abgeber die Provision. |
| Betriebskosten: | 156,81 € |
| Heizkosten: | 107,00 € |
| MwSt Gesamt: | 86,17 € |
| Wohnfläche: | 67,23 m² |
| Zimmer: | 2,50 |
| Bäder: | 1 |
| Balkone: | 1 |
| Heizwärmebedarf: | C 96,80 kWh/m²a |
| fGEE: | C 1,41 |
Ausstattung
Parkett, Zentralheizung, Einbauküche, Ostbalkon, Badewanne
Internet und TV
Information zur Internet und TV Versorgung hier
Ihre persönliche Beratung
Richard Böhm
IMMOcontract Immobilien Vermittlung GmbH
R.Boehm@IMMOcontract.at
+43 664 60008254
+43 664 60008254
