Dachgeschoßwohnung im Altbau: Erstbezug nach Sanierung mit Balkon und Einbauküche!
Wohnung
- Dachgeschoß,
8010
Graz
,
Mandellstraße 27
Lage der Immobilie
Diese traumhafte Dachgeschosswohnung in der Mandellstraße 8010 Graz bietet eine ideale Lage im Herzen der Stadt. Mit einer perfekten Ost-West-Ausrichtung genießen Sie den ganzen Tag über Sonne und Licht. Nur wenige Schritte vom pulsierenden Kaiser-Josef-Platz entfernt, sind Ärzte, Apotheken, Schulen und Universitäten bequem erreichbar. Supermärkte, Bäckereien und ein Einkaufszentrum sorgen für eine ausgezeichnete Nahversorgung. Öffentliche Verkehrsanbindungen wie Bus und Straßenbahn sind ebenfalls in unmittelbarer Nähe. Ein perfekter Ort zum Leben und Wohlfühlen!Beschreibung der Immobilie
Willkommen in Ihrem neuen Zuhause im Herzen von Graz!
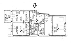
Diese charmante Dachgeschosswohnung mit einer großzügigen Fläche von 50,9 m² bietet Ihnen nicht nur einen erstklassigen Wohnkomfort, sondern auch einen atemberaubenden Stadtblick, der jeden Morgen mit einem Lächeln beginnen lässt.
Die Wohnung im Dachgeschoss ist ein Erstbezug nach Sanierung. Der offene und helle Wohnbereich, ausgestattet mit hochwertigem Parkett, lädt zum Verweilen und Entspannen ein. Hier können Sie Ihre individuellen Wohnideen verwirklichen und sich nach einem langen Tag zurückziehen.
Die moderne Einbauküche ist nicht nur funktional, sondern auch ein echter Hingucker. Sie bietet ausreichend Platz, um kulinarische Meisterwerke zu kreieren und bei geselligen Abenden mit Freunden zu glänzen. Der angrenzende Balkon in Ost-Ausrichtung verspricht Ihnen sonnige Morgenstunden und einen wunderschönen Ausblick auf die Stadt, während Sie Ihren Kaffee genießen.
Die Wohnung verfügt über zwei gemütliche Zimmer, die sich ideal als Schlaf- und Arbeitszimmer eignen. Das moderne Badezimmer ist mit einer komfortablen Dusche ausgestattet und sorgt für zusätzlichen Komfort in Ihrem Alltag. Ein praktischer Abstellraum bietet Ihnen zudem genügend Stauraum für Ihre persönlichen Dinge.
Die zentrale Lage der Wohnung ist ein weiteres Highlight. Dank der hervorragenden Verkehrsanbindung sind Sie schnell und bequem mit Bus und Straßenbahn in der gesamten Stadt unterwegs. Alle wichtigen Einrichtungen des täglichen Bedarfs befinden sich in unmittelbarer Nähe: Ärzte, Apotheken, Schulen, Kindergärten und Universitäten sind nur einen kurzen Spaziergang entfernt. Auch Supermärkte, eine Bäckerei und ein Einkaufszentrum sind schnell erreichbar und erleichtern Ihren Alltag.
Die Fernwärme und die zentrale Heizungsanlage sorgen für eine angenehme Wohlfühltemperatur zu jeder Jahreszeit und tragen zum Energieeffizienz Ihrer neuen Wohnung bei.
Lassen Sie sich diese einmalige Gelegenheit nicht entgehen! Genießen Sie urbanes Wohnen mit einem Hauch von Luxus in dieser bezaubernden Dachgeschosswohnung.
Zögern Sie nicht, uns zu kontaktieren, um einen Besichtigungstermin zu vereinbaren und Ihr neues Zuhause in Graz kennenzulernen!
Der Immobilienmakler erklärt, dass er – entgegen dem in der Immobilienwirtschaft üblichen Geschäftsgebrauch des Doppelmaklers – einseitig nur für den Vermieter tätig ist.
Infrastruktur / Entfernungen
Gesundheit
Arzt <75m
Apotheke <325m
Klinik <350m
Krankenhaus <1.550m
Kinder & Schulen
Schule <350m
Kindergarten <50m
Universität <125m
Höhere Schule <675m
Nahversorgung
Supermarkt <125m
Bäckerei <125m
Einkaufszentrum <525m
Sonstige
Geldautomat <325m
Bank <350m
Post <325m
Polizei <925m
Verkehr
Bus <100m
Straßenbahn <100m
Autobahnanschluss <4.250m
Bahnhof <1.275m
Flughafen <8.850m
Angaben Entfernung Luftlinie / Quelle: OpenStreetMap
Eckdaten
| Gesamtmiete: | 816,49 € |
| Fläche: | 50,90 m² |
| Zimmer: | 2 |
Basisdaten zur Immobilie
| Objektnr: | 1939/214850 |
| Art: | Wohnung - Dachgeschoß |
| Land: | Österreich |
| Zustand: | Erstbezug |
| Alter: | Altbau |
| Gesamtmiete: | 816,49 € |
| Kaltmiete (netto): | 473,37 € |
| Kaltmiete: | 648,33 € |
| Provision: | Gemäß Erstauftraggeberprinzip bezahlt der Abgeber die Provision. |
| Betriebskosten: | 174,96 € |
| Heizkosten: | 86,10 € |
| MwSt Gesamt: | 82,06 € |
| Wohnfläche: | 50,90 m² |
| Zimmer: | 2 |
| Bäder: | 1 |
| WC: | 1 |
| Heizwärmebedarf: | C 96,00 kWh/m²a |
| fGEE: | D 1,84 |
Ausstattung
Parkett, Fernwärme, Zentralheizung, Einbauküche, Ostbalkon, Dusche
Internet und TV
Information zur Internet und TV Versorgung hier
Ihre persönliche Beratung
Richard Böhm
IMMOcontract Immobilien Vermittlung GmbH
R.Boehm@IMMOcontract.at
+43 664 60008254
+43 664 60008254
