Beschreibung der Immobilie
CANAVESEGASSE 4
Mit viel Sorgfalt und Weitblick wird in der Canavesegasse 4 im 23. Wiener Gemeindebezirk Liesing ein modernes und lebenswertes Wohnprojekt entwickelt.
Eingebettet im charmanten Stadtteil Atzgersdorf, liegt das Grundstück in einer ruhigen, von Bäumen gesäumten Straße – nur wenige Schritte von der historischen Kirche im Ortskern entfernt. Ein Ort, an dem Tradition auf zeitgemäße Architektur trifft.
Der geplante Neubau überzeugt durch durchdachte Architektur und hohe Wohnqualität: Balkone, Terrassen und großzügige Grünflächen schaffen private Rückzugsorte, während eine Tiefgarage für Komfort im Alltag sorgt. Ergänzt wird das Wohnangebot durch gewerbliche Flächen, die dem Projekt zusätzliche Lebendigkeit verleihen.
Insgesamt entstehen zwei Baukörper mit 18 Wohnungen ergänzt durch attraktive Freiflächen. Das Untergeschoss bietet eine Tiefgarage mit 20 PKW-Stellplätzen sowie 2 Motorrad-Stellplätzen.
Ein Projekt, das nicht nur Wohnraum schafft, sondern ein neues Zuhause – durchdacht, wertig und eingebettet in ein gewachsenes Umfeld.
geplante Fertigstellung: ca. Ende 2027/Anfang 2028
Der Verkauf erfolgt provisionsfrei für den Käufer!
Das Projekt:
- 18 Eigentums- und Vorsorgewohnungen
- 4 Büros bzw. Ordinationen
- Wohnungsgrößen von 42 m² bis 115 m²
- Tiefgarage mit 20 Stellplätzen
- Fahrradabstellraum
- Ein Kellerabteil je Wohnung
- Private Freiflächen in Form von Gärten, Balkonen oder Terrassen
Die Ausstattung:
- Fußbodenheizung mittels Fernwärme
- Photovoltaikanlage
- Hochwertige Eichenparkettböden
- Hochwertige Sanitärausstattung
- Fenster mit 3-fach-Verglasung
- Außenliegender Sonnenschutz
Die Lage & Infrastruktur:
Die Canavesegasse 4 liegt im charmanten Stadtteil Atzgersdorf im 23. Wiener Gemeindebezirk. Die ruhige, alleeartige Wohnstraße befindet sich nahe dem historischen Ortskern und bietet eine angenehme, gewachsene Nachbarschaft. Geschäfte des täglichen Bedarfs, Schulen sowie öffentliche Verkehrsanbindungen sind rasch erreichbar, während Grünflächen und Erholungsräume in der Umgebung für hohe Lebensqualität sorgen.
Öffentliche Anbindung:
Schnellbahn: S2, S3 und S4: von Bahnhof Atzgersdorf bis Wien Floridsdorf bzw. Wiener Neustadt.
Buslinien: 6A, 58A und 58B Verbindung zu U4-Station „Hietzing“, 60A und 66A Verbindung Bahnhof Wien
Wir weisen darauf hin, dass zwischen dem Vermittler und dem zu vermittelnden Dritten ein familiäres oder wirtschaftliches Naheverhältnis besteht.
Infrastruktur / Entfernungen
Gesundheit
Arzt <700m
Apotheke <225m
Klinik <475m
Krankenhaus <1.675m
Kinder & Schulen
Schule <125m
Kindergarten <250m
Universität <4.600m
Höhere Schule <4.500m
Nahversorgung
Supermarkt <200m
Bäckerei <200m
Einkaufszentrum <1.575m
Sonstige
Geldautomat <225m
Bank <200m
Post <1.550m
Polizei <1.550m
Verkehr
Bus <50m
U-Bahn <1.750m
Straßenbahn <1.775m
Bahnhof <375m
Autobahnanschluss <2.325m
Angaben Entfernung Luftlinie / Quelle: OpenStreetMap
Eckdaten
| Objektnr: | 92806 |
| Art: | Wohnung |
| Land: | Österreich |
| Baujahr: | 2028 |
| Zustand: | Erstbezug |
| Alter: | Neubau |
| Kaufpreis: | 393.600,00 € |
| Provision: | Provision bezahlt der Abgeber. |
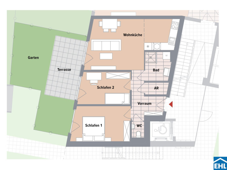
| Wohnfläche: | 61,70 m² |
| Nutzfläche: | 63,24 m² |
| Zimmer: | 3 |
| Bäder: | 1 |
| WC: | 1 |
| Terrassen: | 1 |
| Garten: | 25,52 m² |
| Keller: | 3,01 m² |
| Heizwärmebedarf: | B 31,00 kWh/m²a |
| fGEE: | B 0,75 |
Ausstattung
Parkett, Fliesen, Wohnküche / offene Küche, Personenaufzug, Westbalkon, Dusche, Tiefgarage
Internet und TV
Information zur Internet und TV Versorgung hier
Ihre persönliche Beratung
DI Birgita EHRENBERGER
EHL Immobilien GmbH
E b.ehrenberger@ehl.at
T +43-1-512 76 90-422
H +43 664 88160139
