Luxuriöse 5 Zimmer Jugendstil-Wohnung in der Köstlergasse - exklusives Wohnen im berühmten Otto Wagner Haus - ab März/April 2026 - nahe U4
Wohnung
,
1060
Wien,Mariahilf
Lage der Immobilie
Gumpendorfer Straße, Linke Wienzeile, Kettenbrückengasse, NaschmarktBeschreibung der Immobilie
Liebe Wohnungssuchende!
Sofern Sie eine Besichtigung wünschen, füllen Sie bitte das Formular unter folgendem Link aus:
www.sulek.immobilien/besichtigung (bitte Michael Stadlmayr auswählen!). Da die Wohnung derzeit noch bewohnt wird, melden wir uns nach Absprache mit den aktuellen Mieter:innen, verlässlich zur Terminvereinbarung.
Wenn Sie einen Besichtigungstermin wünschen, teilen Sie uns bitte im Vorfeld folgendes mit:
- Einzugsdatum: Wann ist Ihr gewünschter Einzugstermin?
- Haushaltsgröße: Wie viele Personen möchten einziehen?
- Haushaltsnettoeinkommen: Was machen Sie beruflich?
Herzlichen Dank!
*************************************
Wohnung.
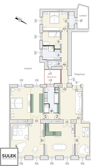
Im schlichtesten Haus der berühmten Wienzeilenhäuser von Otto Wagner erwartet Sie eine besonders charmante Wohnung zur unbefristeten Vermietung und ist für jeden Jugendstil Fan eine einzigartige Gelegenheit. Beziehbar ist die Wohnung frühestens ab April, spätestens ab 1. Mai 2026.
Im 2. Stock dieses kunsthistorischen Wohnhauses erwartet Sie eine im Jahr 2024 sanierte 5 Zimmer Wohnung mit einer Wohnfläche von rund 177 m² Wohnfläche mit extravaganter Ausstattung. Vom großzügigen Eingangsbereich, der reichlich Platz für Garderobe bietet, gelangt man stirnseitig in die lichtdurchflutete Wohn- und Essbereiche. Die moderne Einbauküche mit einer praktischen Kochinsel ist vollausgestattet. Die Wohnküche ist von beiden Seiten über Flügeltüren zu zwei Räumlichkeiten verbunden. Zwei weitere separat begehbare Zimmer und ein Kabinett bieten Flexibilität in der Nutzung als Schlaf-, Kinder- oder Arbeitszimmer. Ein besonderes Highlight sind beide vornehmen Badezimmer mit Fenster, Dusche, welche durch ein dunkles Handwaschbecken mit goldfarbene Armaturen wunderbar ergänzt wird. Zusätzlich bietet das größere Badezimmer eine ovale freistehende Badewanne und ein WC. Die separate Toilette besticht durch ihre glatten Fliesen im Jugendstilornamenten und Marmorplatten. Selten werden Sie in Wien solch ein historisches Wohngefühl mit unverwechselbarem Altbau - Flair finden!
Zusammenfassend die Highlights:
- rund 177 m² Wohnfläche in absoluter Wiener Bestlage (Mariahilf)
- 5 Zimmer und ein Kabinett
- 2 Badezimmer, ein Abstellraum mit Waschmaschinen Anschluss
- Einbauschränke
- Zweitbezug nach Sanierung
- Hohe helle Räume, Stuck verzierte Decken und Doppelflügeltüren, Natursteinplatten, goldfarbene Armaturen, originale Jugendstil Fliesen u.v.m.
- Dieses Wohnhaus wurde zeitweise von Otto Wagner ("Absteigequartier") selbst bewohnt und ist berühmt für die verschollene gläserne Badewanne.
- Der geplante Balkon befindet sich noch in der Einreichphase.
Gut zu wissen:
- Um mit regelmäßigen und lückenlosen Mietzahlungen zu rechnen, verlangt der Eigentümer zur Bonitätsprüfung die letzten drei Gehaltszettel und bei Selbstständigen den aktuellsten Einkommenssteuerbescheid. Bei Expats oder Diplomaten reicht eine Bestätigung des Arbeitgebers.
- Ein geplanter Balkon wird künftig errichtet. Damit verbundene und weitere Bauarbeiten sind dieses und/oder nächstes Jahr geplant.
- Die Wohnung verfügt über eine Etagenheizung. Die Kosten für Strom/Gas/Warmwasser sind in der Miete noch nicht inkludiert.
- Es sind keine Haustiere erwünscht.
Lage/Infrastruktur.
Die Lage erklärt sich aufgrund der Nähe zum Wiener Naschmarkt und Innenstadt von selbst und bietet beste Infrastruktur und eine ausgezeichnete Verkehrsanbindung. In unmittelbarer Umgebung befindest sich alle Geschäfte des täglichen Bedarfs ((z.B. Billa, Spar, Naschmarkt)) und eine große Auswahl an Restaurants/Bars und vieles mehr. Zudem ist die öffentliche Anbindung ausgezeichnet. Fußläufig erreichen Sie einerseits die U-Bahnstation "Kettenbrückengasse " (U4) sowie die Bushaltestelle 57A. Der Karlsplatz (Verkehrsknotenpunkt von U-Bahnen U1, U4, zukünftige U2/U5 Linie sowie Straßenbahnlinien D, 1, 2, 62 und der Badner Bahn) ist in wenigen Gehminuten entfernt.
**********************************
Sollten Sie nach Durchsicht des Inserats eine Besichtigung wünschen, bitten wir um Anfrage über das Kontaktformular und Nennung ein paar konkreter Terminvorschläge.
************************************
Die zur Verfügung gestellten Informationen beruhen auf Angaben des Abgebers, der Gemeinde und der Hausverwaltung bzw. der jeweiligen Professionisten. Für die Richtigkeit und Vollständigkeit der Angaben kann keine Gewähr bzw. Haftung übernommen werden. Weiters weisen wir auf ein wirtschaftliches und/oder familiäres Naheverhältnis hin. Festgehalten wird, dass unser Maklerunternehmen gem. § 17 MaklerG einseitig nur für den Vermieter tätig wird, nicht für den Mieter.
Noch nichts gefunden? Wir informieren Sie über geeignete Immobilienangebote noch vor allen anderen.
Legen Sie jetzt Ihren individuellen Suchagenten unter folgendem Link an. Wir schicken Ihnen passende Immobilien exklusiv vorab zu.
Suchagent anlegen - https://sulek-immobilien.service.immo/registrieren/de
Der Immobilienmakler erklärt, dass er – entgegen dem in der Immobilienwirtschaft üblichen Geschäftsgebrauch des Doppelmaklers – einseitig nur für den Vermieter tätig ist.
Infrastruktur / Entfernungen
Gesundheit
Arzt <500m
Apotheke <500m
Klinik <500m
Krankenhaus <1.500m
Kinder & Schulen
Schule <500m
Kindergarten <500m
Universität <500m
Höhere Schule <1.000m
Nahversorgung
Supermarkt <500m
Bäckerei <500m
Einkaufszentrum <1.000m
Sonstige
Geldautomat <500m
Bank <500m
Post <500m
Polizei <500m
Verkehr
Bus <500m
U-Bahn <500m
Straßenbahn <1.000m
Bahnhof <500m
Autobahnanschluss <4.000m
Angaben Entfernung Luftlinie / Quelle: OpenStreetMap
Eckdaten
| Objektnr: | 26193 |
| Art: | Wohnung |
| Land: | Österreich |
| Baujahr: | 1899 |
| Alter: | Altbau |
| Gesamtmiete: | 3.359,76 € |
| Kaltmiete (netto): | 2.745,64 € |
| Kaltmiete: | 3.054,33 € |
| Provision: | Gemäß Erstauftraggeberprinzip bezahlt der Abgeber die Provision. |
| Betriebskosten: | 308,69 € |
| MwSt Gesamt: | 305,43 € |
| Wohnfläche: | 177,41 m² |
| Zimmer: | 5,50 |
| Bäder: | 2 |
| WC: | 2 |
| Heizwärmebedarf: | D 130,10 kWh/m²a |
| fGEE: | D 2,29 |
Ausstattung
Fliesen, Parkett, Etagenheizung, Einbauküche, Bad mit Fenster, Badewanne, Dusche, Kabel/Satelliten-TV
Internet und TV
Information zur Internet und TV Versorgung hier
Ihre persönliche Beratung
Michael Stadlmayr
Mittelsmann Philipp Sulek GmbH
E ms@sulek-immobilien.at
T +43 1 226 27 20
H +43 676 325 27 15
