Stilvolle Maisonette mit Galerie nahe TU & Dietrichsteinplatz
Wohnung
- Maisonette,
8010
Graz
,
Münzgrabenstraße
Beschreibung der Immobilie
Diese stylische Maisonette-Wohnung befindet sich im Herzen von Graz und punktet mit perfekter Infrastruktur! Dietrichstrichsteinplatz sowie Jakominiplatz liegen nur wenige Gehminuten entfernt und bieten Ihnen somit den bestmöglichen ÖPNV-Anschluss. Insbesondere für Studierende der Technischen Universität Graz ist Lage der Wohnung interessant. Direkt vor der Haustür finden Sie sämtliche wichtigen Einrichtungen wie Supermärkte, Drogeriemärkte, Bäckerei, Bank, Apotheke, Ärzte und Restaurants. Auch der Stadtpark mit seinen großzügigen Grünflächen befindet sich nur ca. 450m entfernt.
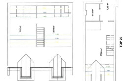
Betreten wird das Wohnhaus über einen Innenhof, von dem Sie bequem mit dem Lift in das 3. Obergeschoß des Hauses gelangen. Die Wohnung selbst erstreckt sich über zwei Etagen und wurde vor wenigen Jahren saniert und weist somit einen modernen Zustand auf. Das besondere Layout mit der stilvollen Treppe und der "Galerie" im Obergeschoss verleiht der Wohnung einen besonders stylishen Charakter. Weiters lassen sich im Obergeschoss ein großzügiges Schlafzimmer sowie ein heller und gemütlicher Bereich für ein Homeoffice einrichten. Im Untergeschoss entsteht in Kombination mit der modernen Küche ein einzigartiges Wohnambiente - ideal, um sich einen stilvollen Rückzugsort mit Loft-Charakter zu schaffen.
Eine besonders angenehme und lichtdurchflutete Atmosphäre wird durch die nach Westen ausgerichteten Fenster (Uhrturmblick) im Wohnraum erreicht. Das Obergeschoss verfügt über Dachflächenfenster welche östlich, in Richtung ruhigen Innenhof, blicken.
Der Grundriss teilt sich in:
- Vorraum (untere Etage)
- Bad inkl. WC (untere Etage)
- offenes Wohnzimmer inkl. moderner Küche (untere Etage)
- Galerie mit Platz für Büro (obere Etage)
- großzügiges Schlafzimmer (obere Etage)
Nutzen Sie diese Gelegenheit und überzeugen Sie sich selbst im Zuge einer Besichtigung vom Charme dieses Einzelstücks!
Wir freuen uns auf Ihre Kontaktaufnahme!
Dieangegebenen Daten stammen vom Eigentümer und/oder Dritten und wurden mit Sorgfalt erhoben. Für die Richtigkeit und Vollständigkeit kann jedoch keine Haftung übernommen werden. Zahlenangaben können gegebenenfalls gerundet oder geschätzt sein. Das Angebot ist freibleibend und unverbindlich. Irrtümer und Änderungen sind vorbehalten. Nachdruck/Vervielfältigung nur mit Genehmigung der Immo-Circle GesbR.
Wir weisen darauf hin, dass zwischen dem Vermittler und dem zu vermittelnden Dritten ein familiäres oder wirtschaftliches Naheverhältnis besteht.
Der Immobilienmakler erklärt, dass er – entgegen dem in der Immobilienwirtschaft üblichen Geschäftsgebrauch des Doppelmaklers – einseitig nur für den Vermieter tätig ist.
Infrastruktur / Entfernungen
Gesundheit
Arzt <250m
Apotheke <250m
Klinik <500m
Krankenhaus <1.500m
Kinder & Schulen
Schule <250m
Kindergarten <250m
Universität <250m
Höhere Schule <500m
Nahversorgung
Supermarkt <250m
Bäckerei <250m
Einkaufszentrum <500m
Sonstige
Geldautomat <250m
Bank <250m
Post <500m
Polizei <750m
Verkehr
Bus <250m
Straßenbahn <250m
Autobahnanschluss <4.500m
Bahnhof <1.250m
Flughafen <8.750m
Angaben Entfernung Luftlinie / Quelle: OpenStreetMap
Eckdaten
| Gesamtmiete: | 1.041,82 € |
| Fläche: | 68,63 m² |
| Zimmer: | 2 |
Basisdaten zur Immobilie
| Objektnr: | 3275 |
| Art: | Wohnung - Maisonette |
| Land: | Österreich |
| Zustand: | Modernisiert |
| Gesamtmiete: | 1.041,82 € |
| Kaltmiete (netto): | 653,15 € |
| Kaltmiete: | 867,96 € |
| Provision: | Gemäß Erstauftraggeberprinzip bezahlt der Abgeber die Provision. |
| Betriebskosten: | 166,70 € |
| Heizkosten: | 72,55 € |
| MwSt Gesamt: | 101,31 € |
| Wohnfläche: | 68,63 m² |
| Zimmer: | 2 |
| Bäder: | 1 |
| WC: | 1 |
| Heizwärmebedarf: | B 45,06 kWh/m²a |
Ausstattung
Parkett, Fliesen, Fernwärme, Einbauküche, Personenaufzug, Dusche
Internet und TV
Information zur Internet und TV Versorgung hier
Ihre persönliche Beratung
Pascal Pototschnig
Immo Circle GesBR
p.pototschnig@immo-circle.at
+43 660 1030857
+43 660 1030857
