Die Strauss-Villa in Döbling
Haus
- Villa,
1190
Wien
Lage der Immobilie
Döbling, der 19. Wiener Gemeindebezirk, vereint städtischen Komfort mit naturnaher Idylle. Am Rande des Wienerwaldes gelegen, bietet er eine harmonische Mischung aus eleganten Wohngegenden, traditionsreichen Weindörfern und weitläufigen Grünflächen. Die hohe Lebensqualität in dieser gefragten Wohnlage zeigt sich in der ruhigen Atmosphäre, der Nähe zur Natur sowie der ausgezeichneten Infrastruktur. Besonders hervorzuheben ist die Nähe zur renommierten American International School, was den Standort auch für internationale Familien äußerst attraktiv macht. Döbling – ein Bezirk, der urbanes Wohnen mit Erholung, Kultur und Bildung auf höchstem Niveau verbindet.Beschreibung der Immobilie
Eckdaten
| Kaufpreis: | 6.800.000,00 € |
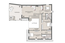
| Fläche: | 370,00 m² |
Basisdaten zur Immobilie
| Objektnr: | IVW-25-12504 |
| Art: | Haus - Villa |
| Land: | Österreich |
| Baujahr: | 1994 |
| Zustand: | Gepflegt |
| Kaufpreis: | 6.800.000,00 € |
| Provision: | Provisionsfrei für die Käufer:innen |
| Wohnfläche: | 370,00 m² |
| Grundstücksfl.: | 5.631,00 m² |
| Bäder: | 3 |
| Heizwärmebedarf: | C 67,81 kWh/m²a |
| fGEE: | C 1,21 |
Ausstattung
Gas, Sauna, Swimmingpool
Internet und TV
Information zur Internet und TV Versorgung hier
Ihre persönliche Beratung
Massimo Saccomanno
OTTO Immobilien GmbH
m.saccomanno@otto.at
004366488533219
004366488533219
F 004315137778
