Nonntal | Schöne 3-Zimmer Wohnung mit Balkon in Ruhelage
Wohnung
,
5020
Salzburg
Lage der Immobilie
Stadtlage Nonntal RuhelageBeschreibung der Immobilie
Sonnige 3-Zimmer Wohnung mit Süd - Loggia in perfekter Stadtlage
Lage:
Die Wohnung befindet sich in perfekter Ruhelage im Salzburger Stadtteil Nonntal. Das Haus ist nach Süden ausgerichtet und somit in sonniger Lage. Die Altstadt ist über den Krauthügel und die alte Nonntaler Hauptstrasse innerhalb von ca. zehn Gehminuten erreichbar.
Objekt:
Das Wohnhaus selbst wurde im Jahre 1961 errichtet. Das Gebäude ist als kompaktes Mehrparteienhaus mit Satteldach und Keller ausgeführt. Die Fassade ist verputzt, mit farblich abgesetzten Elementen im Bereich der Stiegenhausachse. Auf den Längsseiten sind Balkone/Loggien angeordnet, teils mit Markisen. Der Zugang erfolgt ebenerdig über den zentralen Hauseingang; dahinter liegt das Stiegenhaus als Haupterschließung der Wohnungen.
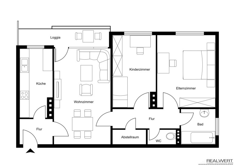
Wohnung:
Die Wohnung befindet sich im Hochparterre. Von der Diele aus gelangt erschließen sich Küche und Wohnzimmer. Die Küche ist neuwertig und verfügt über einen Herd mit Ceranfeld sowie Dunstabzug und Geschirrspüler. Über das Wohnzimmer, von welchem aus der Süd-Balkon zugänglich ist, erschließen sich über einen Gang die weiteren Zimmer und das Bad. Sämtliche Wohnräume sind mit Parkettböden ausgeführt. Das Badezimmer ist gefliest.
Sonstiges:
Die Beheizung und Warmwasserbereitung erfolgen elektrisch und werden über die Stromkosten direkt mit der Salzburg AG abgerechnet.
Energieausweis:
Der flächenbezogene Heizwärmebedarf beträgt 61 kWh/m2a.
key facts:
+ sehr effiziente Raumeinteilung, für Kleinfamilien oder Singles
+ zentrumsnahe Ruhelage im begehrten Stadtteil Nonntal
+ guter Allgemeinzustand des Objektes
Gerne stehe wir Ihnen für weitere Informationen oder einen Besichtigungstermin zur Verfügung.
Der Vermittler ist als Doppelmakler tätig.
Infrastruktur / Entfernungen
Gesundheit
Arzt <500m
Apotheke <500m
Klinik <500m
Krankenhaus <1.500m
Kinder & Schulen
Schule <1.000m
Kindergarten <1.000m
Universität <1.000m
Höhere Schule <2.000m
Nahversorgung
Supermarkt <500m
Bäckerei <500m
Einkaufszentrum <1.500m
Sonstige
Bank <500m
Geldautomat <500m
Post <1.000m
Polizei <1.500m
Verkehr
Bus <500m
Bahnhof <1.000m
Autobahnanschluss <4.500m
Flughafen <3.500m
Angaben Entfernung Luftlinie / Quelle: OpenStreetMap
Eckdaten
| Kaufpreis: | 399.000,00 € |
| Fläche: | 62,44 m² |
| Zimmer: | 3 |
Basisdaten zur Immobilie
| Objektnr: | 523/1205 |
| Art: | Wohnung |
| Land: | Österreich |
| Baujahr: | 1961 |
| Zustand: | Modernisiert |
| Kaufpreis: | 399.000,00 € |
| Provision: | 3% des Kaufpreises zzgl. 20% USt. |
| Betriebskosten: | 155,22 € |
| MwSt Gesamt: | 15,52 € |
| Wohnfläche: | 62,44 m² |
| Zimmer: | 3 |
| Bäder: | 1 |
| WC: | 1 |
| Heizwärmebedarf: | C 61,00 kWh/m²a |
| fGEE: | D 1,89 |
Ausstattung
Fliesen, Parkett, Elektro, Einbauküche, Südbalkon, Bad mit Fenster, Badewanne, Kabel/Satelliten-TV
Internet und TV
Information zur Internet und TV Versorgung hier
Ihre persönliche Beratung
Thomas Lainer
Realwert- Immobilientreuhand GmbH
t.lainer@realwert.at
+43 662 82 10 75-0
F +43 662 82 10 75-19
