Beschreibung der Immobilie
Besichtigungstermin vereinbaren
Sehr geehrte Interessentin, sehr geehrter Interessent!
Um einen Besichtigungstermin zur vereinbaren, füllen Sie bitte zuerst hier das MIETERPROFIL vollständig aus und teilen Sie uns bitte im Vorfeld folgende Punkte mit:
+ Wann ist Ihr gewünschter Einzugstermin?
+ Wie viele Personen möchten einziehen?
+ Was machen Sie beruflich?
Wir melden uns sodann verlässlich bei Ihnen zur Terminabstimmung. Jetzt zur Terminvereinbarung:
JOSEFIAU | HÜBSCHE 2-ZIMMER WOHNUNG MIT BALKON
Perfekte Lage
Die Josefiaustraße liegt im Stadtteil Salzburg-Süd (Josefiau), zwischen Alpenstraße und Fischbachstraße. Nahversorgung und Dienstleistungen finden sich entlang der Alpenstraße und sind nur wenige Meter entfernt und fußläufig leicht erreichbar. Die O-Bus-Haltestelle „Josefiau“ ist ca. 80 Meter entfernt und verbindet Richtung Zentrum. Das Salzachufer mit Rad- und Gehweg ist rasch erreichbar.
Wohnhaus allgemein
Das Wohnhaus Josefiaustraße wurde Mitte der 70er Jahres fertiggestellt und verfügt über zwei Vollgeschoße und ein Dachgeschoß. Der Eingang erfolgt über das Kellergeschoß.
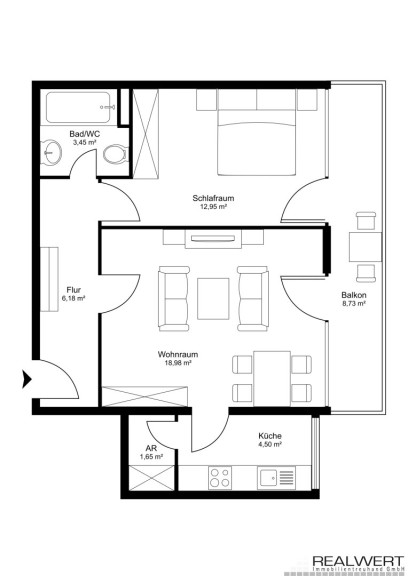
Wohnung Top 8
Die zu vermietende Wohnung liegt im 1. Obergeschoß (2. Etage) des Hauses (ohne Lift) und hat eine Wohnfläche von knapp 49m2. Die Raumaufteilung ist äußerst effizient gestaltet; alle Räume wirken sehr hell. Vom Wohnzimmer und vom Schlafzimmer aus ist der östlich ausgerichtete Balkon zu begehen. Die Küche funktional eingerichtet und ist an den Wohnraum angeschlossen. Das Badezimmer hat eine Badewanne. Zur Wohnung zugehörig ist ein Kellerabteil.
Allgemeinflächen - Keller - Parken
Ein geräumiges Kellerabteil bietet zusätzlich viel Platz für Dinge, die man „nicht immer“ braucht. Im allgemeinen Kellerbereich ist ebenfalls eine Waschküche vorhanden.
Ein eigener PKW Abstellplatz ist nicht inkludiert - parken auf öffentlichem Grund rund um das Objekt mittels "Parkpickerl" - https://www.stadt-salzburg.at/parkpickerl
Rechtliches & Hinweise
Wohnraummiete; Details gemäß Mietvertrag. Energieausweis vorhanden (HWB C 51; fGEE B 1,01). Flächenangaben gerundet; Änderungen vorbehalten. Besichtigungen ausschließlich nach Terminvereinbarung.
Der Immobilienmakler erklärt, dass er – entgegen dem in der Immobilienwirtschaft üblichen Geschäftsgebrauch des Doppelmaklers – einseitig nur für den Vermieter tätig ist.
Infrastruktur / Entfernungen
Gesundheit
Arzt <500m
Apotheke <500m
Klinik <1.000m
Krankenhaus <1.000m
Kinder & Schulen
Schule <1.000m
Kindergarten <500m
Universität <1.000m
Höhere Schule <3.000m
Nahversorgung
Supermarkt <500m
Bäckerei <500m
Einkaufszentrum <500m
Sonstige
Bank <500m
Geldautomat <500m
Post <1.500m
Polizei <1.000m
Verkehr
Bus <500m
Bahnhof <1.000m
Autobahnanschluss <5.000m
Flughafen <5.000m
Angaben Entfernung Luftlinie / Quelle: OpenStreetMap
Eckdaten
| Objektnr: | 523/1204 |
| Art: | Wohnung |
| Land: | Österreich |
| Baujahr: | 1973 |
| Zustand: | Gepflegt |
| Alter: | Neubau |
| Gesamtmiete: | 1.185,00 € |
| Kaltmiete (netto): | 918,65 € |
| Kaltmiete: | 1.066,06 € |
| Provision: | Gemäß Erstauftraggeberprinzip bezahlt der Abgeber die Provision. |
| Betriebskosten: | 147,41 € |
| Heizkosten: | 86,83 € |
| MwSt Gesamt: | 32,11 € |
| Wohnfläche: | 48,71 m² |
| Zimmer: | 2 |
| Bäder: | 1 |
| Balkone: | 1 |
| Heizwärmebedarf: | C 51,00 kWh/m²a |
| fGEE: | C 1,01 |
Ausstattung
Fliesen, Laminatboden, Parkett, Zentralheizung, Einbauküche, Ostbalkon, Badewanne
Internet und TV
Information zur Internet und TV Versorgung hier
Ihre persönliche Beratung
Thomas Lainer
Realwert- Immobilientreuhand GmbH
E t.lainer@realwert.at
T +43 662 82 10 75-0
F +43 662 82 10 75-19
