Provisionsfrei! Ruhiges Zuhause im edlen Projekt Brienne.
Wohnung
- Etage,
1030
Wien
,
Aspangstraße 57
Lage der Immobilie
Eingebettet in eine urbane Umgebung punktet die Adresse mit einer perfekten Infrastruktur und Verkehrsanbindung: Sämtliche Geschäfte des täglichen Bedarfs sind ebenso fußläufig entfernt wie Arztpraxen, Kindergärten und Schulen. Die Landstraßer Hauptstraße, eine beliebte Wiener Einkaufsstraße mit einer aufblühenden Lokalszene, erreicht man ebenso wie den Donaukanal innerhalb kürzester Zeit. Die Wiener City und der Hauptbahnhof sind mit der Straßenbahn nur wenige Fahrminuten entfernt und die Schnellbahn bringt Sie ohne Umsteigen zum Flughafen. Über die in der Nähe befindlichen Autobahnauffahrten der A4 und A23 verlassen Sie rasch die Stadt.Beschreibung der Immobilie
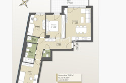
Hochwertig, durchdacht und lichtdurchflutet: Diese Wohnung bietet eine großzügige Wohnküche mit Zugang zum ruhigen Balkon, ein Elternschlafzimmer ebenfalls mit Balkonzugang sowie zwei weitere Zimmer – ideal als Kinder-, Gäste- oder Arbeitszimmer.
Komfortables Badezimmer mit Badewanne, Dusche und Toilette, separates Gäste-WC und praktischer Abstellraum runden das Angebot ab. Fertigstellung Ende 2025 – provisionsfrei!
Anschauen lohnt sich! Lassen Sie die Immobilie bei einer persönlichen Besichtigung auf sich wirken.
Infrastruktur / Entfernungen
Gesundheit
Arzt <250m
Apotheke <350m
Klinik <275m
Krankenhaus <600m
Kinder & Schulen
Schule <100m
Kindergarten <275m
Universität <425m
Höhere Schule <575m
Nahversorgung
Supermarkt <275m
Bäckerei <300m
Einkaufszentrum <250m
Sonstige
Geldautomat <150m
Bank <150m
Post <150m
Polizei <700m
Verkehr
Bus <175m
U-Bahn <800m
Straßenbahn <175m
Bahnhof <175m
Autobahnanschluss <925m
Angaben Entfernung Luftlinie / Quelle: OpenStreetMap
Eckdaten
| Kaufpreis: | 647.400,00 € |
| Fläche: | 74,88 m² |
| Zimmer: | 4 |
Basisdaten zur Immobilie
| Objektnr: | 1939/164240 |
| Art: | Wohnung - Etage |
| Land: | Österreich |
| Baujahr: | 2024 |
| Zustand: | Erstbezug |
| Alter: | Neubau |
| Kaufpreis: | 647.400,00 € |
| Provision: | Provision bezahlt der Abgeber. |
| Wohnfläche: | 74,88 m² |
| Zimmer: | 4 |
| Bäder: | 1 |
| WC: | 1 |
| Heizwärmebedarf: | B 23,90 kWh/m²a |
| fGEE: | A+ 0,69 |
Ausstattung
Fliesen, Parkett, Erdwärme, Wohnküche / offene Küche, Personenaufzug, Kabel/Satelliten-TV
Internet und TV
Information zur Internet und TV Versorgung hier
Ihre persönliche Beratung
Alexandra Kraus
IMMOcontract Immobilien Vermittlung GmbH
A.Kraus@IMMOcontract.at
+43 664 6000 8134
+43 664 6000 8134
F +43 732 890 800 2466
