Doppelhaushälften Haunoldstein!
Haus
- Doppelhaushälfte,
3384
Haunoldstein
Lage der Immobilie
Die angebotene Doppelhaushälfte befindet sich in der idyllischen Gemeinde Haunoldstein im Herzen von Niederösterreich. Eingebettet in eine malerische Landschaft, bietet dieser Ort eine perfekte Symbiose aus Naturnähe und hervorragender Anbindung an die umliegenden Städte. Haunoldstein erfreut sich einer ruhigen und familienfreundlichen Atmosphäre mit einer gut ausgebauten Infrastruktur, die alle Annehmlichkeiten des täglichen Lebens abdeckt.Beschreibung der Immobilie
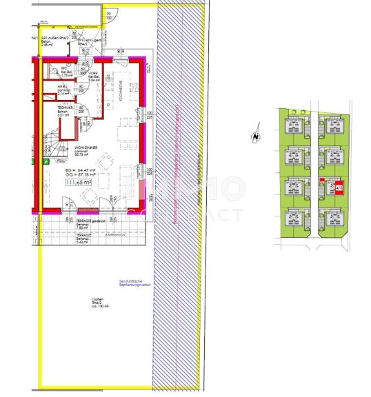
Hier wurden 16 Doppelhaushälften mit großzügigen Freiflächen errichtet.
Die Erschließung der Reihenhäuser erfolgt über überdachte Eingangsbereiche, welche mit einem Außenabstellraum kombiniert sind.
Die Komponenten der Haustechnik sind unter der Treppe situiert.
Ebenso ist auch das helle Wohnzimmer mit der Kochnische vom Vorraum aus direkt begehbar.
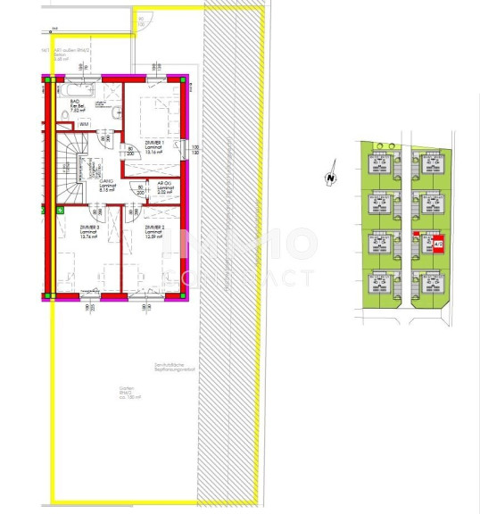
Im Obergeschoß befinden sich drei Schlafzimmer und ein Bad mit Badewanne.
Ausstattung:
Fußbodenheizung
Luft-Wasser Wärmepumpe
Photovoltaikanlage
kontrollierte Wohnraumlüftung
usw.
Weiters werden jeder Wohneinheit zwei freie KFZ-Stellplätze zugeordnet.
Für jede Wohneinheit ist außerdem ein zusätzlicher Außenabstellraum neben den KFZ-Stellplätzen vorgesehen, der auch für Gartengeräte, Mülltonnen und Fahrräder genutzt werden kann.
Besichtigungen ab August 2025, Fertigstellung ab Oktober 2025!
Der Immobilienmakler erklärt, dass er – entgegen dem in der Immobilienwirtschaft üblichen Geschäftsgebrauch des Doppelmaklers – einseitig nur für den Vermieter tätig ist.
Infrastruktur / Entfernungen
Gesundheit
Arzt <3.000m
Apotheke <4.500m
Krankenhaus <9.500m
Kinder & Schulen
Kindergarten <500m
Schule <1.000m
Nahversorgung
Supermarkt <3.500m
Bäckerei <4.500m
Einkaufszentrum <4.500m
Sonstige
Bank <1.000m
Geldautomat <1.000m
Polizei <4.000m
Post <4.500m
Verkehr
Bus <500m
Autobahnanschluss <3.500m
Bahnhof <1.500m
Angaben Entfernung Luftlinie / Quelle: OpenStreetMap
Eckdaten
| Objektnr: | 1939/162990 |
| Art: | Haus - Doppelhaushälfte |
| Land: | Österreich |
| Zustand: | Erstbezug |
| Gesamtmiete: | 1.234,26 € |
| Kaltmiete (netto): | 1.122,05 € |
| Kaltmiete: | 1.122,05 € |
| Provision: | Gemäß Erstauftraggeberprinzip bezahlt der Abgeber die Provision. |
| MwSt Gesamt: | 112,21 € |
| Wohnfläche: | 111,65 m² |
| Zimmer: | 4 |
| Bäder: | 1 |
| WC: | 1 |
| Terrassen: | 1 |
| Garten: | 150,00 m² |
| Heizwärmebedarf: | B 27,00 kWh/m²a |
| fGEE: | A++ 0,53 |
Ausstattung
Fußbodenheizung
Internet und TV
Information zur Internet und TV Versorgung hier
Ihre persönliche Beratung
Christian Pichler
IMMOcontract Immobilien Vermittlung GmbH
E C.Pichler@IMMOcontract.at
T + 43 664 819 18 27
H + 43 664 819 18 27
