Beschreibung der Immobilie
Dieses sehr solide, in Ziegelmassivbauweise erbaute Haus wurde ausgehend vom kleinen, ca. 1954 errichteten Urgebäude in den Jahren 1984 bis 1992 räumlich erheblich erweitert und in den Jahrzehnten danach immer wieder auf einen zeitgemäßen technischen Stand gebracht.
Es wurde der massive Umbau mit großem Sachverstand konzipiert und mit viel Detailliebe zu einem sehr praxisgerechten Objekt vollendet.
Die Raumaufteilung des nicht unterkellerten Hauses überzeugt auf den drei Wohnebenen und offeriert mannigfaltige Nutzungsmöglichkeiten für mehrere Generationen einer Familie oder die Kombination Wohnen und Arbeiten bzw. Wohnen und Firmen- bzw. Bürositz unter einem Dach:
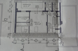
Erdgeschoß:
- großzügiges Entrée
- gemütliches Wohnzimmer mit Kachelofen und Schiebetüren (zum Garten mit Terrasse)
- Wohnküche
- Badezimmer mit Dusche
- WC
- Heiz- und Technikraum (die Luft-Wärme-Pumpe wurde 2023 installiert)
- Abstellraum
- Zugang zur Garage (für 2 PKW; vor dem Haus ist Platz für 2 weitere PKW)
- Vorbereitung eines Aufzugs, der vom Erdgeschoß ins Dachgeschoß geführt werden kann
- von außen zugänglich: Gartengeräte- und Abstellraum
Obergeschoß:
- Vorzimmer
- 4 Zimmer
- Badezimmer mit Wanne
- WC
Dachgeschoß:
- Vorraum
- Küche
- Badezimmer mit Wanne
- WC
- Wohnzimmer mit Ausgang auf die westseitig ausgerichtete, verglaste, mit zu öffnenden Elementen ausgestattete Terrasse
- anschließend: 2 Zimmer
Das gesamte Haus präsentiert sich in sehr gepflegtem Erhaltungszustand und verfügt im Erd- und Dachgeschoß sowie im Badezimmer des Obergeschoßes (in den anderen Räumen des 1. Stocks befinden sich Radiatoren) über eine Fußbodenheizung.
Der liebevoll angelegte Garten ist rund ums Haus begehbar und erfreut das Gärtnerherz.
Die in Zentrumsnähe gelegene Liegenschaft ist von optimaler Infrastruktur umgeben, die großteils fußläufig leicht erreichbar ist (öffentliche Verkehrsmittel, Nahversorger und andere Geschäfte, Ärzte, Restaurants). Die Wienerwaldgemeinde Pressbaum verfügt über sehr gute Verkehrsanbindungen, ist eine anerkannte Schulgemeinde und zeichnet sich durch hohe Lebensqualität mit Nähe zu zahlreichen Erholungsgebieten aus.
Der Kaufpreis beträgt € 740.000,-.
Monatliche öffentliche Abgaben (Grundbesitz, Wasser, Kanal, Müllabfuhr): ca. € 183,21
Provision: 3 % des Kaufpreises zzgl. 20 % USt
WIR SENDEN IHNEN GERNE NACH BEKANNTGABE IHRER KONTAKTDATEN DAS AUSFÜHRLICHE EXPOSÉ MIT LAGEBESCHREIBUNG SOWIE UMFASSENDER FOTO- UND PLANDOKUMENTATION ZU!
Wir freuen uns, Ihnen dieses Objekt im Rahmen einer ausführlichen Besichtigung zu präsentieren:
Team SüdReal
E-Mail: el@suedreal.com
Telefon: 0699/ 10 89 17 19
ZEITGEMÄSSE UND MASSGESCHNEIDERTE FINANZIERUNG:
„Hausbank war gestern“! Heutzutage haben wir für Sie online und sofortigen Zugang zu den besten und neuesten Finanzprodukten von über 120 Kreditinstituten in Österreich und Deutschland. Genau wie beim Immobilienvergleich, ermöglichen wir Ihnen, alle relevanten Bankangebote zu vergleichen, um das beste Kreditkomplettpaket für Sie zu finden! Auch Angebote ohne Eigenmittel, mit festen Zinssätzen und einer beeindruckenden Laufzeit von bis zu 45 Jahren sind verfügbar!
So sparen Sie viel Zeit, Geld und Nerven!
Der Vermittler ist als Doppelmakler tätig.
Eckdaten
| Kaufpreis: | 740.000,00 € |
| Fläche: | 340,00 m² |
| Zimmer: | 8 |
Basisdaten zur Immobilie
| Objektnr: | 28358 |
| Art: | Haus - Landhaus |
| Land: | Österreich |
| Zustand: | Gepflegt |
| Möbliert: | Teil |
| Alter: | Neubau |
| Kaufpreis: | 740.000,00 € |
| Provision: | 3% des Kaufpreises zzgl. 20% USt. |
| Wohnfläche: | 340,00 m² |
| Nutzfläche: | 390,00 m² |
| Grundstücksfl.: | 571,00 m² |
| Zimmer: | 8 |
| Bäder: | 3 |
| WC: | 3 |
| Terrassen: | 1 |
| Stellplätze: | 2 |
| Heizwärmebedarf: | 125,90 kWh/m²a |
| fGEE: | 2,46 |
Internet und TV
Information zur Internet und TV Versorgung hier
Ihre persönliche Beratung
Team SüdReal
TRISTAR Immobilien
office@suedreal.com
+43 699 10 89 17 19
