GROSSZÜGIGE LANDVILLA IN AUSSICHTSLAGE!
Haus
- Villa,
2871
Zöbern
Lage der Immobilie
Die Immobilie befindet sich in Zöbern, einem idyllischen Ort im Bezirk Neunkirchen, Niederösterreich. Die Lage zeichnet sich durch eine ruhige, naturnahe Umgebung aus, die dennoch eine gute Anbindung an wichtige Einrichtungen des täglichen Bedarfs bietet. In der Nähe finden sich verschiedene Einkaufsmöglichkeiten, die den Alltag komfortabel gestalten. Auch Schulen, Kindergarten, Ärzte und Gastronomie sind gut erreichbar.
Freizeitliebhaber profitieren von der unmittelbaren Nähe zu naturnahen Erholungsgebieten, die zu Spaziergängen, Radtouren oder anderen Outdoor-Aktivitäten einladen und so eine ausgeglichene Work-Life-Balance ermöglichen. Die Verbindung von Natur und praktischer Infrastruktur macht diese Lage besonders lebenswert.
Die Erreichbarkeit per Auto ist gut (eigene Auffahrt zur A2), ca. 35 Minuten nach Wr. Neustadt und ca. eine Stunde nach Wien. bzw. öffentlich mit Autobus und Aspangbahn.
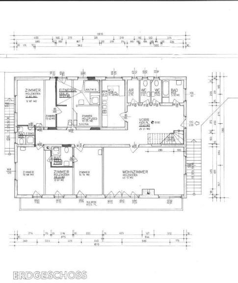
Beschreibung der Immobilie
Schöner Landsitz mit durchdachtem Raumkonzept für Eigentümer und Gäste.
- Wohnsalon mit offenem Kamin und Südbalkon
- Wellnessbereich inkl. Whirlpool, Sauna, Tauchbecken und Ruheraum
- 4 Appartements mit eigenen Bädern im Obergeschoss
Manche Bereiche benötigen eine Renovierung und Auffrischung.
Interessiert? Fordern Sie schriftlich und unverbindlich das Expose mit weiteren Informationen an. Ich freue mich auf eine Besichtigung mit Ihnen.
Eckdaten
| Kaufpreis: | 495.000,00 € |
| Fläche: | 331,00 m² |
| Zimmer: | 6 |
Basisdaten zur Immobilie
| Objektnr: | 0001011306 |
| Art: | Haus - Villa |
| Land: | Österreich |
| Baujahr: | 1968, 1984 Umbau |
| Möbliert: | Teil |
| Kaufpreis: | 495.000,00 € |
| Provision: | 3% des Kaufpreises plus 20% USt. |
| Betriebskosten: | 120,00 € |
| Wohnfläche: | 331,00 m² |
| Grundstücksfl.: | 2.215,00 m² |
| Zimmer: | 6 |
| Bäder: | 6 |
| WC: | 8 |
| Balkone: | 2 |
| Terrassen: | 2 |
| Heizwärmebedarf: | D 124,00 kWh/m²a |
| fGEE: | D 1,85 |
Ausstattung
Öl, Zentralheizung, Einbauküche, Bad mit Fenster, Badewanne, Dusche, Kabel/Satelliten-TV
Internet und TV
Information zur Internet und TV Versorgung hier
Ihre persönliche Beratung
Martin Winkler
Raiffeisen Immobilien Vermittlung
teamnoesued@riv.at
+43517517
+43 664 60 517 517 69
