**Erstbezug ** 2-Zimmer Eigentumswohnung mit Loggia!
Wohnung
,
2440
Gramatneusiedl
Lage der Immobilie
Gramatneusiedl besticht durch seine attraktive Lage in Niederösterreich, die eine perfekte Kombination aus ländlicher Idylle und urbaner Nähe bietet.
Die Gemeinde liegt nur wenige Kilometer von Wien entfernt, was eine schnelle und bequeme Erreichbarkeit der Hauptstadt ermöglicht und somit ideale Voraussetzungen für Pendler oder Stadtliebhaber schafft. Das Freizeitangebot überzeugt durch die unmittelbare Nähe zum Neufeldersee, einem beliebten Naherholungsgebiet, das vielseitige Aktivitäten wie Schwimmen, Wandern, Radfahren und Wassersport anbietet. Zudem laden zahlreiche Rad- und Wanderwege in der Region zu naturnahen Ausflügen ein.
Die Infrastruktur in Gramatneusiedl ist gut ausgebaut, mit Einkaufsmöglichkeiten, Schulen und medizinischer Versorgung in greifbarer Nähe. Die Verkehrsanbindung wird durch den öffentlichen Nahverkehr sowie gut ausgebaute Straßenverbindungen ergänzt, sodass man flexibel und komfortabel unterwegs ist.
Diese gelungene Kombination macht Gramatneusiedl zu einem lebens- und liebenswerten Wohnort mit hohem Erholungswert.
Beschreibung der Immobilie
Nur noch 6 Wohnungen Verfügbar!
Zum Verkauf steht eine moderne Eigentumswohnung im Erstbezug einer neu errichteten Wohnanlage mit Lift in Gramatneusiedl.
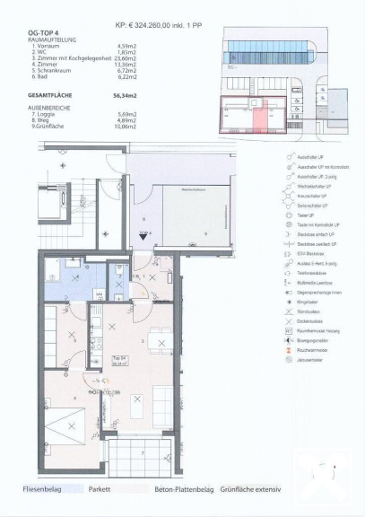
Die Wohnung überzeugt durch eine durchdachte Raumaufteilung, helle Wohnräume sowie einen großzügigen Außenbereich mit Loggia ( 5,69m²) und Grünflächen. Ein zugehöriger Parkplatz ist im Angebot inkludiert.
Mit einer Wohnfläche von ca. 56,34m² eignet sich die Wohnung ideal für Paare, kleine Familien.
Die Fertigstellung ist für August 2026 geplant.
Zögern Sie nicht und vereinbaren Sie noch heute einen Besichtigungstermin mit uns.
Wir freuen uns auf Ihren Anruf!
Eckdaten
| Kaufpreis: | 324.260,00 € |
| Fläche: | 56,34 m² |
| Zimmer: | 2 |
Basisdaten zur Immobilie
| Objektnr: | 0001011327 |
| Art: | Wohnung |
| Land: | Österreich |
| Baujahr: | 2026 |
| Kaufpreis: | 324.260,00 € |
| Provision: | 3% des Kaufpreises plus 20% USt. |
| Wohnfläche: | 56,34 m² |
| Zimmer: | 2 |
| Bäder: | 1 |
| WC: | 1 |
| Heizwärmebedarf: | B 28,40 kWh/m²a |
| fGEE: | A+ 0,64 |
Ausstattung
Etagenheizung, Personenaufzug, Dusche
Internet und TV
Information zur Internet und TV Versorgung hier
Ihre persönliche Beratung
Walter Haider
Raiffeisen Immobilien Vermittlung
teamnoesued@riv.at
+43517517
+43 664 60 517 517 98
