* VIDEOBESICHTIGUNG * * Ab sofort - praktisch aufgeteilte 3,5 Zimmer Altbau Wohnung - Nähe Votikkirche / Altes AKH ***
Wohnung
,
1090
Wien
Lage der Immobilie
Votivpark, Universität Wien, Altes AKHBeschreibung der Immobilie
Liebe Wohnungssuchende!
Wenn Sie eine Besichtigung wünschen bitten wir um Übermittlung konkreter Terminvorschläge Ihrerseits über das Kontaktformular:
www.sulek.immobilien/besichtigung (bitte Herrn Biligil auswählen!)
Nutzen Sie vorab eine Videobesichtigung unter folgendem Link:
https://storage.justimmo.at/file/5olP8WNqIitIbjFl4FIVGo.mov
Herzlichen Dank!
***********************************************
Wohnung
Zur befristeten Vermietung gelangt eine charmante Mietwohnung in nachgefragter Lage des 9. Bezirks in der Schwarzspanierstraße.
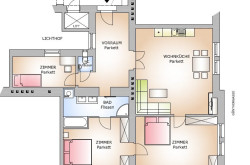
Das Objekt ist situiert im 4.Obergeschoss (Lift vorhanden!) und umfasst eine Wohnfläche von ca. 108 m², die sich wie folgt aufteilt:
- ein großzügiger Vorraum mit Platz für eine Garderobe
- ein getrenntes WC mit Handwaschbecken und Fenster
- eine Wohnküche mit einer Küchenzeile
- ein Badezimmer mit Dusche, Badewanne, Doppelhandwaschbecken sowie Waschmaschinen Anschluss
- 2 Zimmer und ein hofseitiges Kabinett, wahlweise als Schlaf-/Kinder- oder Arbeitszimmer nutzbar
Die Wohnung ist teilweise zentral begehbar. Das kleinste Zimmer, WC und der Vorraum sind hofseitig (Lichthof) ausgerichtet. Die Küche ist mit allen notwendigen Geräten ausgestattet. Den Waschmaschinen Anschluss finden Sie im Badezimmer.
Gut zu Wissen:
- Der Vermieter verlangt von seinen Mietern die Vorlage eines Einkommensnachweises. Bei Mietern ohne eigenes Einkommen (Studenten) wird ein Bürgschaft mit entsprechendem Einkommensnachweis verlangt.
- Geheizt wird mittels Zentralheizung. Die Kosten für Strom & Gas sind in der inserierten Miete nicht Inkludiert!
Lage / Infrastruktur:
Die Schwarzspanierstraße liegt zentral im 9. Wiener Gemeindebezirk, Alsergrund, direkt hinter der Votivkirche. Die Lage zeichnet sich durch eine ausgezeichnete Anbindung an das öffentliche Verkehrsnetz und die Nähe zu wichtigen Einrichtungen und Sehenswürdigkeiten aus.
Öffentliche Verkehrsmittel: Die Adresse ist hervorragend an das öffentliche Verkehrsnetz angebunden. Die U-Bahn-Station Schottentor der Linie U2 ist nur wenige Gehminuten (600m) entfernt. In unmittelbarer Nähe befinden sich zudem die Haltestellen "Schwarzspanierstraße", "Hörlgasse", "Landesgerichtsstraße" und "Schlickgasse", die von zahlreichen Bus- (z.B. 13A, 40A, 59A) und Straßenbahnlinien (z.B. 41, D, E4) bedient werden. Auch diverse S-Bahn-Linien (R40, REX4, S2, S3, S40, S7) sind gut erreichbar. Diese dichte Anbindung ermöglicht eine schnelle Erreichbarkeit des gesamten Stadtzentrums und darüber hinaus.
Sehenswürdigkeiten und Einrichtungen:
-
Votivkirche: Die imposante Votivkirche befindet sich direkt hinter der Schwarzspanierstraße und ist in weniger als einer Minute zu Fuß erreichbar.
-
Josephinum - Medizinhistorisches Museum Wien: Dieses bedeutende Museum ist ebenfalls in unmittelbarer Nähe und bietet Einblicke in die Geschichte der Medizin.
-
Altes AKH (Allgemeines Krankenhaus): Der Campus des Alten AKH, heute ein beliebtes Universitäts- und Freizeitgelände mit zahlreichen Lokalen und Geschäften, ist nur wenige Gehminuten entfernt.
-
Alsergrund: Der Bezirk selbst bietet weitere interessante Orte wie das Servitenviertel mit der Servitenkirche, das Palais Liechtenstein, die Strudelhofstiege, das WUK (Werkstätten- und Kulturhaus) und die ehemalige Praxis von Sigmund Freud.
- Universität Wien: Die Schwarzspanierstraße liegt in unmittelbarer Nähe zur Universität Wien. Das Hauptgebäude der Universität ist nur wenige Gehminuten entfernt. Auch Teile der Medizinischen Universität Wien, wie das Zentrum für Anatomie und Zellbiologie oder das Institut für Gefäßbiologie und Thromboseforschung, befinden sich direkt nebenan.
Insgesamt bietet die Schwarzspanierstraße eine zentrale und verkehrsgünstige Lage mit kurzen Wegen zu öffentlichen Verkehrsmitteln, kulturellen Highlights und Bildungseinrichtungen in Wien.
*************************************
Sollten Sie nach Durchsicht des Inserats eine Besichtigung wünschen, bitten wir um Anfrage über das Kontaktformular und Nennung ein paar konkreter Terminvorschläge.
*************************************
Die zur Verfügung gestellten Informationen beruhen auf die Angaben des Abgebers, der Gemeinde und der Hausverwaltung bzw. der jeweiligen Professionisten. Für die Richtigkeit und Vollständigkeit der Angaben kann keine Gewähr bzw. Haftung übernommen werden. Weiteres weisen wir auf ein wirtschaftliches und/oder familiäres Naheverhältnis hin. Festgehalten wird, dass unser Maklerunternehmen gem. §17 MaklerG einseitig nur für den Vermieter tätig wird, nicht für den Mieter!
Bitte beachten Sie, dass unser Unternehmen keine Reisekosten übernimmt, die im Zusammenhang mit der Besichtigung von Immobilien anfallen. Alle anfallenden Kosten für Anreise, Unterkunft und Verpflegung müssen von den Interessenten selbst getragen werden. Des Weiteren übernehmen wir keine Haftung für Kosten, die durch kurzfristige Stornierungen oder Änderungen von Besichtigungsterminen entstehen können. Wir danken Ihnen für Ihr Verständnis.
*************************************
Noch nichts gefunden?
Wir informieren Sie als Erste/r über passende Immobilienangebote.
Legen Sie jetzt Ihren individuellen Suchagenten über folgenden Link an.
Wir senden Ihnen geeignete Immobilien unverbindlich vorab zu.
Suchagent anlegen - https://sulek-immobilien.service.immo/registrieren/de
Wir weisen darauf hin, dass zwischen dem Vermittler und dem zu vermittelnden Dritten ein familiäres oder wirtschaftliches Naheverhältnis besteht.
Der Immobilienmakler erklärt, dass er – entgegen dem in der Immobilienwirtschaft üblichen Geschäftsgebrauch des Doppelmaklers – einseitig nur für den Vermieter tätig ist.
Infrastruktur / Entfernungen
Gesundheit
Arzt <500m
Apotheke <500m
Klinik <500m
Krankenhaus <1.000m
Kinder & Schulen
Schule <500m
Kindergarten <1.000m
Universität <500m
Höhere Schule <1.000m
Nahversorgung
Supermarkt <500m
Bäckerei <500m
Einkaufszentrum <2.000m
Sonstige
Geldautomat <500m
Bank <500m
Post <500m
Polizei <500m
Verkehr
Bus <500m
U-Bahn <500m
Straßenbahn <500m
Bahnhof <500m
Autobahnanschluss <3.000m
Angaben Entfernung Luftlinie / Quelle: OpenStreetMap
Eckdaten
| Gesamtmiete: | 1.958,94 € |
| Fläche: | 108,20 m² |
| Zimmer: | 3,50 |
Basisdaten zur Immobilie
| Objektnr: | 26161 |
| Art: | Wohnung |
| Land: | Österreich |
| Baujahr: | 1951 |
| Zustand: | Gepflegt |
| Alter: | Altbau |
| Gesamtmiete: | 1.958,94 € |
| Kaltmiete (netto): | 1.406,60 € |
| Kaltmiete: | 1.780,85 € |
| Provision: | Gemäß Erstauftraggeberprinzip bezahlt der Abgeber die Provision. |
| Betriebskosten: | 332,17 € |
| MwSt Gesamt: | 178,09 € |
| Wohnfläche: | 108,20 m² |
| Zimmer: | 3,50 |
| Bäder: | 1 |
| WC: | 1 |
| Heizwärmebedarf: | E 168,20 kWh/m²a |
| fGEE: | E 2,97 |
Ausstattung
Fliesen, Parkett, Gas, Etagenheizung, Wohnküche / offene Küche, Personenaufzug, Badewanne, Dusche
Internet und TV
Information zur Internet und TV Versorgung hier
Ihre persönliche Beratung
Kenan Bilgili
Mittelsmann Philipp Sulek GmbH
kb@sulek-immobilien.at
+43 676 64 33 124
+43 664 354 11 44
