Traumhafte 4-Zimmer-Wohnung in Wattens: Terrasse, Garage und viel Platz für € 539.000.- !
Wohnung
,
6112
Wattens
Lage der Immobilie
Diese charmante Wohnung bei 6112 Wattens in Tirol bietet Ihnen eine ideale Lage für ein komfortables Leben. In unmittelbarer Nähe finden Sie alles, was Sie benötigen: Arzt, Apotheke, Schule und Kindergarten für die Kleinen, sowie Supermarkt, Bäckerei und Bank für den täglichen Bedarf. Auch die Anbindung an öffentliche Verkehrsmittel ist hervorragend, mit Bus, Bahnhof und Autobahnanschluss in der Nähe. Hier genießen Sie eine perfekte Kombination aus Ruhe und Erreichbarkeit.Beschreibung der Immobilie
Willkommen in Ihrer neuen Traumwohnung in 6112 Wattens, Tirol – ein Ort, an dem sich modernes Wohnen mit atemberaubender Natur verbindet!
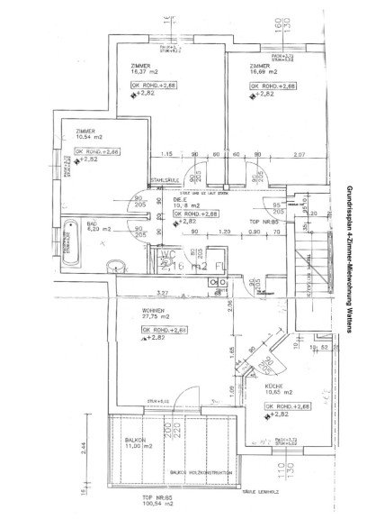
Diese einladende Wohnung befindet sich in der 1. Etage eines gepflegten Wohnhauses und bietet Ihnen auf großzügigen 100,94 m² alles, was das Herz begehrt. Mit einem Kaufpreis von € 539.000.- investieren Sie in ein Zuhause, das sowohl Komfort als auch Lebensqualität verspricht.
Die Wohnung erstreckt sich über vier lichtdurchflutete Zimmer, die Ihnen ausreichend Platz für individuelle Gestaltungsmöglichkeiten bieten. Ob als Familiennest oder Rückzugsort – hier finden Sie Raum für Ihre persönlichen Wünsche und Bedürfnisse. Die hochwertige Ausstattung mit Fliesen und Parkett sorgt für ein modernes und gleichzeitig warmes Wohnambiente.
Ein Highlight dieser Immobilie ist die großzügige Terrasse, die nach Südwesten ausgerichtet ist. Genießen Sie auf Ihrer eigenen Terrasse den herrlichen Bergblick und den Blick ins Grüne – der perfekte Ort, um den Tag bei einem Glas Wein ausklingen zu lassen oder den Sonntag mit einem entspannten Frühstück im Freien zu beginnen.
Die moderne Einbauküche ist nicht nur funktional, sondern lädt auch dazu ein, kulinarische Köstlichkeiten zuzubereiten und gesellige Abende mit Freunden und Familie zu verbringen. Das Badezimmer mit Fenster bietet Ihnen nicht nur einen praktischen Vorteil, sondern auch eine angenehme Atmosphäre zum Entspannen und Wohlfühlen.
Ein weiterer Pluspunkt ist die Tiefgarage, die Ihnen nicht nur einen sicheren Stellplatz für Ihr Fahrzeug bietet, sondern auch zusätzlichen Stauraum für Sportgeräte oder andere Utensilien.
Die Lage dieser Wohnung ist ebenso bemerkenswert. Mit einer ausgezeichneten Verkehrsanbindung sind Sie schnell und unkompliziert unterwegs – sei es mit dem Bus, dem Auto über die nahegelegene Autobahn oder dem Zug am Bahnhof.
In der Umgebung finden Sie alles, was Sie für den täglichen Bedarf benötigen. Ärzte, Apotheken, Schulen, Kindergärten, Supermärkte und Bäckereien sind bequem erreichbar und sorgen dafür, dass Sie sich in Ihrer neuen Heimat rundum wohlfühlen.
Nutzen Sie diese einmalige Gelegenheit und verwirklichen Sie Ihren Traum vom Eigenheim in einer der schönsten Regionen Österreichs. Kontaktieren Sie uns noch heute für eine Besichtigung und überzeugen Sie sich selbst von dieser attraktiven Immobilie in Wattens!
Kaufnebenkosten vom Kaufpreis:
Grunderwerbssteuer 3,5%
Eintragung Eigentumsrecht 1,1% (derzeit besteht die Möglichkeit einer Befreiung von dieser Gebühr)
Vermittlungshonorar 3,0% (+20% Ust)
Kaufvertragserrichtung/Beglaubigungskosten lt. Tarif
Finanzierungskosten lt. Bank
Anmerkung:
Für weitere Informationen oder einen Besichtigungstermin stehen wir Ihnen gerne jederzeit unverbindlich zur Verfügung. Rufen Sie uns einfach an (05223/52204) oder senden Sie uns eine E-Mail (info@jindra-immobilien.at).
© sämtlicher Fotos/Abbildungen Jindra Immobilien
Wir bitten um Verständnis, dass wir unserer Nachweispflicht nachkommen müssen und wir Anfragen nur unter Angabe der vollständigen Kontaktdaten (Vorname, Nachname, Adresse, Telefonnummer, E-Mail) beantworten können!
Das Angebot ist freibleibend. Die Angaben erfolgen aufgrund der Informationen und Unterlagen die uns als Jindra-Hellebrand Immobilien e.U. vom Eigentümer und von Dritten zur Verfügung gestellt wurden und sind somit ohne Gewähr.
Infrastruktur / Entfernungen
Gesundheit
Arzt <1.000m
Apotheke <1.000m
Klinik <5.500m
Krankenhaus <5.500m
Kinder & Schulen
Schule <500m
Kindergarten <1.000m
Universität <5.000m
Nahversorgung
Supermarkt <1.000m
Bäckerei <1.000m
Einkaufszentrum <10.000m
Sonstige
Bank <1.000m
Geldautomat <1.500m
Post <1.500m
Polizei <1.000m
Verkehr
Bus <1.000m
Autobahnanschluss <500m
Bahnhof <1.000m
Straßenbahn <9.500m
Angaben Entfernung Luftlinie / Quelle: OpenStreetMap
Eckdaten
| Objektnr: | 5231/1452 |
| Art: | Wohnung |
| Land: | Österreich |
| Baujahr: | 1996 |
| Zustand: | Gepflegt |
| Kaufpreis: | 539.000,00 € |
| Kaufpreis / m²: | auf Anfrage |
| Betriebskosten: | 161,70 € |
| Heizkosten: | 163,80 € |
| Sonstige Kosten: | 122,01 € |
| Wohnfläche: | 100,94 m² |
| Zimmer: | 4 |
| Bäder: | 1 |
| WC: | 1 |
| Terrassen: | 1 |
| Heizwärmebedarf: | C 65,00 kWh/m²a |
| fGEE: | 1,24 |
Ausstattung
Fliesen, Parkett, Gas, Zentralheizung, Einbauküche, Bad mit Fenster, Tiefgarage
Internet und TV
Information zur Internet und TV Versorgung hier
Ihre persönliche Beratung
Inh. Robert T. Jindra-Hellebrand
Jindra Immobilien GmbH
info@jindra-immobilien.at
+43 5223 52204
