WOHNEN AM PARK - Urban & Grün - 2 Zimmer - DG Wohnung - NEUBAU
Wohnung
- Dachgeschoß,
1160
Wien
Lage der Immobilie
Perfekte Infrastruktur & urbaner Lifestyle Die Lage überzeugt mit ausgezeichneter öffentlicher Anbindung: Die U6-Station Burggasse-Stadthalle sowie die Straßenbahnlinien 6, 9, 18, 49 und 52 sorgen für eine schnelle Verbindung in alle Richtungen. Der Autobus 48A bringt Sie in wenigen Minuten direkt zum Ring – ideal für den schnellen Weg ins Zentrum. Auch die Nahversorgung lässt keine Wünsche offen: Sämtliche Geschäfte des täglichen Bedarfs befinden sich in unmittelbarer Nähe. Die beliebte Lugner City mit vielfältigen Shops, Gastronomie und Kino ist fußläufig erreichbar. Ergänzt wird das Angebot durch die Westbahnhof-City, die nicht nur durch ihre Vielzahl an Geschäften punktet, sondern auch mit einem Supermarkt, der an Sonn- und Feiertagen geöffnet hat – ein echter Pluspunkt. In direkter Umgebung liegt zudem die Mariahilfer Straße, eine der beliebtesten Einkaufsmeilen Wiens mit zahlreichen Flagship-Stores, Boutiquen und Cafés. Kulinarik und urbanes Flair bieten der trendige Brunnenmarkt und der Yppenplatz, während der angrenzende 7. und 8. Bezirk mit seiner vielfältigen Lokalszene zum Genießen und Verweilen einlädt. Für Erholung im Grünen sorgen der direkt vor der Haustür gelegene Arik-Brauer-Park sowie die schnell erreichbaren Naherholungsgebiete Wilhelminenberg und Schönbrunn. Wer mit dem Auto unterwegs ist, profitiert von der schnellen Anbindung an die Stadtausfahrten über den nahegelegenen Gürtel.Beschreibung der Immobilie
WOHNEN AM PARK – Urbanes Leben mit Grünblick
In ruhiger Lage, eingebettet in eine verkehrsberuhigte Sackgasse direkt am idyllischen Arik-Brauer-Park, entsteht ein exklusives Wohnprojekt mit rund 150 hochwertig ausgestatteten Eigentumswohnungen – ideal für alle, die urbanes Wohnen mit Naturnähe verbinden möchten. Die smart geplanten Wohnflächen von ca. 30 m² bis 130 m² bieten für jede Lebensphase das passende Zuhause.
Ob kompakte Apartments für Singles, Anleger und Vorsorgemodelle oder großzügige 3- bis 4-Zimmer-Wohnungen für Paare und Familien – hier trifft durchdachte Architektur auf zeitgemäßen Wohnkomfort. Fast alle Einheiten punkten mit privaten Freiflächen wie Balkon, Loggia, Terrasse oder Eigengarten – perfekt, um die grüne Umgebung in vollen Zügen zu genießen.
Ein gepflegter, begrünter Innenhof, ein Kleinkinderspielplatz sowie Fahrrad- und Kinderwagenräume bieten zusätzlichen Raum für Begegnung, Spiel und Erholung. Ein Gemeinschaftsraum lädt zu nachbarschaftlichem Miteinander ein. Für höchsten Komfort sorgt die hauseigene Tiefgarage – bequem und barrierefrei gelangen Sie mit dem Aufzug direkt in Ihr neues Zuhause.
Geplante Fertigstellung: 2028 – sichern Sie sich schon jetzt Ihren Platz im Grünen mitten in der Stadt!
NEBENKOSTEN
Der guten Ordnung halber halten wir fest, dass, sofern im Angebot nicht anders vermerkt, bei erfolgreichem Abschlussfall eine Provision anfällt, die den in der Immobilienmaklerverordnung BGBI. 262 und 297/1996 festgelegten Sätzen entspricht - das sind 3 % des Kaufpreises zzgl. 20 % USt. Diese Provisionspflicht besteht auch dann, wenn Sie die Ihnen überlassenen Informationen an Dritte weitergeben. Es besteht ein wirtschaftliches Naheverhältnis zum Verkäufer. Wir weisen darauf hin, dass wir als Doppelmakler tätig sind. Die Vertragserrichtung und Treuhandabwicklung ist gebunden an ARNOLD Rechtsanwälte GmbH, Stoß im Himmel 1, 1010 Wien. Die Kosten betragen 1,5 % des Kaufpreises zzgl. 20 % USt. sowie Barauslagen und Beglaubigung.
Wir weisen darauf hin, dass zwischen dem Vermittler und dem zu vermittelnden Dritten ein familiäres oder wirtschaftliches Naheverhältnis besteht.
Der Vermittler ist als Doppelmakler tätig.
Infrastruktur / Entfernungen
Gesundheit
Arzt <500m
Apotheke <500m
Klinik <500m
Krankenhaus <1.500m
Kinder & Schulen
Schule <500m
Kindergarten <500m
Universität <1.000m
Höhere Schule <1.000m
Nahversorgung
Supermarkt <500m
Bäckerei <500m
Einkaufszentrum <500m
Sonstige
Geldautomat <500m
Bank <500m
Post <500m
Polizei <500m
Verkehr
Bus <500m
U-Bahn <500m
Straßenbahn <500m
Bahnhof <500m
Autobahnanschluss <4.500m
Angaben Entfernung Luftlinie / Quelle: OpenStreetMap
Eckdaten
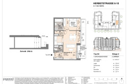
| Kaufpreis: | 414.100,00 € |
| Fläche: | 50,33 m² |
| Zimmer: | 2 |
Basisdaten zur Immobilie
| Objektnr: | 1939/162861 |
| Art: | Wohnung - Dachgeschoß |
| Land: | Österreich |
| Baujahr: | 2026 |
| Zustand: | Voll_saniert |
| Alter: | Neubau |
| Kaufpreis: | 414.100,00 € |
| Provision: | 14.907,60 € inkl. 20% USt. |
| Wohnfläche: | 50,33 m² |
| Zimmer: | 2 |
| Bäder: | 1 |
| WC: | 1 |
| Terrassen: | 1 |
| Keller: | 2,40 m² |
| Heizwärmebedarf: | B 22,50 kWh/m²a |
| fGEE: | A 0,73 |
Ausstattung
Fliesen, Parkettboden, Fernwärme, Wohnküche / offene Küche, Personenaufzug, Kabel/Satelliten-TV
Internet und TV
Information zur Internet und TV Versorgung hier
Ihre persönliche Beratung
Mag. Ines Lirsch-Toifl
IMMOcontract Immobilien Vermittlung GmbH
I.Lirsch@IMMOcontract.at
+43 664 6000 8202
+43 664 6000 8202
