Familien- Gartenwohnung!
Wohnung
- Erdgeschoß,
3141
Kapelln
Lage der Immobilie
Kapelln, idyllisch gelegen im Herzen Niederösterreichs, bietet die perfekte Kombination aus ländlichem Charme und urbaner Anbindung. Diese Wohnhausanlage befindet sich in einer ruhigen und freundlichen Gemeinde, die durch ihre naturnahe Umgebung und die Nähe zu wichtigen Infrastrukturen besticht. Kapelln liegt in der malerischen Region des Mostviertels, bekannt für ihre sanften Hügel und weitläufigen Wiesenlandschaften. Die Stadt St. Pölten, die niederösterreichische Landeshauptstadt, ist in kurzer Fahrtzeit erreichbar und bietet eine Fülle an kulturellen und sozialen Möglichkeiten. Der Bahnhof in der Nähe ermöglicht eine bequeme Anbindung an das öffentliche Verkehrsnetz, während die Autobahnen A1 und S33 schnelle Verbindungen zu den wichtigsten Städten und Regionen garantieren. Die Wohngegend selbst ist von einer harmonischen Nachbarschaft geprägt und bietet eine hohe Lebensqualität. In der Umgebung finden sich alle notwendigen Einrichtungen des täglichen Lebens: Supermärkte, gemütliche Gaststätten sowie Schulen und Kindergärten machen den Alltag angenehm und unkompliziert. Zahlreiche Wander- und Radwege laden zur Erholung und zum Entdecken der malerischen Landschaft ein, die Kapelln so einzigartig macht. Zusammengefasst besticht diese Lage durch eine harmonische Balance zwischen Ruhe und Lebendigkeit, ideal für Familien, Berufstätige und Ruhesuchende gleichermaßen.Beschreibung der Immobilie
Kapelln - Quellengasse
Hier wurden 6 Reihenhäuser und 26 Wohnungen mit großzügigen Freiflächen errichtet,
welche in Wohnungseigentum bzw. in Miete mit Kaufoption provisionsfrei vergeben werden.
Ausstattung:
Fußbodenheizung
Wohnungen mittels Pelletsheizung, Reihenhäuser Luft-Wasser Wärmepumpe
Reihenhäuser mit Photovoltaikanlage
Solaranlage je Wohnhaus
kontrollierte Wohnraumlüftung pro Wohneinheit
usw.
Jeder Wohneinheit stehen ein bis zwei KFZ-Stellplätze zu Verfügung.
Besichtigungen nach telefonischer Vereinbarung jederzeit möglich!
Infrastruktur / Entfernungen
Gesundheit
Arzt <1.500m
Apotheke <5.500m
Klinik <7.000m
Kinder & Schulen
Schule <500m
Kindergarten <6.500m
Nahversorgung
Supermarkt <500m
Bäckerei <5.500m
Einkaufszentrum <5.500m
Sonstige
Bank <500m
Geldautomat <500m
Post <500m
Polizei <5.500m
Verkehr
Bus <500m
Autobahnanschluss <4.500m
Bahnhof <5.000m
Angaben Entfernung Luftlinie / Quelle: OpenStreetMap
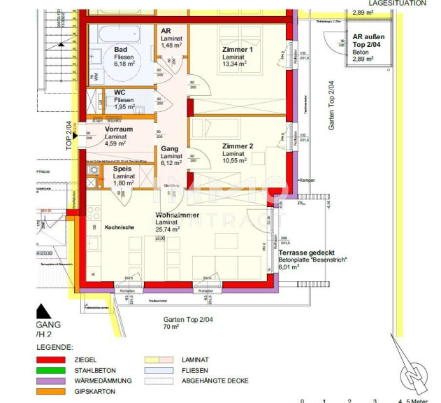
Eckdaten
| Kaufpreis: | 286.084,56 € |
| Fläche: | 71,75 m² |
| Zimmer: | 3 |
Basisdaten zur Immobilie
| Objektnr: | 1939/163203 |
| Art: | Wohnung - Erdgeschoß |
| Land: | Österreich |
| Baujahr: | 2023 |
| Zustand: | Erstbezug |
| Kaufpreis: | 286.084,56 € |
| Provision: | Provision bezahlt der Abgeber. |
| Wohnfläche: | 71,75 m² |
| Zimmer: | 3 |
| Bäder: | 1 |
| WC: | 1 |
| Terrassen: | 1 |
| Garten: | 70,00 m² |
| Heizwärmebedarf: | A 22,60 kWh/m²a |
| fGEE: | A++ 0,51 |
Ausstattung
Fußbodenheizung
Internet und TV
Information zur Internet und TV Versorgung hier
Ihre persönliche Beratung
Christian Pichler
IMMOcontract Immobilien Vermittlung GmbH
C.Pichler@IMMOcontract.at
+ 43 664 819 18 27
+ 43 664 819 18 27
