Anpacker gesucht - entkerntes Einfamilienhaus in Laimbach am Ostrong!
Haus
- Einfamilienhaus,
3663
Laimbach am Ostrong
Lage der Immobilie
Das Haus befindet sich am südwestlichen Teil von LAIMBACH am Fuße des Ostrong. Die Region ist bekannt für Ihe Wander- und Mountainbikewege, und touristisch bestens erschlossen!
Ad Freizeit & Bildung ist das nahe Yspertal dank Hallenbad, Kletterhalle, Badeteich und höherer Lehranstalt nebst NMS Anziehungspunkt, ad Einkauf & Arbeit spielen das nahe Ybbs (mit A1-Anschluß und Bahnhof) oder auch Pöggstall und das untere Waldviertel, eine größere Rolle! Sportler nehmen auch gerne die Loipen oder Wege des sehr nahen Gutenbrunn gerne in Anspruch!
Laimbach selbst verfügt über ein reges Vereinsleben und gastronomische Versorgung vor Ort nebst im südlichen Waldviertel obligatem Zusammenhalt!
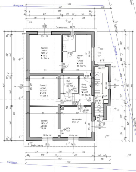
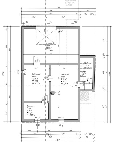
Beschreibung der Immobilie
Anpacker und/oder Handwerker aufgepasst!
Für Sie bietet sich bei diesem Einfamilienhaus in Laimbach am Ostrong, die seltene Gelegenheit, ein bereits entkerntes und außen saniertes Objekt, ganz nach Ihren Wünschen fertig zu stellen - hier dessen Eigenschaften:
- Grundstücksgröße ~ 2.600 qm
- Geschossfläche ~ 100 qm geteilt auf Ober- & Untergeschoss
- im Außenbereich bereits abgeschlossene Arbeiten wie Schüttungen, Pflastern etc.
- vollständig entkernt und für Verlegung FuBoHeizung bwz. Innenausbau vorbereitet
- teilweise Ersatz der Fenster wie auch Zu- bzw. Aufmauern erledigt
- bewusstes Belassen der (nicht angeschlossenen) Ölheizung ad Förderungen
- Lage an der B36 - Nord-Süd-Verbindung des Wald- & Mostviertel
- ein Fortsetzen der Arbeiten kann alternativ vereinbart werden
Wir würden uns sehr freuen, wenn sich hier jemand mit viel Einsatz und Fachverstand findet, der auch ob Eigenleistung, eine günstige und individuell Fertigstellung prompt in Angriff nimmt!
Für einen besseren Eindruck, laden wir Sie auch ein, unter den "Links" die bereit gestellten Videos abzurufen!
Reinhard Lembacher steht Ihnen gerne ad Rückfragen zur Verfügung, und ersucht bei Interesse um schriftliche Anfrage, in der von Ihnen verwendeten Internetplattform!
Eckdaten
| Kaufpreis: | 178.000,00 € |
| Fläche: | 102,00 m² |
| Zimmer: | 3 |
Basisdaten zur Immobilie
| Objektnr: | 0001011334 |
| Art: | Haus - Einfamilienhaus |
| Land: | Österreich |
| Baujahr: | 1980 |
| Kaufpreis: | 178.000,00 € |
| Provision: | 3% des Kaufpreises plus 20% USt. |
| Betriebskosten: | 300,00 € |
| Wohnfläche: | 102,00 m² |
| Nutzfläche: | 202,00 m² |
| Grundstücksfl.: | 139,00 m² |
| Gesamtfläche: | 2.596,00 m² |
| Zimmer: | 3 |
| Bäder: | 1 |
| WC: | 1 |
| Garten: | 2.357,00 m² |
| Keller: | 100,00 m² |
Ausstattung
Öl, Zentralheizung
Internet und TV
Information zur Internet und TV Versorgung hier
Ihre persönliche Beratung
Reinhard Lembacher
Raiffeisen Immobilien Vermittlung
reinhard.lembacher@riv.at
+43517517
+43 664 60 517 517 90
