Gartenwohnung mit stabilem Mietertrag - Eigennutzung ab 08/2027 möglich!
Wohnung
- Erdgeschoß,
8501
Lieboch
Lage der Immobilie
Die aufstrebende Marktgemeinde LIEBOCH, nur wenige Fahrminuten von der Landeshauptstadt Graz entfernt, punktet mit umfangreicher Infrastruktur, die rege Nachfrage nach derartigen, stadtnahen Lagen garantiert ein wertbeständiges und nachhaltiges Investment.
Die Wohnanlage befindet sich in erhöhter und doch zentraler Aussichtslage, zahlreiche Einkaufsmöglichkeiten, Kinderbetreuung, Schulen und öffentliche Verkehrsmittel (inkl. S-Bahn!) befinden sich in fußläufiger Entfernung.
Autobahnanbindung in kurzer Fahrdistanz und trotzdem ländliches Flair mit Panoramafernsicht – das ist wahre Lebensqualität!
Beschreibung der Immobilie
Top-Investment oder Eigennutzung mit Perspektive – moderne 3-Zimmer-Gartenwohnung
Diese exklusive Gartenwohnung einer 2024 fertiggestellten Wohnanlage in sehr guter Wohnlage in Lieboch ist bis 31.07.2027 befristet vermietet – ideal für Anleger mit Weitblick! Monatlicher Nettomietertrag derzeit: € 962,50 (Indexierung ab 04/2026 möglich!)
Dank durchdachter Architektur ohne Wohnungstrennwände genießen Sie nahezu den Komfort eines Einfamilienhauses.
Highlights:
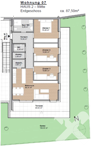
- Ca. 40 m² offener Wohn-/Essbereich
- 3 helle Schlafzimmer
- Großzügige Sonnenterrasse
- Rd. 100m² eigenes Gartengrundstück
- Modernes Bad, 2 WCs (!)
- 2 überdachte KFZ-Stellplätze
- Kellerabteil mit Stromanschluss
- E-Ladestation optional
Ideal für Anleger oder Eigennutzer mit langfristiger Planung.
Fordern Sie gleich die ausführlichen Unterlagen über diese Plattform an, gerne organisieren wir danach einen Besichtigungstermin für Sie!
Eckdaten
| Kaufpreis: | 350.000,00 € |
| Fläche: | 87,50 m² |
| Zimmer: | 4 |
Basisdaten zur Immobilie
| Objektnr: | 00050013130034 |
| Art: | Wohnung - Erdgeschoß |
| Land: | Österreich |
| Baujahr: | 2023 |
| Kaufpreis: | 350.000,00 € |
| Kaufpreis / m²: | auf Anfrage |
| Provision: | 3% des Kaufpreises plus 20% USt. |
| Betriebskosten: | 165,74 € |
| Heizkosten: | 104,28 € |
| Wohnfläche: | 87,50 m² |
| Zimmer: | 4 |
| Bäder: | 1 |
| WC: | 2 |
| Terrassen: | 1 |
| Garten: | 100,00 m² |
| Keller: | 7,70 m² |
| Heizwärmebedarf: | B 45,80 kWh/m²a |
| fGEE: | A 0,73 |
Ausstattung
Fußbodenheizung, Einbauküche
Internet und TV
Information zur Internet und TV Versorgung hier
Ihre persönliche Beratung
Andreas Glettler
Raiffeisen Steiermark
andreas.glettler@rlbstmk.at
22714
+43 664 627 51 02
