Lage der Immobilie
FavoritenBeschreibung der Immobilie
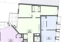
Zum Verkauf gelangt eine ca. 82 qm große 3-Zimmerwohnung im 2. Liftstock eines modernen, im Jahr 2014 erbauten Hauses in der Leibnitzgasse in 1100 Wien. Die Wohnung wird mittels Fußbodenheizung und Fernwärme beheizt und gliedert sich in:
- Vorraum
- großes zentrales Wohn-, Esszimmer mit offener Küche und Zugang zum hofseitigen Balkon
- WC
- Schlafzimmer mit Balkonzugang
- Bad mit Wanne
- Kinderzimmer
Wir weisen darauf hin, dass zwischen dem Vermittler und dem zu vermittelnden Dritten ein familiäres oder wirtschaftliches Naheverhältnis besteht.
Infrastruktur / Entfernungen
Gesundheit
Arzt <500m
Apotheke <500m
Klinik <500m
Krankenhaus <2.000m
Kinder & Schulen
Schule <500m
Kindergarten <500m
Universität <1.000m
Höhere Schule <2.500m
Nahversorgung
Supermarkt <500m
Bäckerei <500m
Einkaufszentrum <1.000m
Sonstige
Geldautomat <500m
Bank <500m
Post <500m
Polizei <1.000m
Verkehr
Bus <500m
U-Bahn <500m
Straßenbahn <500m
Bahnhof <500m
Autobahnanschluss <1.500m
Angaben Entfernung Luftlinie / Quelle: OpenStreetMap
Eckdaten
| Kaufpreis: | 345.000,00 € |
| Fläche: | 81,12 m² |
| Zimmer: | 3 |
Basisdaten zur Immobilie
| Objektnr: | 6822/486 |
| Art: | Wohnung |
| Land: | Österreich |
| Baujahr: | 2014 |
| Zustand: | Gepflegt |
| Alter: | Neubau |
| Kaufpreis: | 345.000,00 € |
| Provision: | 3% des Kaufpreises zzgl. 20% USt. |
| Betriebskosten: | 176,46 € |
| MwSt Gesamt: | 17,65 € |
| Wohnfläche: | 81,12 m² |
| Nutzfläche: | 81,12 m² |
| Zimmer: | 3 |
| Bäder: | 1 |
| WC: | 1 |
| Heizwärmebedarf: | B 38,40 kWh/m²a |
| fGEE: | B 0,85 |
Ausstattung
Fliesen, Parkett, Fußbodenheizung, Wohnküche / offene Küche, Personenaufzug, Badewanne
Internet und TV
Information zur Internet und TV Versorgung hier
Ihre persönliche Beratung
Dipl.-Ing. Wolfgang Grande
Grande Immobilien GmbH
wolfgang@grande-immo.at
+43 664 92 700 10
