WEITBLICK garantiert: Modern möblierte 2-Zimmer-Wohnung mit Klima im One-Tower mit Pool und vielen Extras im Haus!
Wohnung
,
1030
Wien,Landstraße
,
Modecenterstraße
Lage der Immobilie
U3 Gasometer / ONE-Tower / MGC-Halle / St. Marx Autobahnauffahrt / Wien - Erdberg / hervorragende Lage und Infrastruktur (beste Anbindung an die Öffentlichen Verkehrsmitteln: Gasometer + Erdberg Busbahnhof und U3, sowie eine optimale Verbindung zum Stadtzentrum und zum Flughafen!)Beschreibung der Immobilie
Zur Vermietung gelangt eine neuwertige Wohnung der Superlative im One Tower (Modecenterstraße): modern-möblierte 2-Zimmer-Wohnung
mit einem unverwechselbarem Weitblick über die Stadt ab 01.05.2026 zur Anmietung frei!
Vermietet wird kurzfristig (3 - 6 Monate oder auch langfristig danach auf 3 - 5 Jahre vermietet!
Komplett ausgestattete Wohnung mit allen Kosten inklusive!
Apartment in welches man nur mit den Kleiderkoffer ein- und wieder ausziehen kann. Alles vorhanden Kaffeemaschine über Flaschenöffner, bis zum Locher und Hefter im Schreibtisch. Dazu gehört auch ein Ansprechpartner für diverse Services in Wien (Tickets, Abos, etc.). Wohnen der absoluten Extraklasse: Neben dem faszinierenden Fernblick verfügen die Wohnungen über eine exklusive und smarte Ausstattung.
Voller Luxus im Haus und vieles rund um die Uhr:
Sicherheitsdienst in der Lounge, 24 Std Online Store im Haus (marktzeit.at), ebenso Restaurants im Block, ein best ausgestattetes privates Fitnesscenter, ungestörte Tartan Laufstrecke (400m) im Aussenbereich, Sauna, verschiedene Lebensmittelgeschäfte und eine Shoppingmall in direkter Umgebung.
In dem Wohnturm befindet sich ein Outdoor-Pool mit Liegemöglichkeiten zum entspannen, ein Sonnendeck, Kinderwagen- und Fahradräume, Laufstrecke im Dritten Obergeschoss, Paketboxanlage, multifunktionale Gemeinschaftsräume, Indoor- und Outdoor-Kinderspielplätze, Fitnessräume, Spa und Saunabereich, Waschküche, Foyer mit Concierge-Service / Rezeption beim Eingang, attraktive Außenanlagen mit parkähnlichen Freiflächen, Gastronomie, Shops und Lebensmittelhandel.
Perfekte Antwort auf Sommerhitze
Hier fühlt man sich auch bei einer Hitzewelle wohl: Klimaanlage in der Wohnung, Outdoorpool im Haus (nur für Bewohner) und Grüne Lunge Wiens fast vor dem Haus
Beste Anbindung zu Fuss, mit Fahrrad, an öffentlichen Verkehr, an Autobahn und an Flughafen
Quasi neben den riesigen Nacherholungsgebieten (zu Fuss oder mit Fahrrad durch den Prater bis zur Donau und Donauinsel). 3 min zu Fuss zu U3 (und dann in 9 min am Stephansplatz), gleich bei Auffahrt zu Autobahn Richtung Flughafen (12 min mit Auto) und doch ruhig. Und noch nahe den Wolken und damit ruhig.
Die Anbindung ist sehr gut. Es befinden sich gleich unweit die U3 Station Gasometer bzw. Erdberg, mehrere Busstationen und der Autobahnanschluss St. Marx. Hervorragende Lage und Infrastruktur; Beste Anbindung an die Öffentlichen Verkehrsmitteln: Gasometer + Erdberg Busbahnhof und U3, sowie eine optimale Verbindung zum Stadtzentrum und zum Flughafen!
Zur Wohnung kann auf Bedarf zusätzlich gegen Aufpreis zur Verfügung gestellt werden:
IT Services bei Bedarf; Drucker, etc.
Reinigungsservice (1x wöchentlich); Wäscheservice;
Zusammenstellung eines maßgeschneiderten individuellen «Welcome Package» (z.B. Abo für öffentlichen Verkehr, etc., Lebensmittel und Getränkebestellungen - Grundnahrungsmittel vor Einzug und auf Bedarf, ausgewählter Veranstaltungskalender und Ticketservices);
Die Wohnung verfügt über einen hochwertigen Parkettboden in den Wohn- und Schlafräumen und zeitlose Fließen in den Nassräumen.
Die moderne Küche ist mit hochwertigenGeräten ausgestattet.
Vom Balkon genießen Sie den schönen Weitblick über die Dächer Wiens.
Highlights:
* Faszinierender Fernblick (Weitblick garantiert)
* Einzigartiges Raumgefühl (sehr gutes Raumkonzept und Möblierung)
* Dreifach verglaste, raumhohe Fenster (Innenajalousien vorhanden)
* Fußbodenheizung + Klimaanlage im Wohnzimmer und Schlafzimmer
* Hochwertige Küche mit allen Geräten und Utensilien
* komplett modern möbliert: die Möbel sind alle neuwertig;
* Waschmaschine im Badezimmer vorhanden;
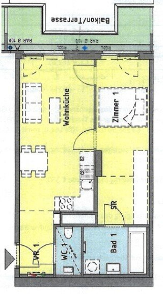
Es erwartet Sie ein Vorzimmer mit Garderobenbereich und Sicherheitstür, ein Wohnzimmer mit offener Küche, welche ist mit allen Geräte (Herdplatte, Backoffen, Kühlschrank mit Gefrierfach, Geschirrspüler, Dunstabzug, etc.). Im Wohnzimmer befindet sich ein 120 zoll Fernseher, eine Couch mit Couch-Tisch, Esstisch mit Stühlen, Klimaanlage, etc.
Die Küche beinhaltet sogar das Geschirr und Besteck, eine neue Kaffeemaschine und alles was Sie zum kochen brauchen.
Das Schlafzimmer verfügt über ein Doppelbett inkl. Matratze, Lattenrost, Kopfkissen, etc., sowie einen geräumigen Kleiderschrank und einen Bürotisch mit Sessel.
Das Badezimmer ist mit einer Badewanne, Waschbecken ausgestattet. Eine Waschmaschine ist vorhanden;
Das WC liegt separat und befindet sich gleich beim Eingang.
Der Balkon bietet einen atemberaubenden Ausblick, der sowohl vom Wohn- und Schlafzimmer aus zugänglich ist.
Ein Kellerabteil wird dem Mieter zur Verfügung gestellt.
Ein Garagenstellplatz kann bei Bedarf extra angemietet werden je nach Bedarf und Verfügbarkeit.
Geheizt wird mittels Fußbodenheizung (Fernwärme) oder Klimagerät (elektrisch). Man kann hier die Temperatur regulieren durch Klimakontrolle.
Extras im Haus:
* Swimmbecken / Outdoor-Pool mit Liegemöglichkeiten
* Fitnessraum mit zahlreichen Geräten
* Laufstrecke rund um die Anlage im 3. Stockwerk
* 2 x Spa und Sauna + Ruhebereich
* Gemeinschaftsraum
* 3 x Kinderspielraum (Indoor)
* Outdor-Kinderspielplatz
* Bikeregal / Fahrradräume
* Kinderwagenraum
* Waschraum / Trockenraum
* Gastronomie und Supermärkte in der Anlage + Umgebung
* 7 Tage und 24 Stunden persönlicher Sicherheitsdienst vor Ort im Tower + Videoüberwachung
* Garagenstellplatz kann extra angemietet werden nach Verfügbarkeit.
Konditionen:
All-IN-Miete: Nettomietzins, Betriebskosten, Lift, Möbelmiete, Strom, Fernwärme (Heizung und Warmwasser), Internet, GIS, Haushaltsversicherung,
sowie die anteiligen Steuern und Abgaben: € 1.994,92
Kaution: 6.000, -- EUR // Mietvertragserstellungskosten: € 360,--
Mietdauer: Kurzzeitvermietung von 3 - 6 Monate möglich;
Der vertrag ist auch verlängerbar dann auf 3 - 5 Jahre;
Mietbeginn: ab 01.05.2026 möglich;
Kündigungsverzicht: 1 Jahr; Kündigungsfrist: 3 Monate;
Kontakt:
Bitte beachten Sie, dass wir aufgrund der Nachweispflicht gegenüber dem Eigentümer nur Anfragen mit vollständiger Angabe der Anschrift bearbeiten können.
Wir senden Ihnen gerne weitere und detaillierte Beschreibungen, sowie Besichtigungstermine zu, sobald wir Ihre Anfrage erhalten haben.
Wir bitten Sie um eine Email an: office@pr-immobilien.at
Noch nichts gefunden? Wir informieren Sie über geeignete Immobilienangebote noch vor allen anderen.
Legen Sie jetzt Ihren individuellen Suchagenten unter folgendem Link an. Wir schicken Ihnen passende Immobilien exklusiv vorab zu.
Suchagent anlegen - https://pr-immobilien-real-estate.service.immo/registrieren/de
Hinweis gemäß Energieausweisvorlagegesetz: Ein Energieausweis wurde vom Eigentümer bzw. Verkäufer, nach unserer Aufklärung über die generell geltende Vorlagepflicht, sowie Aufforderung zu seiner Erstellung noch nicht vorgelegt. Daher gilt zumindest eine dem Alter und der Art des Gebäudes entsprechende Gesamtenergieeffizienz als vereinbart. Wir übernehmen keinerlei Gewähr oder Haftung für die tatsächliche Energieeffizienz der angebotenen Immobilie.
Der Immobilienmakler erklärt, dass er – entgegen dem in der Immobilienwirtschaft üblichen Geschäftsgebrauch des Doppelmaklers – einseitig nur für den Vermieter tätig ist.
Infrastruktur / Entfernungen
Gesundheit
Arzt <250m
Apotheke <500m
Klinik <250m
Krankenhaus <1.750m
Kinder & Schulen
Schule <500m
Kindergarten <500m
Universität <1.000m
Höhere Schule <1.000m
Nahversorgung
Supermarkt <250m
Bäckerei <500m
Einkaufszentrum <500m
Sonstige
Geldautomat <500m
Bank <750m
Post <750m
Polizei <1.250m
Verkehr
Bus <250m
U-Bahn <250m
Straßenbahn <750m
Bahnhof <500m
Autobahnanschluss <750m
Angaben Entfernung Luftlinie / Quelle: OpenStreetMap
Eckdaten
| Objektnr: | 3940 |
| Art: | Wohnung |
| Land: | Österreich |
| Baujahr: | 2022 |
| Zustand: | Neuwertig |
| Möbliert: | Voll |
| Alter: | Neubau |
| Gesamtmiete: | 1.994,42 € |
| Kaltmiete (netto): | 1.320,00 € |
| Kaltmiete: | 1.780,00 € |
| Provision: | Gemäß Erstauftraggeberprinzip bezahlt der Abgeber die Provision. |
| Betriebskosten: | 170,00 € |
| MwSt Gesamt: | 214,42 € |
| Wohnfläche: | 48,50 m² |
| Nutzfläche: | 50,00 m² |
| Gesamtfläche: | 57,00 m² |
| Zimmer: | 2 |
| Bäder: | 1 |
| WC: | 1 |
| Balkone: | 2 |
Ausstattung
Estrichboden, Parkett, Fliesen, Fußbodenheizung, Wohnküche / offene Küche, Lastenaufzug, Personenaufzug, Nordbalkon, Badewanne, Wachdienst, DV-Verkabelung, Kabel/Satelliten-TV, Tiefgarage, Gastterrasse, Sauna, Sporteinrichtungen, Swimmingpool, Wasch/Trockenraum
Internet und TV
Information zur Internet und TV Versorgung hier
Ihre persönliche Beratung
Radisa Paunovic
PR-IMMOBILIEN / REAL ESTATE
office@pr-immobilien.at
0664-404-15-47
+43 / 664 - 4041547
