Attraktive 2 Zimmerwohnung mit Balkon in Floridsdorfer Ruhelage
Wohnung
,
1210
Wien
,
Siegfriedgasse
Beschreibung der Immobilie
Attraktive 2 Zimmerwohnung in Floridsdorfer Ruhelage
Im auflebenden 21. Wiener Gemeindebezirk befindet sich diese 2 Zimmerwohnung. Nicht nur die unmittelbare Nähe zur Natur im Allgemeinen, sondern insbesondere die nahegelegene Donau und sehr viele begrünte Flächen machen den Wiener Bezirk Floridsdorf zu einem Wohnerlebnis sondergleichen. Nicht umsonst wird diese Umgebung liebevoll "Trendbezirk des 21. Jahrhunderts" genannt.Trotz der schönen Grünruhelage ist die Innenstadt sehr schnell erreichbar. Diese Tatsache ergibt sich aus der optimalen Infrastruktur und der guten öffentlichen Anbindung.
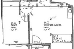
Diese gut aufgeteilte 2- Zimmerwohnung gliedert sich in eine großzügige Wohnküche mit direkten Zugang auf die 5,56 m² große Terrasse, ein getrennt begehbares Schlafzimmer, ein Bad mit Dusche und Waschmaschinenanschluss, sowie eine getrennte Toilette und einen kleinen Vorraum.
Bei den Fotos handelt es sich um Musterfotos!
Ausstattung:
- Holzparkett in den Wohnräumen
- Nassräume sind verfliest
- vollausgestattete Wohnküche
- Terrasse
das Haus bietet:
- Lift
- Kellerabteil
- Fahrrad- und Kinderwagenabstellraum
- Gemeinschaftsgarten
Das Objekt ist nicht barrierefrei.
Öffentliche Verkehrsmittel:
- Buslinie 28A (bringt Sie zur U6 Floridsdorf)
- Buslinie 29A (bringt Sie zur U1 Leopoldau oder Großfeldsiedlung)
- Straßenbahnlinie 25, 26
Kosten für Heizung und Warmwasser werden nach Verbrauch abgerechnet.
Befristung: 5 Jahre, 1 Jahr Kündigungsverzicht, 3 Monate Kündigungsfrist
Nebenkosten:
3 BMM Kaution,Vertragserrichtungsgebühr.
Wir weisen darauf hin, dass zwischen dem Vermittler und dem zu vermittelnden Dritten ein familiäres oder wirtschaftliches Naheverhältnis besteht.
Der Immobilienmakler erklärt, dass er – entgegen dem in der Immobilienwirtschaft üblichen Geschäftsgebrauch des Doppelmaklers – einseitig nur für den Vermieter tätig ist.
Infrastruktur / Entfernungen
Gesundheit
Arzt <500m
Apotheke <500m
Klinik <1.250m
Krankenhaus <1.250m
Kinder & Schulen
Schule <250m
Kindergarten <250m
Universität <750m
Höhere Schule <1.250m
Nahversorgung
Supermarkt <250m
Bäckerei <500m
Einkaufszentrum <750m
Sonstige
Geldautomat <500m
Bank <500m
Post <250m
Polizei <1.000m
Verkehr
Bus <250m
U-Bahn <750m
Straßenbahn <500m
Bahnhof <750m
Autobahnanschluss <1.500m
Angaben Entfernung Luftlinie / Quelle: OpenStreetMap
Eckdaten
| Gesamtmiete: | 929,00 € |
| Fläche: | 56,24 m² |
| Zimmer: | 2 |
Basisdaten zur Immobilie
| Objektnr: | 90817 |
| Art: | Wohnung |
| Land: | Österreich |
| Zustand: | Gepflegt |
| Alter: | Neubau |
| Gesamtmiete: | 929,00 € |
| Kaltmiete (netto): | 718,72 € |
| Kaltmiete: | 844,55 € |
| Provision: | Gemäß Erstauftraggeberprinzip bezahlt der Abgeber die Provision. |
| Betriebskosten: | 125,83 € |
| MwSt Gesamt: | 84,45 € |
| Wohnfläche: | 56,24 m² |
| Zimmer: | 2 |
| Bäder: | 1 |
| WC: | 1 |
| Terrassen: | 1 |
| Keller: | 2,00 m² |
| Heizwärmebedarf: | A 24,90 kWh/m²a |
| fGEE: | 0,70 |
Ausstattung
Parkett, Fliesen, Fernwärme, Fußbodenheizung, Einbauküche, Wohnküche / offene Küche, Personenaufzug, Dusche, Tiefgarage
Internet und TV
Information zur Internet und TV Versorgung hier
Ihre persönliche Beratung
Egon-Adrian Toth, B.A.
EHL Immobilien GmbH
e.toth@ehl.at
+4315127690404
