Provisionsfrei: Die Seele baumeln lassen! Balkonwohnung in wunderschöner und ruhiger Gartenlandschaft
Wohnung
- Etage,
1100
Wien,Favoriten
Lage der Immobilie
Durch die nahegelegene U-Bahn (U1) ist die Innenstadt und der Hauptbahnhof nur einen Katzensprung entfernt. In Richtung Süden warten zahlreiche Grünräume und Naherholungsgebiete, welche in 10 Minuten mit dem Auto zu erreichen sind. Vorhanden ist ebenso eine ausgezeichnete Infrastruktur mit öffentlichen, wie auch privaten Schulen und Kindergärten. Der FH Campus Wien ist nur wenige Minuten mit dem Bus oder Auto entfernt. Zum nächsten Supermarkt kommt man in einer Minute.Beschreibung der Immobilie
Diese architektonisch sehr ansprechende Wohnhausanlage befindet sich in einem eigens von Team Andre`Heller designtem Gartenparadies. Umringt von duftenden Blumen, Palmen, Wäldern, Gewächshäusern und so vielem mehr. Lassen Sie sich überraschen, es gibt hie so viel zu entdecken!
Das Gebäude selbst besticht durch seine stilistische Geradlinigkeit gepaart mit dem Flair der mediterranen Lebensart.
An der Fassade rankt sich üppiges Grün über die insgesamt sieben Geschosse bis zum Dach – auf dem als Abschluss ein Kräutergarten nach Hildegard von Bingen wartet. Leuchtbänder an der Fassade, gemeinsam mit indirekter Beleuchtung an der Unterseite der Balkone, sorgen für magische Lichtstimmungen. Im Aufzug begeistert eine grüne Mooswand hinter Glas. Die Wohnungen verfügen über ein effizientes Heiz- und Temperierungssystem mit Betonkernaktivierung und gelegentlicher Fußbodentemperierung. Es passt sich automatisch den Wetterbedingungen an und wird zentral gesteuert.
Für mehr Information stehen wir sehr gerne zur Verfügung! Die Immobilie kann bereits besichtigt werden.
Wir weisen darauf hin, dass zwischen dem Vermittler und dem zu vermittelnden Dritten ein familiäres oder wirtschaftliches Naheverhältnis besteht.
Der Vermittler ist als Doppelmakler tätig.
Infrastruktur / Entfernungen
Gesundheit
Arzt <500m
Apotheke <500m
Klinik <1.000m
Krankenhaus <2.000m
Kinder & Schulen
Schule <500m
Kindergarten <500m
Universität <500m
Höhere Schule <3.000m
Nahversorgung
Supermarkt <500m
Bäckerei <500m
Einkaufszentrum <2.000m
Sonstige
Geldautomat <500m
Bank <500m
Post <1.000m
Polizei <1.000m
Verkehr
Bus <500m
U-Bahn <1.000m
Straßenbahn <500m
Bahnhof <1.000m
Autobahnanschluss <1.500m
Angaben Entfernung Luftlinie / Quelle: OpenStreetMap
Eckdaten
| Objektnr: | 1939/163981 |
| Art: | Wohnung - Etage |
| Land: | Österreich |
| Baujahr: | 2024 |
| Zustand: | Erstbezug |
| Alter: | Neubau |
| Kaufpreis: | 335.000,00 € |
| Provision: | Provision bezahlt der Abgeber. |
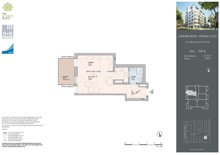
| Wohnfläche: | 37,76 m² |
| Zimmer: | 2 |
| Bäder: | 1 |
| Heizwärmebedarf: | A 19,31 kWh/m²a |
| fGEE: | A+ 0,68 |
Ausstattung
Parkett, Fliesen, Personenaufzug, Kabel/Satelliten-TV, Tiefgarage
Internet und TV
Information zur Internet und TV Versorgung hier
Ihre persönliche Beratung
Tsvetilena Galabinova
IMMOcontract Immobilien Vermittlung GmbH
T.Galabinova@IMMOcontract.at
+43 664 6000 8196
+43 664 6000 8196
F +43 732 890 800 2466
