Uninähe- ruhig und top gelegen
Wohnung
,
4040
Linz
Beschreibung der Immobilie
Eckdaten
| Kaufpreis: | 330.000,00 € |
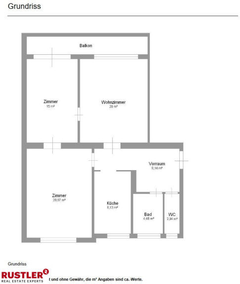
| Fläche: | 87,68 m² |
| Zimmer: | 3 |
Basisdaten zur Immobilie
| Objektnr: | 141/84992 |
| Art: | Wohnung |
| Land: | Österreich |
| Baujahr: | 1961 |
| Kaufpreis: | 330.000,00 € |
| Provision: | 3 % |
| Wohnfläche: | 87,68 m² |
| Zimmer: | 3 |
| Bäder: | 1 |
| WC: | 1 |
| Balkone: | 1 |
| Heizwärmebedarf: | C 66,00 kWh/m²a |
| fGEE: | C 1,41 |
Ausstattung
Personenaufzug
Internet und TV
Information zur Internet und TV Versorgung hier
Ihre persönliche Beratung
Christian Vogel
Rustler Immobilientreuhand
vogel@rustler-ooe.eu
+43 732 908180699
+43 676 834 34 699
