Richard-Wagner-Platz - ca. 26,00m2 Lager im Erdgeschoß zu vermieten
Halle / Lager / Produktion
- Lager,
1160
Wien
Beschreibung der Immobilie
1160 Wien - Richard-Wagner-Platz,
Lager im Erdgeschoß zu vermieten,
der Zugang erfolgt über das Stiegenhaus,
das Lager wird im aktuellen Zustand vermietet,
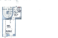
26,31m2 Nutzfläche zzgl. 1 Kellerabteil,
1 Raum, Vorraum,
Bad mit Dusche und WC,
HINWEIS: das Lager verfügt über keinen Strom und keine Heizung,
Mietdauer: 3 Jahre,
Mietbeginn: ab sofort möglich,
BMM: € 199,00 (inkl. BK und 20% UST.)
Nebenkosten bei Anmietung:
Kaution: € 735,00
Vergebührung des Mietvertrages: ca. € 72,00
Provision: 3BMM zzgl. 20% USt.
Errichtungsgebühr für den Mietvertag: € 300,00 (inkl. 20% USt.)
Hinweis gemäß Energieausweisvorlagegesetz: Ein Energieausweis wurde vom Eigentümer bzw. Verkäufer, nach unserer Aufklärung über die generell geltende Vorlagepflicht, sowie Aufforderung zu seiner Erstellung noch nicht vorgelegt. Daher gilt zumindest eine dem Alter und der Art des Gebäudes entsprechende Gesamtenergieeffizienz als vereinbart. Wir übernehmen keinerlei Gewähr oder Haftung für die tatsächliche Energieeffizienz der angebotenen Immobilie.
Infrastruktur / Entfernungen
Gesundheit
Arzt <500m
Apotheke <500m
Klinik <500m
Krankenhaus <1.500m
Kinder & Schulen
Schule <500m
Kindergarten <500m
Universität <1.000m
Höhere Schule <1.000m
Nahversorgung
Supermarkt <500m
Bäckerei <500m
Einkaufszentrum <1.000m
Sonstige
Geldautomat <500m
Bank <500m
Post <500m
Polizei <1.000m
Verkehr
Bus <500m
U-Bahn <1.000m
Straßenbahn <500m
Bahnhof <1.000m
Autobahnanschluss <4.500m
Angaben Entfernung Luftlinie / Quelle: OpenStreetMap
Eckdaten
| Kaltmiete (netto): | 75,87 € |
| Fläche: | 26,31 m² |
| Zimmer: | 1 |
Basisdaten zur Immobilie
| Objektnr: | 6876/1613 |
| Art: | Halle / Lager / Produktion - Lager |
| Land: | Österreich |
| Alter: | Altbau |
| Kaltmiete (netto): | 75,87 € |
| Kaltmiete: | 165,83 € |
| Miete / m²: | 4,00 € |
| Provision: | 3 Bruttomonatsmieten zzgl. 20% USt. |
| Betriebskosten: | 89,96 € |
| MwSt Gesamt: | 33,16 € |
| Wohnfläche: | 26,31 m² |
| Nutzfläche: | 26,31 m² |
| Grundstücksfl.: | 26,31 m² |
| Gesamtfläche: | 26,31 m² |
| Zimmer: | 1 |
| Bäder: | 1 |
| WC: | 1 |
Ausstattung
Fliesen, Parkett, Dusche
Internet und TV
Information zur Internet und TV Versorgung hier
Ihre persönliche Beratung
Michelle Gnadenberger
BRI Immobilienmakler GmbH
mg@brichard.at
+43 676 7043377
