Beschreibung der Immobilie
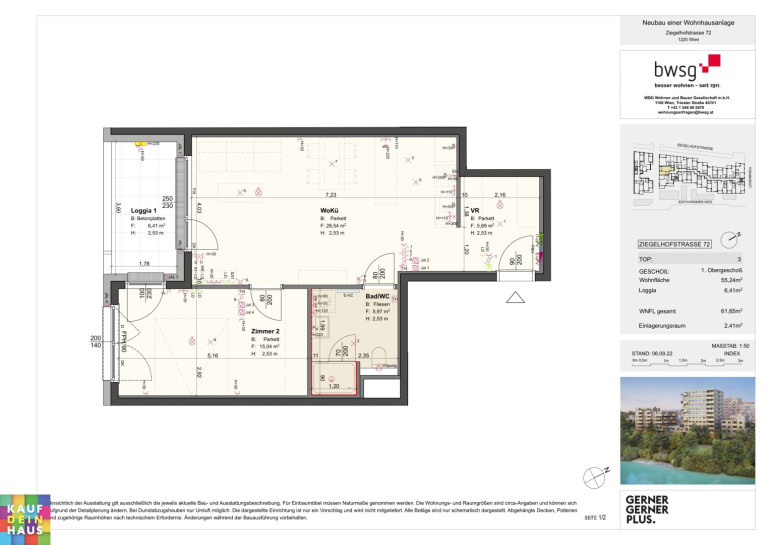
2 ZIMMER MIT LOGGIA! GEGENÜBER BADETEICH!
REINE MIETWOHNUNG - KEIN ANKAUF MÖGLICH!
LOGGIA BEFINDET SEITLICH ZWISCHEN 2 HÄUSERN!
Hinweis gemäß Energieausweisvorlagegesetz: Ein Energieausweis wurde vom Eigentümer bzw. Verkäufer, nach unserer Aufklärung über die generell geltende Vorlagepflicht, sowie Aufforderung zu seiner Erstellung noch nicht vorgelegt. Daher gilt zumindest eine dem Alter und der Art des Gebäudes entsprechende Gesamtenergieeffizienz als vereinbart. Wir übernehmen keinerlei Gewähr oder Haftung für die tatsächliche Energieeffizienz der angebotenen Immobilie.
Der Immobilienmakler erklärt, dass er – entgegen dem in der Immobilienwirtschaft üblichen Geschäftsgebrauch des Doppelmaklers – einseitig nur für den Vermieter tätig ist.
Infrastruktur / Entfernungen
Gesundheit
Arzt <275m
Apotheke <475m
Klinik <800m
Krankenhaus <2.975m
Kinder & Schulen
Schule <375m
Kindergarten <125m
Universität <3.075m
Höhere Schule <3.025m
Nahversorgung
Supermarkt <550m
Bäckerei <450m
Einkaufszentrum <1.450m
Sonstige
Bank <750m
Geldautomat <550m
Post <800m
Polizei <875m
Verkehr
Bus <150m
U-Bahn <1.200m
Straßenbahn <400m
Bahnhof <1.175m
Autobahnanschluss <1.125m
Angaben Entfernung Luftlinie / Quelle: OpenStreetMap
Eckdaten
| Objektnr: | 2999 |
| Art: | Wohnung |
| Land: | Österreich |
| Gesamtmiete: | 878,00 € |
| Kaltmiete (netto): | 878,00 € |
| Kaltmiete: | 878,00 € |
| Provision: | Gemäß Erstauftraggeberprinzip bezahlt der Abgeber die Provision. |
| Wohnfläche: | 55,24 m² |
| Nutzfläche: | 61,65 m² |
| Zimmer: | 2 |
| WC: | 1 |
Ausstattung
Personenaufzug
Internet und TV
Information zur Internet und TV Versorgung hier
Ihre persönliche Beratung
Simone Unger-Ullmann
KDH Immobilien GmbH
simone@kaufdeinhaus.at
+43 660 340 32 29
