NEU! ++ 2 PKW-Garagenplätze ++ Neubau ++ 1130 Wien ++ Komfortable Zufahrt von der Straße ++
1130
Wien
Lage der Immobilie
1130 Wien, HofwiesengasseBeschreibung der Immobilie
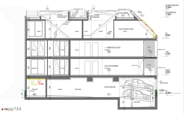
Zum Verkauf gelangen 2 PKW-Garagenplätze in einem Neubau (BJ 2015) in 1130 Wien.
Die Garagenplätze Nr. 2 und Nr. 6 befinden sich im Erdgeschoss eines Neubauhauses in der Hofwiesengasse, sind Stapelparkplätze und verfügen über eine komfortable Zufahrt von der Straße (siehe Fotos).
Der Kaufpreis beträgt EUR 25.000 pro Stellplatz (Eigentum, lastenfrei).
Wir weisen darauf hin, dass zwischen dem Vermittler und dem zu vermittelnden Dritten ein familiäres oder wirtschaftliches Naheverhältnis besteht.
Der Vermittler ist als Doppelmakler tätig.
Eckdaten
| Objektnr: | 28408 |
| Land: | Österreich |
| Baujahr: | 2015 |
| Zustand: | Gepflegt |
| Alter: | Neubau |
| Kaufpreis: | 25.000,00 € |
| Kaufpreis / m²: | auf Anfrage |
| Provision: | 4% des Kaufpreises zzgl. 20% USt. |
| Stellplätze: | 2 |
Ausstattung
Garage, Tiefgarage
Internet und TV
Information zur Internet und TV Versorgung hier
Ihre persönliche Beratung
TRISTAR Immobilien
TRISTAR Immobilien
tristar@tristar.at
+43 676 901 73 74
