Beschreibung der Immobilie
GESCHÄFTSLOKAL an der HIMMELPFORTSTIEGE
In einem Gebäude aus dem Jahr 1901 wird dieses belagsfrertige Geschäftlokal zur Vermietung angeboten
Raumaufteilung:
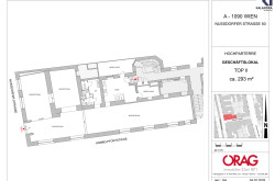
In einem zentral gelegenen Altbau werden ca. 293,04m², ebenerdige Geschäftsflächen unbefristet vermietet.
Die Räumlichkeiten waren zuletzt als Büro-& Verkaufslokal genutzt.
Raumaufteilung:
Die L-förmige Fläche gliedert sich in ein gassenseitiges Großraumbüro, 2 hofseitige Räume mit Küche, weiters gibt es drei WC und eine Dusche.
Das Geschäftslokal ist direkt von der Straße und auch über einen Hauseingang begehbar.
Ausstattung:
- Zweitbezug nach Generalsanierung,
- Gas-Etagenheizung
Angeboten wird ein auf 10 befristetes Mietverhältnis mit dreijährigem, mieterseitigen Kündigungsverzicht.
INFRASTRUKTUR:
Dieses charakteristische Geschäftslokal befindet sich in einem der begehrtesten Viertel des 9. Bezirks von Wien.
Die attraktive Lage zieht nicht nur Einheimische, sondern auch zahlreiche Besucher an, die das charmante Flair der Umgebung schätzen.
Der 9. Bezirk ist bekannt für seine historische Architektur, vielfältige Gastronomie und eine lebendige Kulturszene, die ein dynamisches Umfeld für Geschäftsaktivitäten bietet.
Anbindung an den öffentlichen Verkehr ist das Geschäftslokal mühelos erreichbar.Mehrere Straßenbahn- (1,D, 37, 38, 40, 41, 42), Buslinien (N38, N41, 40A) und U-Bahn (U2, U4) verbinden den Stadtteil mit dem Rest der Stadt und machen es für Kunden einfach, das Geschäft zu besuchen.
Infrastruktur / Entfernungen
Gesundheit
Arzt <500m
Apotheke <500m
Klinik <500m
Krankenhaus <1.000m
Kinder & Schulen
Schule <500m
Kindergarten <500m
Universität <500m
Höhere Schule <500m
Nahversorgung
Supermarkt <500m
Bäckerei <500m
Einkaufszentrum <2.000m
Sonstige
Geldautomat <500m
Bank <500m
Post <500m
Polizei <500m
Verkehr
Bus <500m
U-Bahn <500m
Straßenbahn <500m
Bahnhof <500m
Autobahnanschluss <1.500m
Angaben Entfernung Luftlinie / Quelle: OpenStreetMap
Eckdaten
| Kaltmiete (netto): | 3.662,50 € |
| Fläche: | 293,00 m² |
| Zimmer: | 4 |
Basisdaten zur Immobilie
| Objektnr: | 18572 |
| Art: | Büro / Praxis |
| Land: | Österreich |
| Baujahr: | 1907 |
| Zustand: | Neuwertig |
| Kaltmiete (netto): | 3.662,50 € |
| Kaltmiete: | 4.189,90 € |
| Provision: | 3 Bruttomonatsmieten zzgl. 20% USt. |
| Betriebskosten: | 527,40 € |
| MwSt Gesamt: | 837,98 € |
| Wohnfläche: | 293,00 m² |
| Zimmer: | 4 |
| Bäder: | 1 |
| WC: | 3 |
| Heizwärmebedarf: | D 128,00 kWh/m²a |
Ausstattung
Gas, Etagenheizung, Personenaufzug
Internet und TV
Information zur Internet und TV Versorgung hier
Ihre persönliche Beratung
Mag. Robin Kalandra
robin@kalandra.at
+43-1533326913
+43-69911804004
F +43-1-533-32-69-20

