Hoch hinaus! – Ihr klimatisiertes Büro mit Terrasse
Büro / Praxis
,
1130
Wien,Hietzing
,
Hietzinger Hauptstraße
Beschreibung der Immobilie
Großzügiges, klimatisiertes Dachgeschossbüro in der Hietzinger Hauptstraße
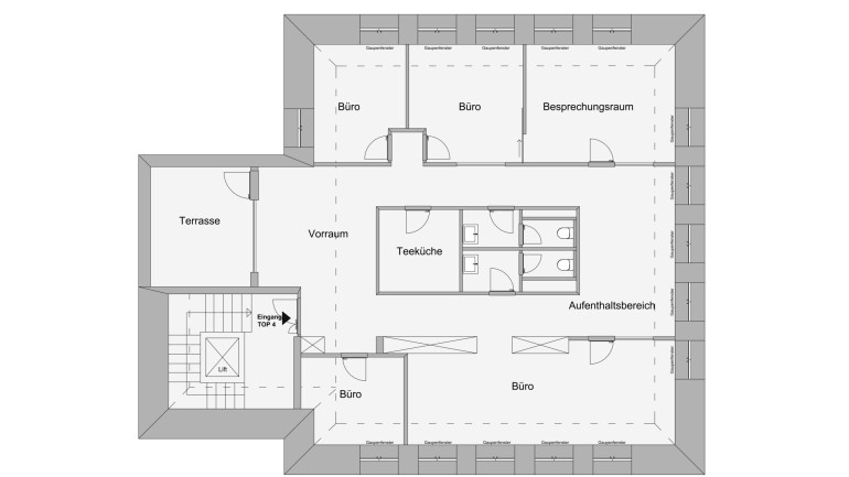
Dieses attraktive Büro befindet sich in einem modernen Gebäude in der begehrten Hietzinger Hauptstraße und bietet auf ca. 183m² ein herausragendes Arbeitsumfeld. Mit einer wunderschönen Terrasse, großzügigen Büroräumen und einer ausgezeichneten Lage eignet sich diese Bürofläche ideal für unterschiedliche Nutzungsmöglichkeiten.
Das Büro umfasst insgesamt 6 helle und gut geschnittene Räume, die sowohl für die Einzelnutzung als auch als Gemeinschaftsbüro flexibel genutzt werden können. Die große Terrasse bietet zusätzlichen Raum für Pausen, Meetings im Freien oder entspannte Stunden.
Mögliche Nutzungsmöglichkeiten:
- Beratung und Coaching: Der Raum eignet sich hervorragend für Unternehmen, die Beratung oder Coaching-Dienstleistungen anbieten und eine ruhige, inspirierende Umgebung benötigen.
- Start-up Unternehmen: Das Büro bietet ausreichend Platz für innovative Start-ups, die sowohl Einzelbüros als auch gemeinschaftlich genutzte Flächen für die Zusammenarbeit benötigen.
- Agenturen und Kreativbranchen: Mit seinem modernen und funktionalen Design ist dieses Büro ideal für Agenturen und Unternehmen aus den Kreativbranchen, die ein inspirierendes Arbeitsumfeld suchen.
- Ärzte und Pharmabranche:
- Bildungseinrichtungen:
Details zur Vermietung:
- Befristung: Der Mietvertrag ist auf 10 Jahre befristet, Kündigungsverzicht des Mieters je nach Investment des Vermieters
- Klimaanlage: Wird vom Eigentümer eingebaut, auch in Absprache mit dem Mieter.
- USt-freie Vermietung: Eine USt-freie Vermietung ist möglich. Ansonsten verstehen sich die angegebenen Preise zzgl. 20% Umsatzsteuer
Parkmöglichkeiten: Ein Stellplatz steht zur Verfügung und kann für 120,00 Euro netto pro Monat angemietet werden.
Dieses Büro bietet einen idealen Arbeitsplatz in einer ruhigen und dennoch zentralen Lage, die sich für eine Vielzahl an Geschäftszwecken hervorragend eignet. Zögern Sie nicht, sich einen Besichtigungstermin zu sichern!
Wir weisen darauf hin, dass zwischen dem Vermittler und dem zu vermittelnden Dritten ein familiäres oder wirtschaftliches Naheverhältnis besteht.
Der Vermittler ist als Doppelmakler tätig.
Infrastruktur / Entfernungen
Gesundheit
Arzt <250m
Apotheke <500m
Klinik <500m
Krankenhaus <1.500m
Kinder & Schulen
Schule <250m
Kindergarten <500m
Universität <1.750m
Höhere Schule <3.250m
Nahversorgung
Supermarkt <500m
Bäckerei <500m
Einkaufszentrum <2.500m
Sonstige
Geldautomat <750m
Bank <750m
Post <500m
Polizei <1.000m
Verkehr
Bus <250m
U-Bahn <500m
Straßenbahn <250m
Bahnhof <500m
Autobahnanschluss <4.000m
Angaben Entfernung Luftlinie / Quelle: OpenStreetMap
Eckdaten
| Objektnr: | 7485/176 |
| Art: | Büro / Praxis |
| Land: | Österreich |
| Alter: | Neubau |
| Kaltmiete (netto): | 2.928,00 € |
| Kaltmiete: | 3.598,00 € |
| Provision: | 12.952,80 € inkl. 20% USt. |
| Betriebskosten: | 670,00 € |
| Nutzfläche: | 183,00 m² |
| Zimmer: | 6 |
| WC: | 2 |
| Terrassen: | 1 |
| Heizwärmebedarf: | C 95,00 kWh/m²a |
Ausstattung
Gas, Etagenheizung, Einbauküche, Personenaufzug, Garage
Internet und TV
Information zur Internet und TV Versorgung hier
Ihre persönliche Beratung
Ing. Raoul-Arthur Billan
Arthur Real GmbH
immobilien@arthur-real.at
+436769604046
