Beschreibung der Immobilie
Liebe Interessentin, lieber Interessent,
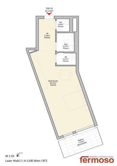
in attraktiver Lage am Laaer Wald 1 im 10. Bezirk erwartet Sie diese moderne 1-Zimmer-Wohnung mit ca. 41,13 m² Wohnfläche und einem Balkon mit ca. 7,21 m². Die Wohnung überzeugt durch eine durchdachte Raumaufteilung, helle Wohnbereiche und eine zeitgemäße Ausstattung – ideal für Singles, Pendler oder als Anlagewohnung.
Raumaufteilung & Flächen
-
Wohnküche: ca. 28,72 m² – großzügiger, offen gestalteter Wohn- und Schlafbereich mit direktem Zugang zum Balkon
-
Vorraum: ca. 5,24 m² – mit Platz für Garderobe
-
Abstellraum: ca. 2,27 m² – praktischer Stauraum
-
Badezimmer: ca. 3,27 m² – modern verfliest
-
Separates WC: ca. 1,63 m²
-
Balkon: ca. 7,21 m² – angenehme Freifläche für entspannte Stunden im Freien
Ausstattung
-
Parkettboden in Wohnküche und Vorraum
-
Verfliesung in Bad, WC und Abstellraum
-
Funktionaler Grundriss mit optimaler Nutzung der Wohnfläche
-
Balkon als zusätzlicher Wohnraum im Freien
Lage
Die Wohnung liegt in unmittelbarer Nähe zum Laaer Wald, einem beliebten Erholungsgebiet mit zahlreichen Freizeitmöglichkeiten. Nahversorgung, öffentliche Verkehrsmittel sowie die Anbindung an die Wiener Innenstadt sind sehr gut. Die Kombination aus ruhiger Grünlage und urbaner Infrastruktur macht diesen Standort besonders attraktiv.
📞 Kontakt:
Dean Banovic
📧 db@fermoso.at
📱 +43 676 926 15 29
Noch nichts gefunden? Wir informieren Sie über geeignete Immobilienangebote noch vor allen anderen.
Legen Sie jetzt Ihren individuellen Suchagenten unter folgendem Link an. Wir schicken Ihnen passende Immobilien exklusiv vorab zu.
Suchagent anlegen - https://fermoso-immobilientreuhand.service.immo/registrieren/de
Wir weisen darauf hin, dass zwischen dem Vermittler und dem zu vermittelnden Dritten ein familiäres oder wirtschaftliches Naheverhältnis besteht.
Der Immobilienmakler erklärt, dass er – entgegen dem in der Immobilienwirtschaft üblichen Geschäftsgebrauch des Doppelmaklers – einseitig nur für den Vermieter tätig ist.
Infrastruktur / Entfernungen
Gesundheit
Arzt <1.000m
Apotheke <500m
Klinik <1.000m
Krankenhaus <3.000m
Kinder & Schulen
Schule <500m
Kindergarten <500m
Universität <1.000m
Höhere Schule <2.500m
Nahversorgung
Supermarkt <500m
Bäckerei <500m
Einkaufszentrum <1.500m
Sonstige
Geldautomat <1.000m
Bank <1.000m
Post <500m
Polizei <1.500m
Verkehr
Bus <500m
U-Bahn <1.500m
Straßenbahn <500m
Bahnhof <1.000m
Autobahnanschluss <500m
Angaben Entfernung Luftlinie / Quelle: OpenStreetMap
Eckdaten
| Objektnr: | 6749 |
| Art: | Wohnung |
| Land: | Österreich |
| Baujahr: | 2021 |
| Zustand: | Neuwertig |
| Alter: | Neubau |
| Gesamtmiete: | 799,00 € |
| Kaltmiete (netto): | 602,97 € |
| Kaltmiete: | 726,36 € |
| Provision: | Gemäß Erstauftraggeberprinzip bezahlt der Abgeber die Provision. |
| Betriebskosten: | 123,39 € |
| MwSt Gesamt: | 72,64 € |
| Wohnfläche: | 44,73 m² |
| Zimmer: | 1 |
| Bäder: | 1 |
| WC: | 1 |
| Balkone: | 1 |
| Heizwärmebedarf: | A 15,50 kWh/m²a |
| fGEE: | A+ 0,65 |
Ausstattung
Fliesen, Parkett, Dusche
Internet und TV
Information zur Internet und TV Versorgung hier
Ihre persönliche Beratung
Dean Banovic
Fermoso Immobilientreuhand GmbH
db@fermoso.at
+43 676 9261 529
+43 676 9261 529
