PROVISIONSFREI -Großzügige Maisonette mit Garten – 162,12 m² Wohnfläche & 5 Zimmer + Wohnküche
Wohnung
- Maisonette,
7100
Neusiedl am See
Beschreibung der Immobilie
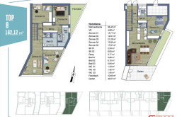
Großzügige Maisonette mit Garten – 162,12 m² Wohnfläche & 5 Zimmer + Wohnküche
Diese außergewöhnlich geschnittene Maisonette-Wohnung bietet auf 162,12 m² ein selten großzügiges Raumangebot – ideal für Familien, Menschen mit Platzbedarf oder Arbeiten von zuhause. Highlight ist die große Wohnküche (ca. 38,45 m²) mit direktem Ausgang in den privaten Garten (ca. 42,67 m²) – perfekt für Frühstück in der Sonne, Grillabende oder entspannte Stunden im Freien.
Auf einen Blick
-
Wohnfläche: 162,12 m²
-
Zimmer: 5 Zimmer + Wohnküche
-
Bäder: 3
-
WCs: 3 (separat)
-
Stauraum: 2 Abstellräume
-
Freifläche: Garten ca. 42,67 m²
-
Zusätzliche Fläche: Flachdach ca. 10,69 m² (laut Plan)
Raumaufteilung & Wohngefühl
Ebene 1 überzeugt mit einer offenen, einladenden Wohnküche als zentralem Treffpunkt. Von hier gelangen Sie direkt in den Garten, der die Wohnung wie ein „verlängertes Wohnzimmer“ ergänzt. Zusätzlich befinden sich auf dieser Ebene ein Vorraum, Abstellraum, WC sowie ein weiteres Zimmer – ideal als Gästezimmer, Homeoffice oder Schlafzimmer.
Ebene 2 bietet maximale Privatsphäre: Hier verteilen sich vier weitere Zimmer, ideal als Kinderzimmer, Master-Bedroom, Büro oder Hobbyraum. Ergänzt wird diese Etage durch zwei weitere Bäder sowie zwei separate WCs – ein echter Komfortfaktor im Alltag.
Besonderheiten
-
Sehr großzügige Wohnküche mit Gartenanbindung
-
Viel Platz durch 2 Ebenen und insgesamt 5 Zimmer + Wohnküche
-
3 Bäder und 3 separate WCs – ideal für Familien
-
Praktische Abstellräume für Ordnung und Stauraum
Finanzierung
Gerne unterstützen wir Sie auch bei der Finanzierung: Gemeinsam mit unseren Finanzierungspartnern prüfen wir passende Möglichkeiten und begleiten Sie von der Erstberatung bis zur Umsetzung – transparent, schnell und unkompliziert.
Kontakt
Dean Banovic
📞 +43 676 926 15 29
✉️ db@fermoso.at
Noch nichts gefunden? Wir informieren Sie über geeignete Immobilienangebote noch vor allen anderen.
Legen Sie jetzt Ihren individuellen Suchagenten unter folgendem Link an. Wir schicken Ihnen passende Immobilien exklusiv vorab zu.
Suchagent anlegen - https://fermoso-immobilientreuhand.service.immo/registrieren/de
Wir weisen darauf hin, dass zwischen dem Vermittler und dem zu vermittelnden Dritten ein familiäres oder wirtschaftliches Naheverhältnis besteht.
Der Vermittler ist als Doppelmakler tätig.
Infrastruktur / Entfernungen
Gesundheit
Arzt <1.500m
Apotheke <2.000m
Kinder & Schulen
Schule <1.000m
Kindergarten <2.000m
Nahversorgung
Supermarkt <1.500m
Bäckerei <2.000m
Einkaufszentrum <4.500m
Sonstige
Bank <1.500m
Geldautomat <1.500m
Post <1.500m
Polizei <5.000m
Verkehr
Bus <500m
Autobahnanschluss <5.000m
Bahnhof <1.500m
Angaben Entfernung Luftlinie / Quelle: OpenStreetMap
Eckdaten
| Kaufpreis: | 1.297.000,00 € |
| Fläche: | 162,12 m² |
| Zimmer: | 5 |
Basisdaten zur Immobilie
| Objektnr: | 6748 |
| Art: | Wohnung - Maisonette |
| Land: | Österreich |
| Baujahr: | 2018 |
| Zustand: | Erstbezug |
| Alter: | Neubau |
| Kaufpreis: | 1.297.000,00 € |
| Wohnfläche: | 162,12 m² |
| Zimmer: | 5 |
| Bäder: | 3 |
| WC: | 3 |
| Terrassen: | 1 |
| Garten: | 42,67 m² |
| Heizwärmebedarf: | B 33,10 kWh/m²a |
| fGEE: | A 0,80 |
Ausstattung
Dusche
Internet und TV
Information zur Internet und TV Versorgung hier
Ihre persönliche Beratung
Dean Banovic
Fermoso Immobilientreuhand GmbH
db@fermoso.at
+43 676 9261 529
+43 676 9261 529
