Behaglicher Familientraum in guter Lage, ihr neues Zuhause zum Wohlfühlen!
Wohnung
- Dachgeschoß,
6060
Hall in Tirol
Lage der Immobilie
Hall in Tirol ist eine charmante mittelalterliche Stadt in der Nähe von Innsbruck, im Herzen der österreichischen Alpen. Mit ihrer gut erhaltenen Altstadt – eine der größten in ganz Tirol – bietet Hall ein einzigartiges historisches Flair. Enge Gassen, bunte Häuser und beeindruckende Bauwerke, wie der Münzerturm oder die Stiftskirche, laden zum Entdecken ein. Für Naturfreunde und Aktive bietet die Umgebung zahlreiche Wanderwege, z. B. im Karwendelgebirge, sowie Radwege entlang des Inns. Im Winter sind Skigebiete wie Glungezer oder Innsbruck schnell erreichbar. Auch ein Spaziergang entlang der historischen Stadtmauer oder ein Besuch am Wochenmarkt machen den Aufenthalt besonders.Beschreibung der Immobilie
Hall in Tirol ist ein echter Geheimtipp für alle, die Kultur, Geschichte und Natur verbinden möchten.
Diese Wohnung ist mehr als nur ein Wohnraum – sie ist ein Zuhause zum Wohlfühlen. Schon beim Betreten dieser besonderen Immobilie spürt man ein harmonische Ambiente, das Wärme, Geborgenheit und Lebensqualität ausstrahlt.
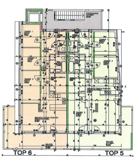
In familienfreundlicher Lage von Hall in Tirol, befindet sich diese lichtdurchflutete 4,5-Zimmer-Wohnung im 2. Obergeschoss einer gepflegten kleinen Wohnanlage. Die Immobilie ist bequem mit dem Lift erreichbar und bietet ein ideales Zuhause für Familien, die Wert auf Komfort, Helligkeit und Wohnqualität legen.
Die Wohnung erstreckt sich über großzügige 97m² Wohnfläche, die durchdachte Raumaufteilung bietet optimalen Komfort für Familien oder anspruchsvolle Paare, die viel Platz schätzen.
Raumaufteilung
- Kombinierter Wohn- Kochbereich.
- Kaminanschluss vorhanden.
- Zugang zur großen süd-östlich ausgerichteten Terrasse – perfekt für entspannte Sonnenstunden und gesellige Abende.
- Esszimmer mit Zugang zur Terrasse.
- Voll ausgestattetes Badezimmer mit Badewanne, Dusche und WC.
- Separates Gäste-WC.
- Geräumiger Eingangsbereich mit viel Platz für Garderobe und Stauraum.
- Drei Schlafzimmer plus zusätzlicher 1/2 Raum – ideal für Büro, Spielzimmer oder begehbarer Kleiderschrank.
Zusätzliche Highlights:
- Kellerabteil mit eigener kleiner Werkstatt – ideal für Hobbys oder zusätzlichen Stauraum.
- Ein Carport-Abstellplatz – witterungsgeschützt.
- Ein weiterer Freistellplatz im Freien.
- Gepflegte, ruhige Wohnanlage mit wenigen Einheiten, angenehme Nachbarschaft.
Diese Immobilie strahlt Lebensqualität und Behaglichkeit aus – ideal für Familien, Paare mit Platzbedarf oder Menschen, die ein gemütliches Zuhause in einer guten Lage suchen.
Wichtiger Hinweis
Wir weisen darauf hin, dass wir gemäß unserer Nachweispflicht gegenüber dem Auftraggeber nur Anfragen mit vollständiger Angabe Ihrer persönlichen Daten, Vor- und Nachname, Telefonnummer und E-Mailadresse bearbeiten können.
Rechtlicher Hinweis
Dieses freibleibende Angebot wird Ihnen von der clever & smart immo gmbh, welche als Makler tätig ist, überreicht. Alle Angaben erfolgen aufgrund der Informationen und Unterlagen, welche uns vom Eigentümer oder/und von Dritten übermittelt wurden, und sind ohne Gewähr.
Der Vermittler ist als Doppelmakler tätig.
Infrastruktur / Entfernungen
Gesundheit
Arzt <500m
Apotheke <500m
Klinik <1.000m
Krankenhaus <1.000m
Kinder & Schulen
Schule <500m
Kindergarten <500m
Universität <500m
Höhere Schule <7.000m
Nahversorgung
Supermarkt <500m
Bäckerei <500m
Einkaufszentrum <5.500m
Sonstige
Bank <500m
Geldautomat <500m
Post <1.000m
Polizei <1.500m
Verkehr
Bus <500m
Straßenbahn <5.000m
Autobahnanschluss <1.000m
Bahnhof <2.000m
Angaben Entfernung Luftlinie / Quelle: OpenStreetMap
Eckdaten
| Objektnr: | 7002/150 |
| Art: | Wohnung - Dachgeschoß |
| Land: | Österreich |
| Baujahr: | 2011 |
| Zustand: | Neuwertig |
| Alter: | Neubau |
| Kaufpreis: | 635.000,00 € |
| Betriebskosten: | 517,20 € |
| Wohnfläche: | 97,00 m² |
| Zimmer: | 4,50 |
| Bäder: | 1 |
| WC: | 2 |
| Terrassen: | 1 |
| Stellplätze: | 2 |
| Heizwärmebedarf: | C 44,20 kWh/m²a |
| fGEE: | C 1,08 |
Internet und TV
Information zur Internet und TV Versorgung hier
Ihre persönliche Beratung
Claudia Sax-Mayr
clever & smart immo gmbh
contact@csi.solutions
+43 512 239119 0
+43 664 5101569
F +43 512 239119 23
