2-Zimmer-Wohnung mit Balkon und Dachterrasse
Wohnung
- Dachgeschoß,
1220
Wien
Lage der Immobilie
U1 Kagraner Platz ca. 800m entfernt, mit 22A, 24A oder Straßenbahn 26 in ca. 6-7min. erreichbar sämtliche Geschäfte des täglichen Bedarfs in der Umgebung Gewerbepark Stadlau mit der Straßenbahn 26 in ca. 6-7min. erreichbar Gewerbepark Kagran mit dem Autobus 24A in ca. 6-7min. erreichbar sehr gute Anbindung ans Radverkehrsnetz Donauzentrum / Kagran Blumengärten Hirschstetten Hirschstettner BadeteichBeschreibung der Immobilie
Zur Vermietung (befristet auf 5 Jahre) gelangt diese sehr schöne 2-Zimmer-Wohnung mit Balkon im 2. Dachgeschoß und dazugehöriger Dachterrasse eines 2020 erbauten Gebäudes.
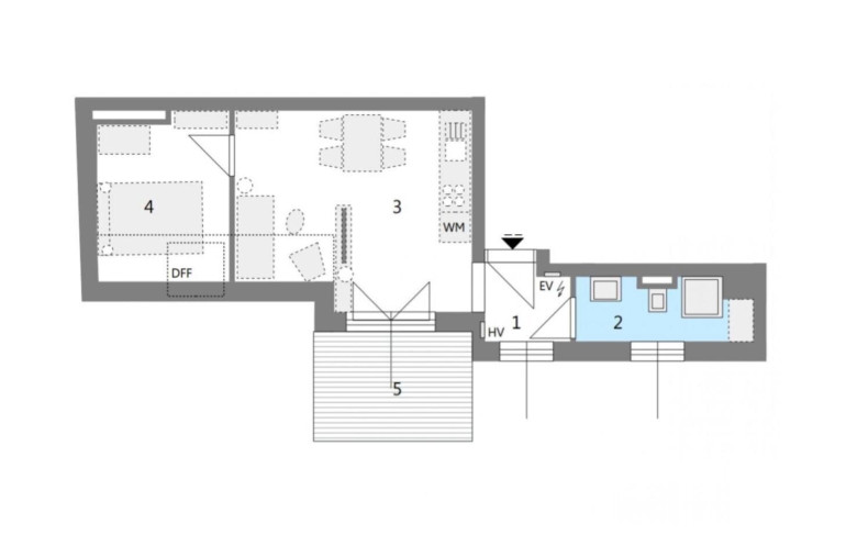
Rundgang:
Aus dem Vorraum gelangen Sie in die rechterhand in die Wohnküche mit Ausgang auf den Balkon.
Diese bietet genügend Platz für einen Sitzbereich.
Aus der Wohnküche kommen Sie in das Schlafzimmer.
Das Bad mit Dusche und WC kann man direkt aus dem Vorraum betreten.
Über das Stiegenhaus gelangen Sie auch noch auf die Dachterrasse, die einen tollen Ausblick bietet.
Die Highlights auf einen Blick:
- Balkon ca. 7 m²
- Dachterrasse ca. 12 m²
- Klimaanlage vorhanden
- Neubau 2020
- sehr gute öffentliche Anbindung (U1 Kagraner Platz, Straßenbahnlinie 26, Autobuslinien 22A, 24A)
Heiz- und Warmwasserkosten
Mit der monatlichen Miete wird auch noch ein Heizkostenakonto in Höhe von EUR 30,42 und ein Warwasserakonto von EUR 6,44 vorgeschrieben.
Die Miete inkl. Heizkosten-Akonto beträgt EUR 780,-.
Wir weisen darauf hin, dass zwischen dem Vermittler und dem zu vermittelnden Dritten ein familiäres oder wirtschaftliches Naheverhältnis besteht.
Der Immobilienmakler erklärt, dass er – entgegen dem in der Immobilienwirtschaft üblichen Geschäftsgebrauch des Doppelmaklers – einseitig nur für den Vermieter tätig ist.
Infrastruktur / Entfernungen
Gesundheit
Arzt <500m
Apotheke <500m
Klinik <2.000m
Krankenhaus <3.500m
Kinder & Schulen
Schule <500m
Kindergarten <500m
Universität <2.000m
Höhere Schule <1.000m
Nahversorgung
Supermarkt <500m
Bäckerei <1.000m
Einkaufszentrum <1.000m
Sonstige
Geldautomat <1.000m
Bank <1.000m
Post <1.000m
Polizei <1.500m
Verkehr
Bus <500m
U-Bahn <1.000m
Straßenbahn <500m
Bahnhof <1.000m
Autobahnanschluss <1.000m
Angaben Entfernung Luftlinie / Quelle: OpenStreetMap
Eckdaten
| Objektnr: | 1619/8130 |
| Art: | Wohnung - Dachgeschoß |
| Land: | Österreich |
| Baujahr: | 2020 |
| Zustand: | Neuwertig |
| Gesamtmiete: | 743,14 € |
| Kaltmiete (netto): | 648,76 € |
| Kaltmiete: | 734,56 € |
| Provision: | Gemäß Erstauftraggeberprinzip bezahlt der Abgeber die Provision. |
| Betriebskosten: | 85,80 € |
| MwSt Gesamt: | 8,58 € |
| Wohnfläche: | 35,00 m² |
| Zimmer: | 2 |
| Bäder: | 1 |
| WC: | 1 |
| Balkone: | 1 |
| Terrassen: | 1 |
| Heizwärmebedarf: | A 17,63 kWh/m²a |
Ausstattung
Gas, Zentralheizung, Personenaufzug
Internet und TV
Information zur Internet und TV Versorgung hier
Ihre persönliche Beratung
Alice Prat (Team Hubert Koller)
RE/MAX Real Experts Immobilien lifetime GmbH
a.prat@remax-real-experts.at
+43 1 470 25 00
+43 664 851 58 71
