Moderne Doppelhaushälfte in Steinabrückl mit Kaufoption
Haus
- Doppelhaushälfte,
2751
Steinabrückl
,
Leopold Lehnerstraße
Beschreibung der Immobilie
Zum Projekt
In wunderschöner, absoluter Ruhelage wurden in der Leopold Lehnerstraße, in 2751 Steinabrückl 12 hochwertige Doppelhaushälften in ökologischer Ziegelmassiv-Bauweise errichtet. Alle Häuser verfügen über ein Erdgeschoss sowie ein Obergeschoss. Die Wohnnutzflächen betragen je nach Haushälfte ca. 112 m² bzw. 132 m². Dadurch wird in Summe eine Nutzfläche von ca. 1.710 m² neu geschaffen.
Die Grundstücke wurden über eine neu geschaffene Zufahrtstraße nordöstlich der öffentlichen Leopold Lehnerstraße erschlossen. Jedem Doppelhaus sind nördlich zwei Carports mit je zwei KFZ Abstellplätzen, sowieeine Müllsammelstelle zugeordnet und jede Doppelhaushälfte verfügt über einen großzügigen Eigengarten mit ca. 180 m². In jedem Garten wurde zudem ein praktischer Geräteschuppen mit ca. 3 m² Fläche errichtet.
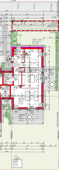
Im Erdgeschoss befindet sich der Wohnraum mit Küche, einem WC, einem Vorraum und einem Hauswirtschaftsraum samt Technikeinheit für die Luftwärmepumpe, die für die Wärmebereitstellung einer Wohneinheit dient. Im Obergeschoss befinden sich die Schlafzimmer und das Badezimmer. Den Bewohnern der größeren Doppelhaushälfte steht zusätzlich eine private Terrasse im Obergeschoss zur Verfügung. Einem der nach Südosten ausgerichteten Schlafzimmer ist zusätzlich noch ein Balkon zugeordnet. Außerdem wurden alle Häuser mit zwei Terrassen versehen. Durch die Ausrichtung nach Südosten können hier laue Sommerabende optimal ausgenützt werden.
Ausstattung
Die Häuser werden mit langlebigen Kunststoff-Alu-Fenstern und einer massiven Alu-Haustüre ausgestattet. Elektrische Rollläden helfen Ihnen nicht nur ungewünschten Lichteinfall zu verhindern, sondern auch dabei, das Raumklima an heißen Tagen oder kalten Nächten auf einem angenehmen Niveau zu halten. Eine moderne, effiziente Luftwärmepumpe sorgt dabei für wohlige Wärme.
Die Häuser sind schlüsselfertig, mit hochwertigem Eichenparkett/Fliesen und vollausgestattetem Badzu erhalten.
Lage
Wöllersdorf-Steinabrückl, am Auslauf des Piestingtals, ist eine Marktgemeinde im Bezirk Wiener Neustadt-Land in Niederösterreich mit ca 4.210 Einwohner. Steinabrückl liegt im Industrieviertel in Niederösterreich. Die Fläche der Marktgemeinde umfasst 14,46 Quadratkilometer, ca. 43,2 Prozent der Fläche sind bewaldet. Die Gemeindegebiet besteht aus den Katastralgemeinden Steinabrückl und Wöllersdorf.
Die Liegenschaft befindet sich in der Leopold Lehnerstraße in einer guten Wohngegend. Nach Wiener Neustadt fährt man mit dem Auto weniger als 5 Minuten, ebenso wie zur Autobahn. Nach Wien sind es ca. 30 Minuten.
In näherer Umgebung befinden sich nicht nur wunderbare Rad- und Wanderwege, sondern auch ein Kräuter- und Bienenlehrpfad und das über die Grenzen hinaus bekannte Waldbad in der Nachbarortschaft Markt Piesting. Für Sportliche gibt es Tennisplätze oder einen Beachvolleyballplatz und Kulturinteressierte kommen im Festsaal der Gemeinde auf Ihre Kosten. Ob Bälle, Theateraufführungen, Kabarettvorstellungen oder Konzerte - hier ist sicher für jeden etwas dabei.
Volksschule und Kindergarten befinden sich im Ort. Im nahen Wiener Neustadt, welches Ihre Kinder bequem mit Bahn oder Bus erreichen, gibt es darüber hinaus sämtliche Bildungseinrichtungen und Schulen bis hin zur Fachhochschule.
Ebenso erreichen Sie alle Einkaufsmöglichkeiten (Lebensmittel, Apotheke, Drogerie, etc.) in weniger als 5 Minuten. Direkt bei der Autobahnauffahrt/-abfahrt befinden sich zudem eine Billa- und Pennyfiliale und in 10-15 Minuten erreichen Sie Hornbach, Bauhaus, den Fischapark Wiener Neustadt und vieles mehr.
In kurzer Gehweite gibt es eine Haltestelle für Lokalbusse. Der Bahnhof Felixdorf ist mit dem Bus in nur wenigen Minuten zu erreichen. Der Bahnhof Wiener Neustadt ist ebenso zügig mit dem Bus erreichbar.
Übergabe
Ab sofort möglich!
Wir weisen darauf hin, dass zwischen dem Vermittler und dem zu vermittelnden Dritten ein familiäres oder wirtschaftliches Naheverhältnis besteht.
Der Immobilienmakler erklärt, dass er – entgegen dem in der Immobilienwirtschaft üblichen Geschäftsgebrauch des Doppelmaklers – einseitig nur für den Vermieter tätig ist.
Infrastruktur / Entfernungen
Gesundheit
Arzt <2.250m
Apotheke <2.250m
Krankenhaus <7.000m
Klinik <8.000m
Kinder & Schulen
Schule <1.750m
Kindergarten <1.500m
Höhere Schule <7.500m
Universität <4.500m
Nahversorgung
Supermarkt <1.500m
Bäckerei <2.250m
Einkaufszentrum <6.000m
Sonstige
Bank <2.000m
Geldautomat <2.000m
Post <2.750m
Polizei <3.500m
Verkehr
Bus <250m
Bahnhof <2.500m
Autobahnanschluss <3.000m
Flughafen <3.750m
Angaben Entfernung Luftlinie / Quelle: OpenStreetMap
Eckdaten
| Gesamtmiete: | 2.240,00 € |
| Fläche: | 132,13 m² |
| Zimmer: | 4 |
Basisdaten zur Immobilie
| Objektnr: | 25846 |
| Art: | Haus - Doppelhaushälfte |
| Land: | Österreich |
| Baujahr: | 2021 |
| Zustand: | Erstbezug |
| Alter: | Neubau |
| Gesamtmiete: | 2.240,00 € |
| Kaltmiete (netto): | 1.926,36 € |
| Kaltmiete: | 2.036,36 € |
| Provision: | Gemäß Erstauftraggeberprinzip bezahlt der Abgeber die Provision. |
| Betriebskosten: | 110,00 € |
| MwSt Gesamt: | 203,64 € |
| Wohnfläche: | 132,13 m² |
| Zimmer: | 4 |
| Bäder: | 1 |
| WC: | 2 |
| Balkone: | 1 |
| Terrassen: | 3 |
| Stellplätze: | 2 |
| Heizwärmebedarf: | B 38,00 kWh/m²a |
| fGEE: | A+ 0,70 |
Ausstattung
Parkettboden, Fußbodenheizung, Südbalkon, Dusche, Bad mit Fenster, Badewanne, Kabel/Satelliten-TV, Carport
Internet und TV
Information zur Internet und TV Versorgung hier
Ihre persönliche Beratung
Eszter Virasztó
WERTIMMOBILIEN Consulting KG
Eszter.Viraszto@wertimmobilien.co.at
+43 676 8 50 60 8 703
