TRAUMHAFTE AUSSICHT mit unverbaubarer FERNSICHT - SÜD-WESTHANG - mit ALTBESTAND - GERINGE SANIERUNGSARBEITEN!!!
Haus
- Einfamilienhaus,
2123
Hautzendorf
Beschreibung der Immobilie
Zum Haus
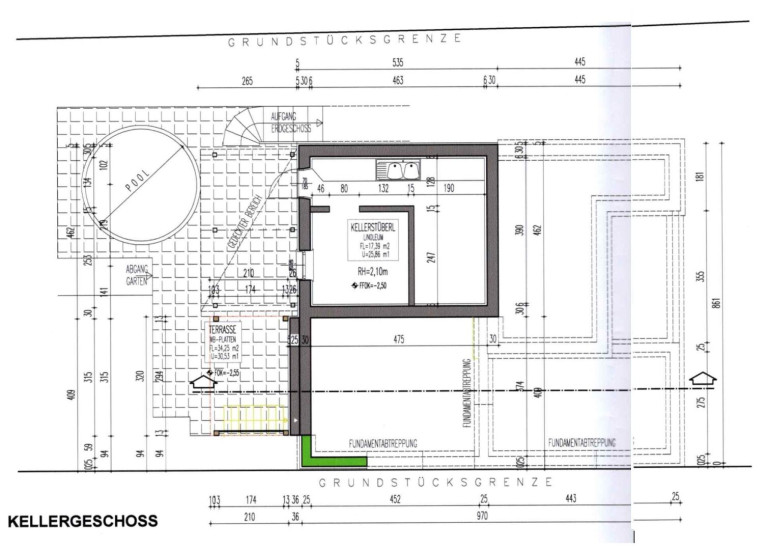
Das Einfamilienhaus liegt am Ortsrand von Hautzendorf, auf einernach Westen ausgerichteten Anhöhe und im Grünland mit besonderer Bebauungsbestimmung. Im Untergeschossbereich befinden sich die Terrasse und der runde Pool, so wie ein Raum mit Küche und Schlafbereich. Das Haus hat 5 Zimmer (eines im Untergeschoss). Der Eigengrund ist ca. 658,00 m². Die Nutzfläche des Hauses beträgt ca. 92,97 m². Die Fenster und die Eingangstüre sind aus PVC und einbruchshemmend ausgeführt.
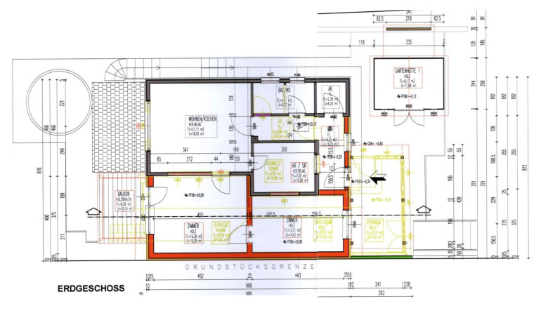
Im Küchen- und Essbereich ist ein Pelletsofen aufgestellt. Im Erdgeschoss befinden sich drei Zimmer. ImGangbereichist einAbstellkammerl, mit Waschmaschinenanschluss und das Badezimmer untergebracht.Das Badezimmer ist mit einer Badewanne mit Duschmöglichkeit, einem Waschbecken und einem WC, ausgestattet. Am Boden des Badezimmers und an den Wänden wurden Fliesen verlegt. Die Bodenbeläge im Wohnbereich und in den Zimmern sind aus Laminat. Im Küchenbereich ist der Fußboden ausFliesen.
Für die Erwärmung des Hauses sorgt ein Pelletsofen, der im Küchen- und Essbereich steht. In den Zimmern wurden teilweise Elektropaneele als Zusatzheizung montiert. Im oberen Gartenbereich befindet sich ein Gartenhaus und auch eines im unteren Gartenbereich. Der nach Westen ausgerichtete Balkon hat eine Größe von ca. 6,26 m², Die Terrasse hat eine Größe von ca. 34,25 m². Die Gartengröße beträgt ca. 550,00 m².
Garage, oder Carport können am Grundstück noch errichtet werden!
Die Gemeinde möchte in der nächsten Zeit die Bebauungsbestimmungen ändern, so dass das Haus vergrößert werden kann.
Anschlüsse
Folgende Anschlüsse sind gegeben: Kanal, Wasser, Strom, SAT ist möglich.
Lage
Hautzendorf ist die östlichste der vier Ortschaften im Kreuttal. Der Ort liegt eingebettet zwischen dem Kahlberg und dem Kreutberg auf einer Seehöhe von 207 m. Mit 703 Einwohnern ist Hautzendorf die zweitgrößte Katastralgemeinde im Kreuttal. Der Ort selbst ist gekennzeichnet durch besonders viel Grün in den Parkanlagen und den Gärten.
Verkehrsanbindung
Der Bahnhof Hautzendorf befindet sich entlang der Laaer Ostbahn Strecke im Weinviertel im Bezirk Mistelbach in der Gemeinde Kreuttal. In der verglasten Wartekoje der 2018 renovierten, modern gestalteten Haltestelle wurde ein Ticketautomat für den Fahrkartenkauf installiert. Dank des Anzeigenmonitors vor Ort werden Reisende immer bestens über den aktuellen Bahnbetrieb informiert.
Für eine bequeme Anbindung an die Bahn sorgen Autoabstellplätze sowie ein modern gestaltetes Bike & Ride Anlage direkt am Bahnsteig.
Streckenanbindung
- Es halten Züge der Wiener Schnellbahnlinie S7 über Mistelbach in Richtung Laa an der Thaya sowie zum Bahnhof am Flughafen Wien.
- Ebenso werden Züge der Wiener Schnellbahnlinie S2 bis Mistelbach und Mödling bedient.
- Anschlussbusse nach Mistelbach und Wolkersdorf sind aufgrund der Bushaltestelle direkt am Bahnhof gegeben.
Infrastruktur
Daneben gibt es als öffentliche Einrichtungen das Gemeindeamt (mit Poststelle), den Kindergarten, das Gemeinde-, Musik- und Jugendzentrum sowie ein Gasthaus und einen Nahversorger und einen Heurigen. Besonders erwähnenswert: Auch ein Zahnarzt hat in Hautzendorf seine Praxis.
Die hügelige Landschaft rund um Hautzendorf ist besonders geprägt von Weingärten und Ackerbauflächen. Hauptsächlich werden Raps, Mais, Gerste, Weizen, Roggen und Sonnenblumen angebaut. Aber auch der Weinbau ist in Hautzendorf eine relevante landwirtschaftliche Größe. Hautzendorf (wie auch Unterolberndorf) gehört zur Weinbaugroßlage "Wolkersdorfer Hochleithen".
Bedingt durch den Weinbau gibt es in Hautzendorf auch eine Kellergasse. Die besonders romantische Kellergasse liegt in einem Hohlweg, welcher von Richtung Hornsburg kommt. Etliche der Keller sind noch aus Stein gemauert. Durch die Kellergasse führen auch Wander- und Radwege.
Übergabe
Die Übergabe erfolgt nach Kaufvertragsunterfertigung
Wir weisen darauf hin, dass zwischen dem Vermittler und dem zu vermittelnden Dritten ein familiäres oder wirtschaftliches Naheverhältnis besteht.
Der Vermittler ist als Doppelmakler tätig.
Infrastruktur / Entfernungen
Gesundheit
Arzt <1.500m
Apotheke <7.500m
Klinik <8.000m
Kinder & Schulen
Schule <2.500m
Kindergarten <3.000m
Nahversorgung
Supermarkt <3.500m
Bäckerei <4.000m
Sonstige
Bank <2.500m
Geldautomat <2.500m
Post <3.500m
Polizei <7.500m
Verkehr
Bus <500m
Bahnhof <500m
Autobahnanschluss <5.000m
Angaben Entfernung Luftlinie / Quelle: OpenStreetMap
Eckdaten
| Kaufpreis: | 328.998,00 € |
| Fläche: | 92,97 m² |
| Zimmer: | 3,50 |
Basisdaten zur Immobilie
| Objektnr: | 25370 |
| Art: | Haus - Einfamilienhaus |
| Land: | Österreich |
| Baujahr: | 1970 |
| Zustand: | Teil_vollrenovierungsbed |
| Möbliert: | Voll |
| Alter: | Neubau |
| Kaufpreis: | 328.998,00 € |
| Provision: | 3% des Kaufpreises zzgl. 20% USt. |
| Betriebskosten: | 81,82 € |
| MwSt Gesamt: | 8,18 € |
| Wohnfläche: | 92,97 m² |
| Nutzfläche: | 161,27 m² |
| Grundstücksfl.: | 658,00 m² |
| Zimmer: | 3,50 |
| Bäder: | 1 |
| WC: | 1 |
| Balkone: | 1 |
| Terrassen: | 1 |
| Stellplätze: | 2 |
| Garten: | 550,00 m² |
| Keller: | 17,39 m² |
| Heizwärmebedarf: | D 115,20 kWh/m²a |
| fGEE: | C 1,53 |
Ausstattung
Laminatboden, Fliesen, Elektro, Heizofen, Wohnküche / offene Küche, Westbalkon, Bad mit Fenster, Badewanne, Parkplatz, Swimmingpool
Internet und TV
Information zur Internet und TV Versorgung hier
Ihre persönliche Beratung
Michael Fath
WERTIMMOBILIEN Consulting KG
michael.fath@wertimmobilien.co.at
+43 (676) 850 608 391
