Beschreibung der Immobilie
Liebe Interessentin, lieber Interessent,
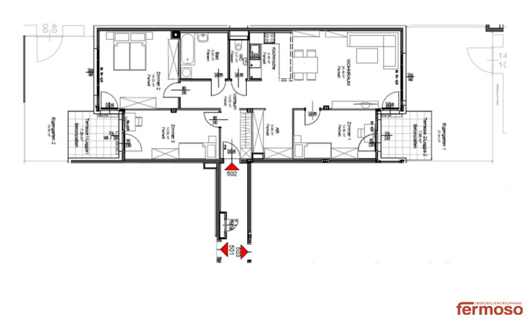
diese außergewöhnliche 4-Zimmer-Wohnung im Erdgeschoss bietet mit rund 115,97 m² Wohnfläche ein großzügiges Raumkonzept für Familien oder anspruchsvolle Paare mit Platzbedarf. Besonders hervorzuheben sind die beeindruckenden Außenflächen mit insgesamt ca. 61,96 m², bestehend aus zwei Gärten und zwei Terrassen – hier genießen Sie Wohnqualität auf hohem Niveau.
🏡 Raumaufteilung
-
Großzügiger Wohn- und Essbereich mit integrierter Küche
-
Drei separat begehbare Zimmer – ideal als Schlaf-, Kinder- oder Arbeitszimmer
-
Badezimmer mit moderner Ausstattung
-
Separates WC
-
Praktischer Abstellraum
-
Zentraler Vorraum mit optimaler Erschließung
🌿 Außenflächen
-
Zwei Terrassen
-
Zwei Gartenflächen
-
Insgesamt ca. 61,96 m² private Freifläche
✨ Ausstattung
-
Neubau
-
Fußbodenheizung (Fernwärme)
-
Einbauküche inklusive Geräte
-
Kellerabteil
-
Durchdachte Grundrissgestaltung
-
Befristung: 5 Jahre
Diese Wohnung vereint großzügiges Wohnen, moderne Ausstattung und private Freiflächen, die besonders in der Stadt einen hohen Mehrwert bieten.
📞 Kontakt:
Dean Banovic
📧 db@fermoso.at
📱 +43 676 926 15 29
Noch nichts gefunden? Wir informieren Sie über geeignete Immobilienangebote noch vor allen anderen.
Legen Sie jetzt Ihren individuellen Suchagenten unter folgendem Link an. Wir schicken Ihnen passende Immobilien exklusiv vorab zu.
Suchagent anlegen - https://fermoso-immobilientreuhand.service.immo/registrieren/de
Wir weisen darauf hin, dass zwischen dem Vermittler und dem zu vermittelnden Dritten ein familiäres oder wirtschaftliches Naheverhältnis besteht.
Der Immobilienmakler erklärt, dass er – entgegen dem in der Immobilienwirtschaft üblichen Geschäftsgebrauch des Doppelmaklers – einseitig nur für den Vermieter tätig ist.
Infrastruktur / Entfernungen
Gesundheit
Arzt <500m
Apotheke <1.500m
Klinik <2.000m
Krankenhaus <2.000m
Kinder & Schulen
Schule <1.000m
Kindergarten <500m
Universität <1.000m
Höhere Schule <2.000m
Nahversorgung
Supermarkt <500m
Bäckerei <500m
Einkaufszentrum <2.000m
Sonstige
Geldautomat <1.500m
Bank <2.000m
Post <1.000m
Polizei <1.500m
Verkehr
Bus <500m
U-Bahn <2.000m
Straßenbahn <1.500m
Bahnhof <1.500m
Autobahnanschluss <2.500m
Angaben Entfernung Luftlinie / Quelle: OpenStreetMap
Eckdaten
| Gesamtmiete: | 2.149,00 € |
| Fläche: | 115,97 m² |
| Zimmer: | 4 |
Basisdaten zur Immobilie
| Objektnr: | 6759 |
| Art: | Wohnung |
| Land: | Österreich |
| Zustand: | Gepflegt |
| Alter: | Neubau |
| Gesamtmiete: | 2.149,00 € |
| Kaltmiete (netto): | 1.568,81 € |
| Kaltmiete: | 1.861,93 € |
| Provision: | Gemäß Erstauftraggeberprinzip bezahlt der Abgeber die Provision. |
| Betriebskosten: | 293,12 € |
| Heizkosten: | 84,07 € |
| MwSt Gesamt: | 203,00 € |
| Nutzfläche: | 115,97 m² |
| Zimmer: | 4 |
| Bäder: | 1 |
| WC: | 1 |
| Terrassen: | 2 |
| Garten: | 47,19 m² |
| Heizwärmebedarf: | B 33,20 kWh/m²a |
| fGEE: | A 0,78 |
Ausstattung
Fliesen, Parkett
Internet und TV
Information zur Internet und TV Versorgung hier
Ihre persönliche Beratung
Dean Banovic
Fermoso Immobilientreuhand GmbH
db@fermoso.at
+43 676 9261 529
+43 676 9261 529
