Modernes Wohnen mit flexiblem Altbestand-Vielseitige Liegenschaft in zentraler Lage von Teufenbach
Haus
,
8833
Teufenbach
Beschreibung der Immobilie
Lage:Die Liegenschaft befindet sich in zentraler Lage von Teufenbach, einem regional attraktiven Wirtschaftsstandort mit guter Verkehrsanbindung und hoher Wohnqualität. Durch die Zentrumsnähe sind sämtliche infrastrukturellen Einrichtungen des täglichen Bedarfs bequem erreichbar. Die direkte Anbindung an die Gemeindestraße sorgt für eine ausgezeichnete Erreichbarkeit.
Objektbeschreibung
Das Haus gliedert sich in zwei Einheiten:
- eine modernisierte Wohneinheit in sehr gepflegtem, sofort bezugsfähigem Zustand
- einen Altbestand mit flexiblen Nutzungs- und Ausbaumöglichkeiten.
Die bewohnbare Einheit wurde 2015 umfassend umgebaut und modernisiert. Beheizt wird die gesamte Liegenschaft über eine moderne Hackschnitzelheizung.
Moderne Wohneinheit
Durch den Um- und Zubau sowie die Modernisierung präsentiert sich diese Einheit in einem weitgehend hochwertigen und zeitgemäßen Zustand. Beide Wohnebenen sind mit Fußbodenheizung ausgestattet. Sie bieten einen top gepflegten und sofort bezugsfähigen Zustand.
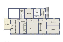
Erdgeschoss
- Großzügiger Vorraum mit Platz für Garderobe, praktisch nutzbarer Stauraum unter der Stiege mit stilvoll integrierte Steinmauer als architektonisches Highlight
- Zimmer in sehr gutem Zustand, ausgestattet mit Rollläden
- Modernes Badezimmer mit:
- großem Waschtisch
- Badewanne
- Walk-In-Dusche
- Sprossenheizkörper
- Separates WC
Obergeschoss
Der Koch- und Essbereich bildet das Herzstück der Wohneinheit:
- Großzügige Raumgestaltung (30m²)
- Hochwertige Küche
- Große Fensterflächen für helle, freundliche Wohnatmosphäre
- Direkter Zugang zur großzügigen, überdachten Terrasse, die den Wohnraum ideal erweitert und aufwertet
- Praktische Speisekammer bzw. Hauswirtschaftsraum
- 2 Zimmer:
- Ein Zimmer mit gut erhaltener Holzdecke im gemütlichen Landhausstil
- Ein weiteres Zimmer in L-Form, über wenige Stufen erreichbar, mit begehbarem Schrank
Nutzfläche moderner Teil: ca. 131,60 m²
Altbestand : Der Altbestand erstreckt sich ebenfalls über zwei Ebenen und befindet sich in einem altersgemäßen, generalsanierungsbedürftigen Zustand. Dieser Bereich eröffnet zahlreiche Nutzungsmöglichkeiten. Die bauliche Struktur erlaubt sowohl eine gemeinsame als auch getrennte Nutzung der beiden Einheiten.
Mögliche Verwendung (Beispiele):
- Zweite Wohneinheit (Zweifamilien- oder Generationenhaus)
- Büro- oder Praxisräume
- Werk- oder Lagerflächen, Atelier
- Mischnutzungen – z.B. Kombination aus Wohnen und Arbeiten
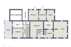
Erdgeschoss
- Vorraum
- Küche mit Gewölbe und urigem Holzofen
- Großer offen Wohnbereich mit ca. 33 m², ebenerdig und dreiseitig belichtet, zwei Kachelöfen, großes Gestaltungspotenzial
- Zimmer mit Zugang zu den Heizräumen sowohl von innen als auch von außen
- WC und Abstellraum
- Separater von außen zugänglicher Lagerraum
Obergeschoss
- Flur
- 3 Zimmer
- Altes Badezimmer
- Separate Toilette
Nutzfläche Altbestand: ca. 143,20 m²
| Moderner Teil | Altbestand | Nebenflächen | |||
| Erdgeschoss | Erdgeschoss | ||||
| Zimmer 1 | 13,60 m² | Vorraum | 12,40 m² | Hackschnitzellager | 19,05 m² |
| Bad | 11,20 m² | Wohnen | 33,00 m² | Heizraum 1 | 11,50 m² |
| WC | 2,70 m² | Küche | 8,50 m² | Heizraum 2 | 14,50 m² |
| Vorraum | 11,60 m² | Essen | 11,00 m² | Lager | 20,00 m² |
| WC | 1,70 m² | Carport I | 18,99 m² | ||
| Speis / AR | 1,50 m² | Carport II | 25,00 m² | ||
| Nutzfläche | 39,10 m² | 68,10 m² | |||
| Obergeschoss | Obergeschoss | ||||
| Kochen Essen | 30,00 m² | Vorraum | 21,00 m² | ||
| Zimmer 2 | 20,00 m² | Zimmer 1 | 15,00 m² | ||
| Zimmer 3 | 14,50 m² | Zimmer 2 | 21,00 m² | ||
| Vorraum | 20,20 m² | Zimmer 3 | 7,00 m² | ||
| WC | 1,60 m² | VR/WC/Bad | 1,60 m² | ||
| Speis / WR | 6,20 m² | Bad | 8,00 m² | ||
| WC | 1,50 m² | ||||
| Nutzfläche | 92,50 m² | 75,10 m² | |||
| Gesamtnutzfläche | 131,60 m² | 143,20 m² | |||
| Terrasse | 17,00 m² | ||||
Der Außenbereich : Diese Liegenschaft bietet mit einer Grundfläche von 1.304m² auch einen ansehnlichen Außenbereich. Zur Gemeindestraße ist ein befestigter Parkbereich für 2 Fahrzeuge vorhanden. Mit dem gleich anschließenden überdachten Parkplatz unter der Terrasse haben hier bereits 3 Fahrzeuge gut Platz.
An der Ost- und Südseite verfügt man über eine großzügige Grünfläche mit Obstbaum, die viel Gestaltungsmöglichkeit bietet. Aufgrund der ebenen Grundstückskonstellation ist die Fläche auch entsprechend pflegeleicht. Das zweite Carport als auch eine Lagerhütte befinden sich an der östlichen Grundstücksgrenze und bietet weitere Kapazitäten.
Erneuerungen & Investitionen
- 2010: Einbau Hackschnitzelheizung
- 2015: Um- und Zubau / Modernisierung eines Hausanteils
- 2017: Erneuerung der Fassade (Altbestand)
- 2017/2018: Errichtung Terrasse und Carport I
- 2022: Errichtung Carport II
- 2023: Umgestaltung des Gartens inkl. neuer Humusierung
Fazit:
Diese Immobilie vereint sofort nutzbaren modernen Wohnkomfort mit einem flexiblen Altbestand und bietet damit eine seltene Kombination aus Wohnqualität, Entwicklungspotenzial und vielseitigen Nutzungsmöglichkeiten – ideal für Familien, Mehrgenerationenwohnen, Wohnen & Arbeiten oder Investoren.
Die Liegenschaft kann sofort übernommen werden.Nutzen Sie die Gelegenheit und vereinbaren Sie noch heute einen Besichtigungstermin!
Hier geht`s zum 360° Rundgang: https://app.immoviewer.com/portal/tour/3141505?accessKey=694d
Infrastruktur / Entfernungen
Gesundheit
Arzt <1.000m
Apotheke <5.000m
Kinder & Schulen
Schule <500m
Kindergarten <3.000m
Nahversorgung
Supermarkt <500m
Bäckerei <5.000m
Sonstige
Bank <500m
Geldautomat <500m
Post <500m
Polizei <4.500m
Verkehr
Bus <500m
Bahnhof <500m
Autobahnanschluss <9.000m
Angaben Entfernung Luftlinie / Quelle: OpenStreetMap
Eckdaten
| Kaufpreis: | 360.000,00 € |
| Fläche: | 274,80 m² |
Basisdaten zur Immobilie
| Objektnr: | 961/35926 |
| Art: | Haus |
| Land: | Österreich |
| Kaufpreis: | 360.000,00 € |
| Provision: | 3% des Kaufpreises zzgl. 20% USt. |
| Nutzfläche: | 274,80 m² |
| Grundstücksfl.: | 1.304,00 m² |
| Bäder: | 1 |
| WC: | 2 |
| Terrassen: | 1 |
| Stellplätze: | 1 |
| Heizwärmebedarf: | F 207,00 kWh/m²a |
| fGEE: | D 2,30 |
Ausstattung
Fliesen, Laminatboden, Parkett, Einbauküche, Bad mit Fenster, Badewanne, Dusche
Internet und TV
Information zur Internet und TV Versorgung hier
Ihre persönliche Beratung
Stefan Petzl
Real-Service für steirische Sparkassen Realitätenvermittlungs-Ges.m.b.H.
stefan.petzl@sreal.at
+43 5 0100 - 26435
+43 664 8388995
Real-Service für steirische Sparkassen Realitätenvermittlungs-Ges.m.b.H.
Sparkassenplatz 4, 8010 Graz
+43 (0)5 0100 - 26400