NEUBAUWOHNUNG MIT 2 BALKONE
Wohnung
,
1230
Wien
Lage der Immobilie
- Ruhige Wohngegend mit guter Infrastruktur und vielen Grünflächen - U-Bahnstaion sowie Baadner Bahn zu Fuss in wenigen Minuten erreichbar - Knoten Vösendorf (A2, A21, S1) sowie Südost Tangente (A23) in wenigen Fahrminuten erreichbar - Vielfältige Einkaufsmöglichkeiten, Restaurants und Schulen - Verschiedene Freizeit- und Sportmöglichkeiten in der Umgebung (z.B. Golfplatz, Fitnessstudio, Schwimmbad)Beschreibung der Immobilie
Zum Verkauf gelangen 16 topmoderne, schlüsselfertige Wohnungen mit Außenflächen (Garten, Balkon, Terrassen) sowie 1 Gechäftslokal und 9 Tiefgaragen-Stellplätze.
Die ideal aufgeteilten 1 bis 4 Zimmer Wohnungen können auch als Anlegerwohnungen zum Nettopreis (auf Anfrage) erworben werden.
Ausgestattet mit moderner und hochwertiger Technik sowie zeitlosem Design bieten sie außergewöhnlichen Wohnkomfort.
Die Wohnungen sind vorraussichtlich ab dem 4. Quartal 2024 bezugsfertig.
Highlights:
- Ziegelmassiv Bauweise
- Dämmung für niedrigen Heizbedarf
- Luft-Wasser-Wärmepumpe mit PV-Unterstützung für optimalen Energieverbrauch
- Dielen-Parkettboden
- Fussbodenheizung
- 3-Fach Isolierverglasung Fenster inkl. UV-Schutz
- Vorbereitung für Kimaanlagen (Split-Geräte) in den Wohnungen
- E-Ladestation für jeden Garagenplatz
- Abstellraum für Kinderwagen/Fahrrad
- Lift
- Keller
Sollten Sie an diesem Objekt Interesse haben und einen Besichtigungstermin wünschen oder sonstige Fragen haben, so ersuchen wir Sie, sich mit uns in Verbindung zu setzen.
Top 12: 85m² Dachgeschoss + Terrasse
Top 13: 115m² Dachgeschoss + Terrasse
Top 15: 68m² Stadthaus + Garten + Dachterrasse
Top 16: 52m² Stadthaus + Garten
Top 17: 43m² Stadthaus + Garten
Top 18: 88m² Stadthaus + Dachterrasse
Der Verkaufspreis für Anleger beträgt 431.800€ netto.
Infrastruktur / Entfernungen
Gesundheit
Arzt <500m
Apotheke <500m
Klinik <2.000m
Krankenhaus <2.000m
Kinder & Schulen
Schule <1.000m
Kindergarten <500m
Universität <5.000m
Höhere Schule <4.500m
Nahversorgung
Supermarkt <500m
Bäckerei <1.500m
Einkaufszentrum <1.000m
Sonstige
Geldautomat <500m
Bank <1.500m
Post <1.500m
Polizei <1.500m
Verkehr
Bus <500m
U-Bahn <1.000m
Straßenbahn <3.000m
Bahnhof <500m
Autobahnanschluss <1.000m
Angaben Entfernung Luftlinie / Quelle: OpenStreetMap
Eckdaten
| Objektnr: | 56153 |
| Art: | Wohnung |
| Land: | Österreich |
| Baujahr: | 2024 |
| Alter: | Neubau |
| Kaufpreis: | 530.816,00 € |
| Kaufpreis / m²: | auf Anfrage |
| Provision: | 3% des Kaufpreises zzgl. 20% USt. |
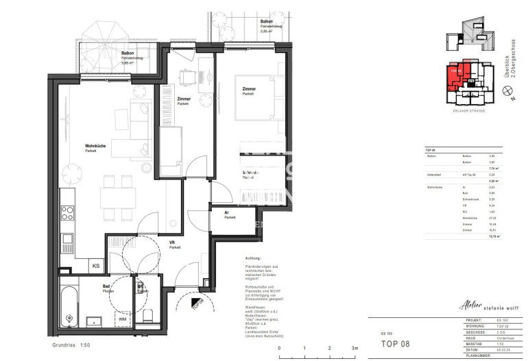
| Wohnfläche: | 70,93 m² |
| Zimmer: | 3,50 |
| Balkone: | 2 |
| Heizwärmebedarf: | B 36,40 kWh/m²a |
| fGEE: | A+ 0,68 |
Internet und TV
Information zur Internet und TV Versorgung hier
Ihre persönliche Beratung
Maruf Saltaji
Real Immo Wien Immobilientreuhand - Inh. Gerald Frank
m.saltaji@realimmo.wien
+43 15120488
+43 66499524938
