Penthousewohnung über den Dächern von Schladming
Wohnung
- Maisonette,
8970
Schladming
Beschreibung der Immobilie
Penthousewohnung über den Dächern von Schladming!
Auf der sonnigen Seite von Schladming, mit traumhaftem Ausblick auf den Zielhang der Planai und die Hochwurzen, befindet sich dieses exklusive Penthouse in absoluter Bestlage. Dank der optimalen Ausrichtung genießt man hier ganztägig Sonne und ein beeindruckendes Bergpanorama.
Die Wohnung liegt im obersten Geschoss eines im Jahr 2021 errichteten, modernen Mehrparteienhauses – unmittelbar gegenüber dem Planai-Zielhang.
Eine Bushaltestelle des öffentlichen Verkehrs sowie des Skibusses befindet sich direkt vor dem Gebäude. Das Ortszentrum von Schladming ist bequem in etwa zehn Gehminuten erreichbar.
Im Kaufpreis enthalten sind zwei Stellplätze in der hauseigenen Tiefgarage sowie ein geräumiges Kellerabteil .
Besondere Ausstattungsmerkmale:
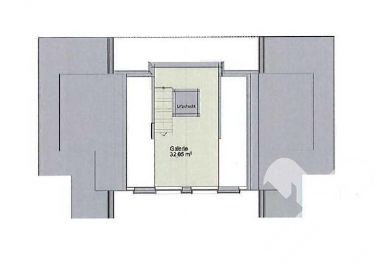
Von der Tiefgarage aus gelangt man mit einem Lift, der über ein Schlüsselsystem gesichert ist, direkt in den Vorraum der Wohnung. Auch die Galerieebene ist von hier aus zugänglich.
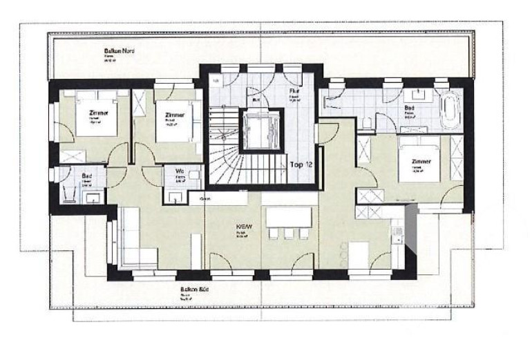
Der offen gestaltete Wohn- und Essbereich überzeugt mit moderner Einbauküche samt Markengeräten, einem großen Essplatz sowie einem stilvollen Kaminofen, der für eine behagliche Atmosphäre sorgt.
Zwei weitere Schlafzimmer, jeweils mit angeschlossenem Bad und WC, komplettieren dieses außergewöhnliche Wohnangebot.
Die Wohnnutzfläche beträgt rund 150 m² und die Wohnung wird vollständig möbliert übergeben.
Haben wir Ihr Interesse geweckt?
Für weitere Fragen oder zur Vereinbarung eines Besichtigungstermines steht Ihnen der zuständige Makler Klaus Schrottshammer m +43 664 62 75 730 oder unter klaus.schrottshammer@rlbstmk.at sehr gerne zur Verfügung.
Eckdaten
| Objektnr: | 0005004950 |
| Art: | Wohnung - Maisonette |
| Land: | Österreich |
| Baujahr: | 2021 |
| Kaufpreis: | 1.200.000,00 € |
| Provision: | 3% des Kaufpreises plus 20% USt. |
| Wohnfläche: | 150,00 m² |
| Zimmer: | 4 |
| Bäder: | 2 |
| WC: | 2 |
| Balkone: | 2 |
| Heizwärmebedarf: | B 50,00 kWh/m²a |
| fGEE: | A 0,73 |
Ausstattung
Fernwärme, Fußbodenheizung
Internet und TV
Information zur Internet und TV Versorgung hier
Ihre persönliche Beratung
Klaus Schrottshammer
Raiffeisen Steiermark
klaus.schrottshammer@rlbstmk.at
22751
+43 664 62 75 730
