Einfamilienhaus in Moosburg - Versteigerung 04.03.2026
Haus
- Einfamilienhaus,
9062
Moosburg
Beschreibung der Immobilie
Hochwertiges Blockhaus mit Wellnessbereich und
Doppelgarage
geringstes Gebot: EUR 281.000,00
Besichtigungen am 03.03.2026 - unter Terminvereinbarung - sichern Sie sich gleich Ihren Termin!
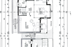
Dieses stilvolle Wohnhaus in massiver Blockbalkenbauweise überzeugt durch hochwertige Materialien, moderne Technik und eine durchdachte Raumaufteilung. Der Zugang erfolgt über eine Außentreppe mit Natursteinbelag.
Im Erdgeschoss erwartet Sie ein großzügiger, offen gestalteter Wohn-, Ess- und Küchenbereich mit Galerie und teilweise offenem
Sichtdach bis zum First. Ein gemauerter Kaminofen von Haas & Sohn sorgt für behagliche Atmosphäre. Die moderne Einbauküche mit Geräten von Beko ist funktional und stilvoll ausgestattet. Von hier aus gelangen Sie auf die Terrasse aus Bangkirai-Holz mit elektrisch verschließbarem, überdachtem Bereich.
Das Dachgeschoss bietet drei Zimmer sowie zwei hochwertig
ausgestattete Badezimmer mit Dusche bzw. Badewanne. Massive Rundholz-Elemente und holzverkleidete Dachschrägen schaffen ein warmes Wohnambiente.
Das separate Nebengebäude ergänzt die Liegenschaft um einen
exklusiven Wellnessbereich mit Wintergarten, zwei Duschen, großzügiger Sauna mit Ofen von Harvia sowie Anschlüssen für ein Jacuzzi. Eine geräumige Doppelgarage mit elektrischem sektionaltor und Starkstromanschluss ist ebenfalls vorhanden.
Eine besondere Immobilie für anspruchsvolle Eigennutzer oder
als hochwertiges Feriendomizil.
Eckdaten
| Objektnr: | 0015001143 |
| Art: | Haus - Einfamilienhaus |
| Land: | Österreich |
| Baujahr: | 2006 |
| Kaufpreis: | 281.000,00 € |
| Provision: | 3% des Kaufpreises plus 20% USt. |
| Nutzfläche: | 167,00 m² |
| Grundstücksfl.: | 929,00 m² |
| Gesamtfläche: | 167,00 m² |
| Zimmer: | 6 |
| Bäder: | 3 |
| WC: | 4 |
| Terrassen: | 1 |
Ausstattung
Elektro, Fußbodenheizung, Heizofen
Internet und TV
Information zur Internet und TV Versorgung hier
Ihre persönliche Beratung
Mag. Kerstin Rauter
Raiffeisen Kärnten
kerstin.rauter@rbmk.at
+4357743100
+4366488453108
