360° TOUR // CHARMANTE ALTBAUWOHNUNG am SCHOTTENTOR
Wohnung
,
1010
Wien
Beschreibung der Immobilie
SCHÖNE INNENSTADT-STILWOHUNG
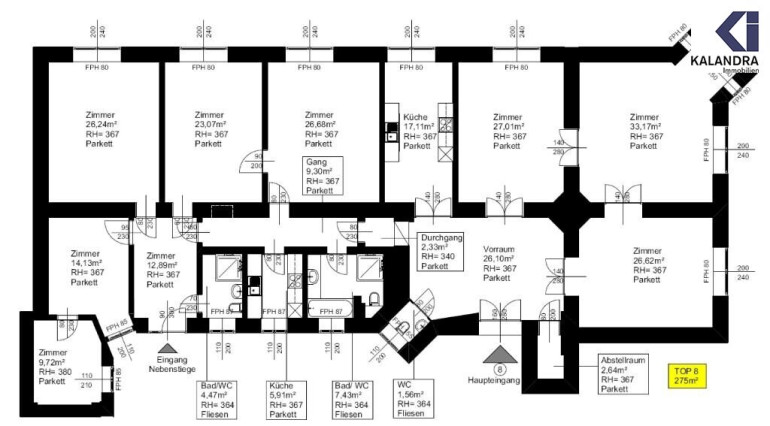
Diese klassische Altbauwohnung im 2.Liftstock eines repräsentativen Gebäudes nahe Schottentor ist eine Zusammenlegeung aus ehemals 2 Wohnungen, verfügt daher über 2 Eingänge und 2 Küchen und bietet folgende
Raumaufteilung:
- großes Vorzimmer (ca. 30m² inkl. zentralem Flur),
- straßenseitiges Eck-Wohnzimmer (ca. 34m²) mit Erker,
- zugänglich über das Eßzimmer (ca. 26m²)
- ein weiterer Wohnsalon (ca. 24m²) anschließend
- ein Schlafzimmer (ca. 16m²), sowie ein
- kleineres Schlafzimmer (ca. 13m² mit begehbarer Garerobe)
- ein Wannen-& Duschbad (ca. 8m²) sowie ein separates Gäste-WC
- die Küche (ca. 10m²)
- über die begehbare Garderobe gelangt man in
- 2 weitere Zimmer in einer Flucht (ca. 21m² & 26m²) über den 2.Vorraum in
- ein Wannenbad sowie separates WC sowie in
- ein weiteres Zimmer (ca. 13m²) und ein Kabinett (ca. 9m²)
Ausstattung:
- renovierter Stern-Parkettboden in den Wohnsalons & Schlafzimmern,
- beide Badezimmer mit weiß/ grauer Verfliesung
- die Küche ist mit einer Einbauküche mit weißen Hochglanz-Fronten und Einbaugeräten ausgestattet
- Kabel-/ Satelliten-TV
- Gas-Etagenheizung
Angeboten wird ein auf 5 Jahre befristetes Mietrverhältnis mit einjährigem, mieterseitigen Kündigungsverzicht.
360° Tour:
https://360.kalandra.at/view/portal/id/VV1H0
------------------------------------------------
Der Immobilienmakler erklärt, dass er – entgegen dem in der Immobilienwirtschaft üblichen Geschäftsgebrauch des Doppelmaklers – einseitig nur für den Vermieter tätig ist.
Infrastruktur / Entfernungen
Gesundheit
Arzt <500m
Apotheke <500m
Klinik <500m
Krankenhaus <1.500m
Kinder & Schulen
Schule <500m
Kindergarten <1.000m
Universität <500m
Höhere Schule <500m
Nahversorgung
Supermarkt <500m
Bäckerei <500m
Einkaufszentrum <1.500m
Sonstige
Geldautomat <500m
Bank <500m
Post <500m
Polizei <500m
Verkehr
Bus <500m
U-Bahn <500m
Straßenbahn <500m
Bahnhof <500m
Autobahnanschluss <3.000m
Angaben Entfernung Luftlinie / Quelle: OpenStreetMap
Eckdaten
| Gesamtmiete: | 5.158,92 € |
| Fläche: | 262,00 m² |
| Zimmer: | 8 |
Basisdaten zur Immobilie
| Objektnr: | 15360 |
| Art: | Wohnung |
| Land: | Österreich |
| Baujahr: | 1900 |
| Zustand: | Erstbezug |
| Gesamtmiete: | 5.158,92 € |
| Kaltmiete (netto): | 4.193,31 € |
| Kaltmiete: | 4.685,21 € |
| Provision: | Gemäß Erstauftraggeberprinzip bezahlt der Abgeber die Provision. |
| Betriebskosten: | 443,80 € |
| MwSt Gesamt: | 473,71 € |
| Wohnfläche: | 262,00 m² |
| Zimmer: | 8 |
| Bäder: | 2 |
| WC: | 3 |
Ausstattung
Gas, Etagenheizung, Personenaufzug
Internet und TV
Information zur Internet und TV Versorgung hier
Ihre persönliche Beratung
Mag. Robin Kalandra
robin@kalandra.at
+43-1533326913
+43-69911804004
F +43-1-533-32-69-20

