Lage der Immobilie
In unmittelbarer Umgebung finden sich zahlreiche Einkaufsmöglichkeiten, Apotheken, Supermärkte sowie eine Auswahl an Cafés und gastronomischen Betrieben. Der tägliche Bedarf lässt sich bequem zu Fuß erledigen. Die öffentliche Verkehrsanbindung ist ausgezeichnet: Eine Straßenbahnlinie mit direkter Anbindung zum Wiener Hauptbahnhof befindet sich in kurzer Gehentfernung. Der 5. Bezirk, welcher bereits durch die Linie U4 bedient wird, freut sich auf eine neue, voraussichtlich in den nächsten Jahren fertiggestellte Stationen. In Zukunft kommt die U2 in den 5. Bezirk mit neuen Stationen, wie einer Station in der Reinprechtsdorfer Straße. Zur Erholung und Freizeit bieten sich Zahlreiche Möglichkeiten in unmittelbarer Nähe. Der beliebte Naschmarkt, sowie der Bruno-Keinsky-Park sind unweit der Wohnung gelegen. Darüber hinaus lädt der nahegelegene Wien-Fluss-Radweg zu ausgedehnten Spaziergängen, Joggingrunden oder Radtouren entlang des Wassers ein. Die Wohnung befindet sich in einer Seitengasse, die Terrasse ist hofseitig gelegen , und verbindet dadurch ruhiges Wohnen mit urbanen Komfort und hohen Freizeitwert. Der 5. Bezirk zählt zu einer gefragten Wohngegend des innerstädtischen Bereichs.Beschreibung der Immobilie
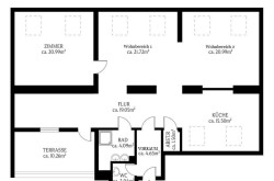
Bereits beim Betreten stellt man fest, wie nahtlos und durchdacht Vorzimmer, Küche, sowie der Wohn-, Essbereich ineinander übergehen. Die hohe Raumhöhe und die schrägen Fenster unterstreichen das helle und luftige Ambiente.
Die Küche ist grundsätzlich offen in den Wohnbereich integriert, dennoch auf smarte Weise optisch vom Wohnbereich teilweise getrennt, und bietet ausreichend Platz für Kochen, Essen und geselliges Beisammensein. Der Wohnbereich, in weiterer Folge der großzügige Flur, öffnet sich zur sonnigen und ruhigen Terrasse mit ca. 10 m². Ein idealer Platz für entspannte Stunden im Freien. Ein perfekter Ort ein Frühstück im Freien zu genießen, oder einen lauen Sommerabend ausklingen zu lassen.
Das Schlafzimmer ist als eigen begehbarer Raum ausgeführt und bietet somit einen separaten sowie ruhigen Rückzugsort.
Das Badezimmer, ausgestattet mit Dusche und 2 Waschbecken, ist stilvoll gestaltet. Ein separate Toilette ergänzt das durchdachte Raumkonzept.
Der Lift mit Schlüsselfunktion bietet einen direkten Zugang in das 4.Obergeschoß. Das Stiegenhaus wurde unlängst saniert und präsentiert sich in einem sehr gepflegten, ansprechenden Zustand. 2024 wurden neue, dreifach verglaste Fenster verbaut, mit Ausnahme der Küche, die über funktionale Fenster verfügt. Hochwertige Parkettböden verleihen den Räumen Wohnkomfort.
Die Kombination aus offenem Grundriss, Terrasse und offenen Ambiente macht diese Wohnung zu einer seltenen Gelegenheit für Liebhaber von loftartigem und extravagantem Wohnen mit urbanem Flair.
Betriebskosten, Liftbetriebskosten, Umsatzsteuer und Rücklage belaufen sich derzeit gesamt auf EUR 397,67.
Infrastruktur / Entfernungen
Gesundheit
Arzt <500m
Apotheke <500m
Klinik <500m
Krankenhaus <1.000m
Kinder & Schulen
Schule <500m
Kindergarten <500m
Universität <1.000m
Höhere Schule <1.000m
Nahversorgung
Supermarkt <500m
Bäckerei <500m
Einkaufszentrum <1.500m
Sonstige
Geldautomat <500m
Bank <500m
Post <500m
Polizei <1.000m
Verkehr
Bus <500m
U-Bahn <500m
Straßenbahn <500m
Bahnhof <500m
Autobahnanschluss <4.000m
Angaben Entfernung Luftlinie / Quelle: OpenStreetMap
Eckdaten
| Kaufpreis: | 680.000,00 € |
| Fläche: | 110,00 m² |
| Zimmer: | 2 |
Basisdaten zur Immobilie
| Objektnr: | 1748/159 |
| Art: | Wohnung - Dachgeschoß |
| Land: | Österreich |
| Baujahr: | 1991 |
| Zustand: | Gepflegt |
| Kaufpreis: | 680.000,00 € |
| Provision: | 3.0 % zzgl. gesetzl. MwSt. |
| Wohnfläche: | 110,00 m² |
| Zimmer: | 2 |
| Bäder: | 1 |
| Terrassen: | 1 |
| Heizwärmebedarf: | 89,00 kWh/m²a |
| fGEE: | 1,87 |
Ausstattung
Fliesen, Parkett, Gas, Einbauküche, Personenaufzug
Internet und TV
Information zur Internet und TV Versorgung hier
Ihre persönliche Beratung
Engel & Völkers Wien MMC
EUV Immobilien GmbH
Wien@engelvoelkers.com
