NEU! • ERSTBEZUG • EXKLUSIVE 3–4 ZIMMER-WOHNUNGEN • BALKON/TERRASSE • KLIMAANLAGE • TOP-AUSSTATTUNG • 1050 WIEN
Wohnung
,
1050
Wien
Lage der Immobilie
SIEBENBRUNNENPLATZBeschreibung der Immobilie
PROJEKT:
Auf einem wunderschönen Altbau unweit des Siebenbrunnenplatzes entstehen aktuell drei neu errichtete Stockwerke (4.–6. Stock), die jeweils zwei großzügige Wohnungen mit hochwertiger, schlüsselfertiger Ausstattung bieten. Im Zuge der Aufstockung wird das Gebäude umfassend modernisiert (Aufzug, Stiegenhaus, Fassade, Balkone, Keller) und technisch sowie optisch auf einen zeitgemäßen Standard gebracht.
Im 4. Stock und im 1. Dachgeschoss entstehen großzügige 4-Zimmer-Wohnungen mit Balkonen, im 2. Dachgeschoss 3-Zimmer-Wohnungen mit Terrassen.
Ebenso wurde jeder Wohnung ein Kellerabteil mit einer Größe von etwa 3 bis 4 m² zugeordnet.
Planmäßige Fertigstellung / geplanter Bezug: bis 01.05.2026.
LAGE:
Die Lage überzeugt durch eine ideale Kombination aus urbanem Flair, hervorragender Nahversorgung, zahlreichen Grünflächen und charmanten Lokalen, ergänzt durch eine exzellente Anbindung an den öffentlichen Verkehr. Ein umfangreiches Lageexposé (50 Seiten) steht nach Eingang Ihrer Anfrage zum Download zur Verfügung.
-----------------------------------
VERFÜGBARE WOHNUNGEN:
-----------------------------------
4. STOCK:
• Top 14 – 4 Zimmer | ca. 86,50 m² WNFL + Balkon ca. 8 m² | Kaufpreis: EUR 599.000 - Schlüsselfertig!
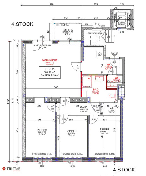
• Top 15 – 4 Zimmer | ca. 91,66 m² WNFL + Balkon ca. 4,18 m² | Kaufpreis: EUR 680.000 - Schlüsselfertig!
-----------------------------------
STOCK (DG 1):
• DG 16 – 4 Zimmer | ca. 90 m² WNFL + Balkon ca. 7 m² | Kaufpreis: EUR 599.000 - Schlüsselfertig!
• DG 17 – 4 Zimmer | ca. 93 m² WNFL + Balkon ca. 4 m² | Kaufpreis: EUR 599.000 - Schlüsselfertig!
-----------------------------------
STOCK (DG 2):
• DG 18 – 3 Zimmer | ca. 68,30 m² WNFL + Terrasse ca. 3,12 m² | Kaufpreis: EUR 499.000 - Schlüsselfertig!
• DG 19 – 3 Zimmer | ca. 63,19 m² WNFL + Terrasse ca. 2,15 m² | Kaufpreis: EUR 467.000 - Schlüsselfertig!
-----------------------------------
AUSSTATTUNG UND FERTIGSTELLUNGSGRAD DER WOHNUNGEN:
- Boden – Zementestrich mit Schalldämmung und Fußbodenheizung; Flur, Küchenbereich und Heizraum mit Thermokeramik; übrige Räume mit hochwertigem Parkett
- Wände – Gipskartonsystem KNAUF
- Decken – Gipskartonsystem KNAUF
- Jalousien – außenliegende Rollläden mit Solarantrieb in den Wohnungen des obersten Stockwerks
- Bodenbeläge – in Fluren und Küchenbereichen hochwertiges italienisches Feinsteinzeug, in Wohn- und Schlafräumen Echtholzparkett
- Elektrische Installation – montierte Schalttafel mit Sicherungen, FI-Schutzschalter, Schaltern und Steckdosen Schrack Visio 55, Lampenfassungen an allen Lichtauslässen
- Niedrigstrominstallation – integrierte Video-Gegensprechanlage
- Sanitärinstallation – vertikale Steigleitungen aus VALSIR BLACKFIRE mit Absperrhähnen; horizontale Leitungen aus VALSIR BLACKFIRE mit Endstopfen; Abwassersystem aus schallgedämmten Rohren
- Klimasystem – installiertes LG-System mit Wärmepumpenaggregat, Fußbodenheizung, Klimageräten und Boiler
- WC – Wände mit KNAUF verkleidet; Boden und Wände mit hochwertigen Belägen; Ausstattung aus hochwertiger Keramik – wandhängendes Waschbecken mit FIMA MAST Washbasin Standard sowie Monoblock-WC
- Badezimmer – Wände mit KNAUF verkleidet; Boden- und Wandbeläge aus hochwertigem italienischem Feinsteinzeug; Ausstattung aus hochwertiger Keramik – Arbeitsplatte mit gegossenem Waschbecken, Unterschrank mit Schublade, abgetrennter Duschbereich mit Trennwand, montierte Armaturen und Duschmischer hoher Qualität, Spiegelschrank und Monoblock-WC
- Innentüren – DANA
- Eingangstüren – gepanzerte DANA-Türen, Sicherheitsklasse WK2, hoher Schall- und Wärmedämmungsgrad, Edelstahlgriffe, Spione, Zylinder und Schutzbeschläge
- Terrassen – struktureller Bodenbelag aus Feinsteinzeug, Doppelboden-Decking-System, integrierte Beleuchtungselemente
- Außengeländer – Edelstahlgeländer mit Handlauf, gefertigt aus hochwertigem galvanisch verzinktem Stahl
-----------------------------------
TECHNISCHE EIGENSCHAFTEN DES GEBÄUDES:
- Moderne Fassade mit hohem Energieeffizienzkoeffizienten
- Schall- und Dampfdämmung sowie Fußbodenheizung auf jeder Etage
- Aluminiumfenster ELVIAL der höchsten Klasse – exzellenter Schallschutz, Stabilität und Sicherheit sowie Wasser- und Luftdichtheit
- Dachwohnungen mit VELUX-Fenstern und außenliegenden Rollläden mit Solarantrieb
- Außengeländer aus Edelstahl mit Handlauf, galvanisch verzinkt
- Elektrischer Aufzug OTIS
- Innentüren DANA
- Eingangstüren DANA, gepanzert, Sicherheitsklasse WK2, hoher Schall- und Wärmedämmungsgrad, Edelstahlgriffe, Türspione, Schließzylinder und Schutzbeschläge
- Luxuriöse Bodenbeläge in den allgemeinen Bereichen – Naturstein
- Terrassen mit hochwertigem italienischem Feinsteinzeug, verlegt auf Decking-System
- Wandverkleidung der allgemeinen Teile – LAMINAM
- Integriertes Klimasystem mit Wärmepumpenaggregat, Boiler und elektrischen Klimageräten mit hoher Energieeffizienz und niedrigem Geräuschpegel
- Elektrische Installation – Hauptschalttafel, Verteilertafeln, Schalter und Steckdosen Schrack Visio 55
- Videosprechanlage mit Überwachungssystem
- Vollständig installierte Sanitäranlagen
Alle verwendeten Materialien entsprechen der Energieeffizienzklasse A, sind österreichischer Herkunft und verfügen über Zertifikate für Entflammbarkeit und Qualität.
-----------------------------------
VERMITTLUNGSPROVISION / DOPPELMAKLERTÄTIGKEIT:
Der Ordnung halber wird darauf hingewiesen, dass die Vermittlungsprovision 3 % des Kaufpreises zuzüglich 20 % USt. (insgesamt 3,6 %) beträgt und mit Zustandekommen des vermittelten Rechtsgeschäfts (Annahme des Kaufanbots ohne aufschiebende Bedingungen durch den Verkäufer) fällig wird. Der Makler ist als Doppelmakler tätig.
NEU! • ERSTBEZUG • EXKLUSIVE 3–4 ZIMMER-WOHNUNGEN • BALKON/TERRASSE • KLIMAANLAGE • TOP-AUSSTATTUNG • 1050 WIEN
Wir weisen darauf hin, dass zwischen dem Vermittler und dem zu vermittelnden Dritten ein familiäres oder wirtschaftliches Naheverhältnis besteht.
Der Vermittler ist als Doppelmakler tätig.
Eckdaten
| Kaufpreis: | 680.000,00 € |
| Fläche: | 91,66 m² |
Basisdaten zur Immobilie
| Objektnr: | 28424 |
| Art: | Wohnung |
| Land: | Österreich |
| Baujahr: | 1900 |
| Zustand: | Erstbezug |
| Alter: | Altbau |
| Kaufpreis: | 680.000,00 € |
| Kaufpreis / m²: | auf Anfrage |
| Provision: | 3% des Kaufpreises zzgl. 20% USt. |
| Wohnfläche: | 91,66 m² |
| Zimmer: | 4 |
| Bäder: | 1 |
| WC: | 2 |
| Balkone: | 1 |
| Heizwärmebedarf: | B 27,40 kWh/m²a |
| fGEE: | A+ 0,66 |
Ausstattung
Laminatboden, Parkett, Fußbodenheizung, Personenaufzug, Dusche
Internet und TV
Information zur Internet und TV Versorgung hier
Ihre persönliche Beratung
TRISTAR Immobilien
TRISTAR Immobilien
tristar@tristar.at
+43 676 901 73 74
