Lage der Immobilie
Diese charmante Doppelhaushälfte in 1210 Wien besticht durch ihre hervorragende Lage in unmittelbarer Nähe zur U-Bahn-Station Leopoldau. Hier genießen Sie die Vorzüge einer ruhigen Wohngegend mit einer perfekten Anbindung an die öffentlichen Verkehrsmittel. In der Umgebung finden Sie alles, was das Herz begehrt: Arzt, Apotheke, Schulen, Kindergarten, Supermärkte, Bäckereien und ein Einkaufszentrum. Auch Banken, Geldautomaten, Post und Polizei sind bequem erreichbar. Ein idealer Ort für Familien und Pendler!Beschreibung der Immobilie
DOPPELHAUSHÄLFTE 1210 WIEN-LEOPOLDAU.
WOHNFLÄCHE ca. 153,22 m²
TERRASSE ca. 12,00 m²
NUTZFLÄCHE ca. 206,00 m²
ZIMMERANZAHL 5
KAUFPREIS € 979.700
BETRIEBSKOSTEN € 90,90
UST € 9,10
PROVISION: 3% des Kaufpreises + 20% USt.
Wenn Sie eine ruhige, grüne Umgebung mit gepflegten Einfamilienhäusern rundum, aber auch eine perfekte öffentliche Anbindung und rasche Erreichbarkeit der Wiener City suchen, dann ist dieses Objekt in Leopoldau an der Wiener Stadtgrenze zu Niederösterreich genau das Richtige für Sie. Nahe der U-Bahnstation U1 in Leopoldau befindet sich dieser im 2021 fertig gestellten Haus. Ein praktischer Grundriss, 5 Zimmer, 2 Bäder, ein Garten - alles da, was hochwertigen Ansprüchen gerecht werden soll.
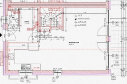
Im Erdgeschoß steht Ihnen eine Diele mit Garderobe, die Gästetoilette sowie der Wohn-/Essbereich mit offener, moderner Küche samt Ausgang auf die Terrasse und den südlich gelegenen Garten zur Verfügung.
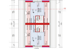
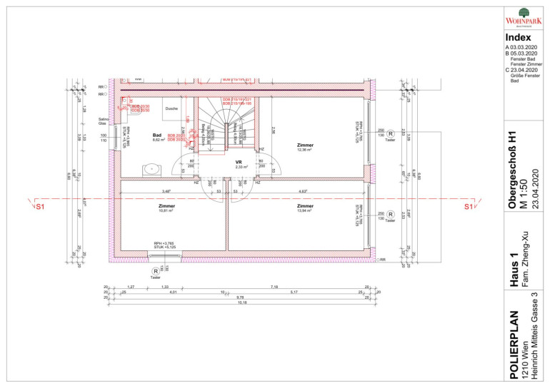
Das Obergeschoß verfügt über 3 Schlafzimmer sowie ein Bad mit Dusche, Waschbecken und Toilette.
Im Dachgeschoß ist ein Galeriezimmer untergebracht, ideal als Homeoffice oder für Hobbies und bietet noch ein weiteres Bad mit Wanne, Waschbecken und Toilette.
Das Untergeschoß ist als Wohnkeller konzipiert, welcher mit einem ca. 51 m² großen, taghellen Raum, zwei weiteren Räumen für Wellness, Fitness, Hobbies etc. sowie dem Heiztechnikraum (Luft-/Wärmepumpenheizung) und einem Waschmaschinenanschluss ausgestattet.
Fast ein Erstbezug - einfach ideal für ein Paar oder eine Familie mit hohen Ansprüchen. Einziehen und Wohlfühlen.
AUSSTATTUNG.
Parkett- und Fliesenböden
Internorm-Fenster mit elektr. Jalousien
Fußbodenheizung/Kühlung, Luft-/Wärmepupe
KFZ-Abstellplatz für 2 Autos
Energiekennzahl: 31,80 kWh/m²a
Einzug ab 01.11.2026 möglich.
Derzeit ist das Haus an einen Diplomaten vermietet. Der Mietvertrag endet am 31.10.2026. Gesamtmiete: € 3.050 inkl. BK, USt.
LAGE GUT, ALLES GUT.
Am nördlichen Stadtrand von Wien, in Leopoldau, lässt es sich einfach gut leben. Eine ruhige, grüne Umgebung und eine perfekte öffentliche Anbindung machen dieses Objekt zu einem lebenswerten Wohnsitz. Die U-Bahnstation der U1 (Endstelle Leopoldau) ist nur 4 Gehminuten entfernt und bringt Sie in 20 Minuten in die City (Stephansplatz) oder weiter nach Oberlaa. Aber auch die S-Bahn in Richtung Wien und Niederösterreich hat hier ihre Station. Kindergärten, Pflichtschulen, weiterführende Schulen - alles befindet sich in der nahen Umgebung, tw. auch zu Fuß erreichbar. Mittels U1 ist auch die UNO-City, das VIC, die Vienna Int. School und die Alte Donau in kürzester Zeit erreichbar.
FREIZEIT UND MEHR.
Das Hallenbad in der Großfeldsiedlung ist nicht nur im Sommer ein gesuchter Freizeit-Hotspot, auch im Winter genießen Sie das Angebot eines Bades, Sauna etc. Und das nahe Einkaufszentrum bietet alles, was den täglichen Bedarf anbelangt. Die Nähe zu Niederösterreich unterstreicht den ländlichen Charakter der Liegenschaft und bietet daher auch ungeahnte Freizeitaktivitäten. Laufen oder Radfahren am nahen Marchfeldkanal zum Beispiel. Aber auch die Nähe zum Donauzentrum ermöglicht ausgedehnte Shoppingtouren. Mit einem Wort - eine gesuchte Lage für eine ausgezeichnete Lebensqualität.
Bitte beachten Sie, dass wir eine Nachweispflicht gegenüber dem Eigentümer haben, daher können nur Anfragen mit vollständiger Angabe der Anschrift sowie Angaben zur Person wie Name und Telefonnummer bearbeitet werden.
Die Immobilien GmbH. verarbeitet personenbezogene Daten nach den datenschutzrechtlichen Bestimmungen. Weitergehende Informationen finden Sie unter https://dieimmobilien.gmbh/datenschutz/
Infrastruktur / Entfernungen
Gesundheit
Arzt <1.000m
Apotheke <500m
Klinik <3.500m
Krankenhaus <3.000m
Kinder & Schulen
Schule <500m
Kindergarten <500m
Universität <2.500m
Höhere Schule <3.000m
Nahversorgung
Supermarkt <500m
Bäckerei <500m
Einkaufszentrum <500m
Sonstige
Bank <500m
Geldautomat <500m
Post <500m
Polizei <500m
Verkehr
Bus <500m
U-Bahn <500m
Straßenbahn <3.000m
Bahnhof <500m
Autobahnanschluss <2.500m
Angaben Entfernung Luftlinie / Quelle: OpenStreetMap
Eckdaten
| Kaufpreis: | 979.700,00 € |
| Fläche: | 153,22 m² |
| Zimmer: | 5 |
Basisdaten zur Immobilie
| Objektnr: | 930 |
| Art: | Haus - Doppelhaushälfte |
| Land: | Österreich |
| Baujahr: | 2021 |
| Alter: | Neubau |
| Kaufpreis: | 979.700,00 € |
| Provision: | 3% des Kaufpreises zzgl. 20% USt. |
| Betriebskosten: | 90,91 € |
| MwSt Gesamt: | 9,09 € |
| Wohnfläche: | 153,22 m² |
| Nutzfläche: | 205,00 m² |
| Zimmer: | 5 |
| Bäder: | 2 |
| WC: | 3 |
| Terrassen: | 1 |
| Stellplätze: | 2 |
| Heizwärmebedarf: | B 32,00 kWh/m²a |
| fGEE: | A 0,72 |
Ausstattung
Fliesen, Parkett, Fußbodenheizung, Wohnküche / offene Küche, Bad mit Fenster, Badewanne, Dusche, Parkplatz
Internet und TV
Information zur Internet und TV Versorgung hier
Ihre persönliche Beratung
Misun Kim
Die Immobilien GmbH
office@dieimmobilien.gmbh
+43676 7043310
