Wohnen Nähe Aumannplatz | 3-Zimmerwohnung mit Freifläche und Grünblick | Provisionsfrei
Wohnung
,
1180
Wien
Beschreibung der Immobilie
Eckdaten
| Kaufpreis: | 660.000,00 € |
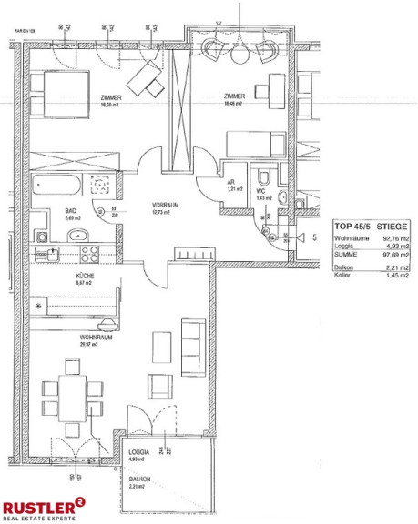
| Fläche: | 98,00 m² |
| Zimmer: | 3 |
Basisdaten zur Immobilie
| Objektnr: | 141/85084 |
| Art: | Wohnung |
| Land: | Österreich |
| Baujahr: | 2006 |
| Alter: | Neubau |
| Kaufpreis: | 660.000,00 € |
| Wohnfläche: | 98,00 m² |
| Zimmer: | 3 |
| Bäder: | 1 |
| WC: | 1 |
| Balkone: | 1 |
| Heizwärmebedarf: | B 49,53 kWh/m²a |
Ausstattung
Zentralheizung, Personenaufzug
Internet und TV
Information zur Internet und TV Versorgung hier
Ihre persönliche Beratung
Timo Kohlweiss
Rustler Immobilientreuhand
kohlweiss@rustler.eu
+43 1 8949749683
+43 676 834 34 683
