2-Zimmer-Wohnung für Anleger Nähe TU-Campus Neue Technik
Wohnung
,
8010
Graz
Beschreibung der Immobilie
Wohnen in der Nähe der Münzgrabenkirche und der TU-Graz!
Ergreifen Sie diese Gelegenheit der einzigartigen Kombination aus perfekter Lage im Bezirk Jakomini, gelungener Raumaufteilung und hoher wie nachhaltiger Wertbeständigkeit, die sich sowohl als Vorsorgewohnung als auch zum Selbernutzen ideal eignet.
Derzeit ist die Wohnung befristet bis Ende August 2027 vermietet, die monatliche Miete inkl. Betriebs- und Heizkosten beträgt derzeit EUR 850,00.
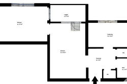
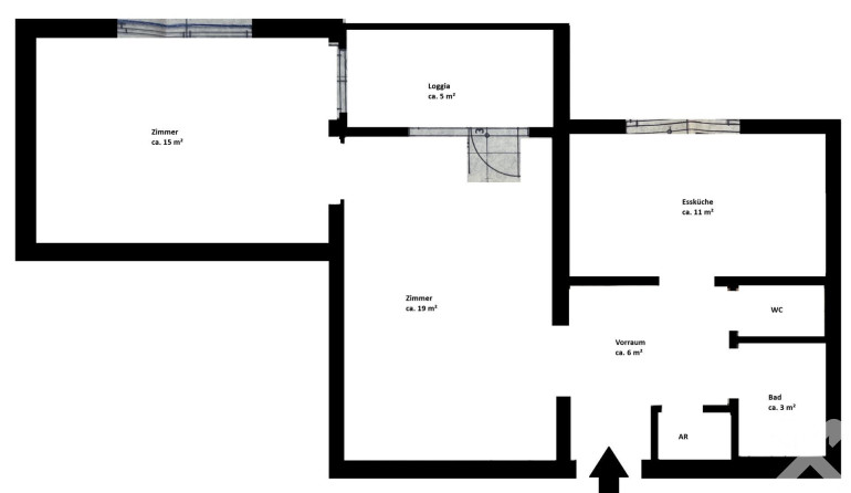
In einer der wohl begehrtesten und zugleich auch zentralsten Wohnlagen der Landeshauptstadt, am Münzgrabengürtel - Nähe TU-Graz - und somit im Zentrum von Graz liegend, befindet sich diese klassische 2-Zimmer-Wohnung im 5. Stock eines soliden Wohnhauses.
Eine für eine Wohnung dieser kompakten Größe überaus praktische und gleichzeitig "kommode" Raumeinteilung, der überaus gepflegte Zustand und eine insgesamt ausgesprochen sympathische Wohnatmosphäre versprechen tolle Lebensqualität. Die Wohnung, in einem der oberen Stockwerke, verspricht darüber hinaus einen sehr hellen Wohnkomfort und eine schöne Aussicht.
Für die Fassadensanierung wurde von der Hausverwaltung ein außerbücherliches Sanierungsdarlehen aufgenommen, der aushaftende Stand beträgt per 30.09.2024 EUR 5.333,10 und wird mit einer monatlichen Belastung in der Höhe von EUR 126,14 über die Betriebskostenvorschreibung eingehoben.
Eckdaten
| Kaufpreis: | 175.000,00 € |
| Fläche: | 56,00 m² |
| Zimmer: | 2 |
Basisdaten zur Immobilie
| Objektnr: | 0005004447 |
| Art: | Wohnung |
| Land: | Österreich |
| Baujahr: | 1974 |
| Kaufpreis: | 175.000,00 € |
| Provision: | 3% des Kaufpreises plus 20% USt. |
| Betriebskosten: | 157,74 € |
| Heizkosten: | 84,30 € |
| Wohnfläche: | 56,00 m² |
| Zimmer: | 2 |
| Bäder: | 1 |
| WC: | 1 |
| Balkone: | 1 |
| Heizwärmebedarf: | C 67,35 kWh/m²a |
| fGEE: | C 1,66 |
Ausstattung
Fernwärme
Internet und TV
Information zur Internet und TV Versorgung hier
Ihre persönliche Beratung
Sandra Juric
Raiffeisen Steiermark
sandra.juric@rlbstmk.at
22704
+43 664 6275103
